EX7 0AJ - 3 bed sea view detached house in Pinewood Close, EX7 0AJ

View on Property Piper

3 bedroom detached house for sale in Pinewood Close, Dawlish, EX7

Summary - 16 PINEWOOD CLOSE DAWLISH EX7 0AJ

3 bed 1 bath Detached

Chain-free three-bed home with large garden and driveway close to schools.
Sea views from rear picture window
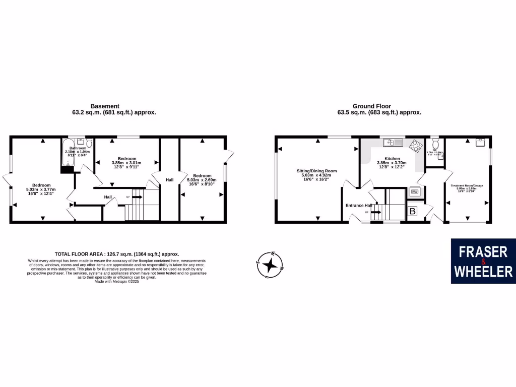
Set on a large plot with a southerly rear garden and clear sea views, this three-bedroom detached house offers comfortable family living in a popular Dawlish location. The sitting/dining room benefits from a picture window framing sea views, while the kitchen and separate cloakroom provide sensible everyday layout. The property is chain free and freehold, making for a straightforward purchase.

Practical features include a brick-paved driveway for off-street parking, uPVC double glazing and gas central heating. Bedroom 1 has direct garden access and useful built-in storage. The former garage now provides flexible space with plumbing in place — ideal as a study, playroom or potential re-conversion back to a garage.

Buyers should note the property’s EPC rating of D and that there is a single bathroom serving three bedrooms. Bedroom 2 links through to bedroom 3, which may affect privacy for some households. Overall the house reflects a 1950s–1960s build that will reward cosmetic updating and offers scope to modernise services and finishes.

Located in an affluent, low-crime suburb with good local schools and everyday amenities nearby, this home suits families seeking coastal views and outdoor space with convenient town access. The southerly garden and large plot also appeal to buyers interested in extending or landscaping (subject to consents).

Property Details

Image Descriptions

Floorplan Description

Rooms

Textual Property Features

Target Audience

AI Tags

Detected Visual Features

EPC Details

Nearby Schools

Nearest Bars And Restaurants

,,,,}

Nearest General Shops

,,}

Nearest Grocery shops

,,}

Nearest Supermarkets

,,}

Nearest Religious buildings

,,}

Nearest Medical buildings

,,,}

Nearest Airports

}

Nearest Leisure Facilities

,,,,}

Nearest Tourist attractions

,,}

Nearest Train stations

,,,,}

Nearest Bus stations and stops

,,,,}

Nearest Hotels

,,}

Tags

Local Market Stats

AirBnB Data

Similar Properties

Meta

High Res Images

Compatible Images

Low res Images

Thumbnails

Raw Images

High Res Floorplan Images

Compatible Floorplan Images

Low res Floorplan Images

FloorplanImages Thumbnail

Raw Floorplan Images