Detached garage and generous driveway on a decent plot near town.
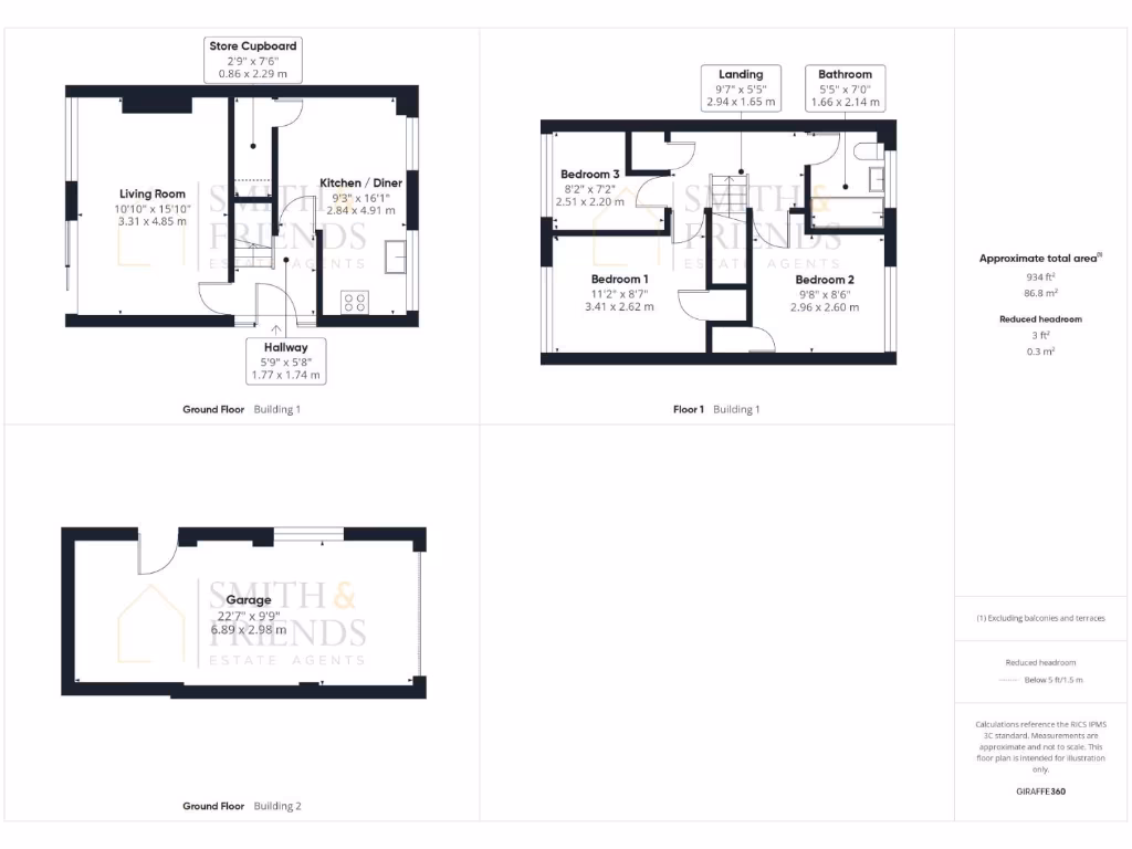
Chain-free three-bedroom semi-detached freehold
A practical three-bedroom semi in Thornaby, offered chain-free and suited to first-time buyers or landlords. The house sits on a decent plot with a detached single garage and driveway providing ample off-street parking. Good local schools, fast broadband and excellent mobile signal make it well placed for everyday family life.
The ground floor offers a light living room with French doors and a kitchen/diner with pantry; upstairs are two double bedrooms, a single bedroom and a family bathroom. The property is freehold, of typical post‑war construction and measures about 934 sq ft — compact but functional for modern living.
There is clear scope to add value through cosmetic updating and reconfiguration if required; the kitchen appears modern while other areas will benefit from freshening. Note there is currently an accepted offer of £125,000 — higher written offers must be submitted before exchange. Buyers should factor in standard renovation and maintenance when budgeting.
3 bedroom terraced house for sale in Orkney Way, Thornaby, Stockton-On-Tees, TS17 — £125,000 • 3 bed • 2 bath • 1173 ft²
3 bedroom semi-detached house for sale in Princes Square, Thornaby, Stockton-on-Tees, Durham, TS17 — £150,000 • 3 bed • 1 bath • 848 ft²
3 bedroom semi-detached house for sale in Fordy Grove, Thornaby, Stockton-On-Tees, TS17 — £115,000 • 3 bed • 1 bath • 807 ft²
3 bedroom house for sale in Caithness Road, Middlesbrough, TS6 — £115,000 • 3 bed • 1 bath • 894 ft²
3 bedroom terraced house for sale in Wensleydale Gardens, Thornaby, Stockton-on-Tees, Durham, TS17 — £155,000 • 3 bed • 2 bath • 912 ft²
3 bedroom terraced house for sale in Laburnum Avenue, Thornaby, Stockton-On-Tees, TS17 — £75,000 • 3 bed • 1 bath • 759 ft²










































