Spacious historic home near beach and high-speed rail link.
No onward chain — immediate completion possible
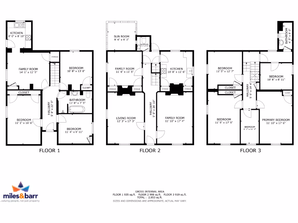
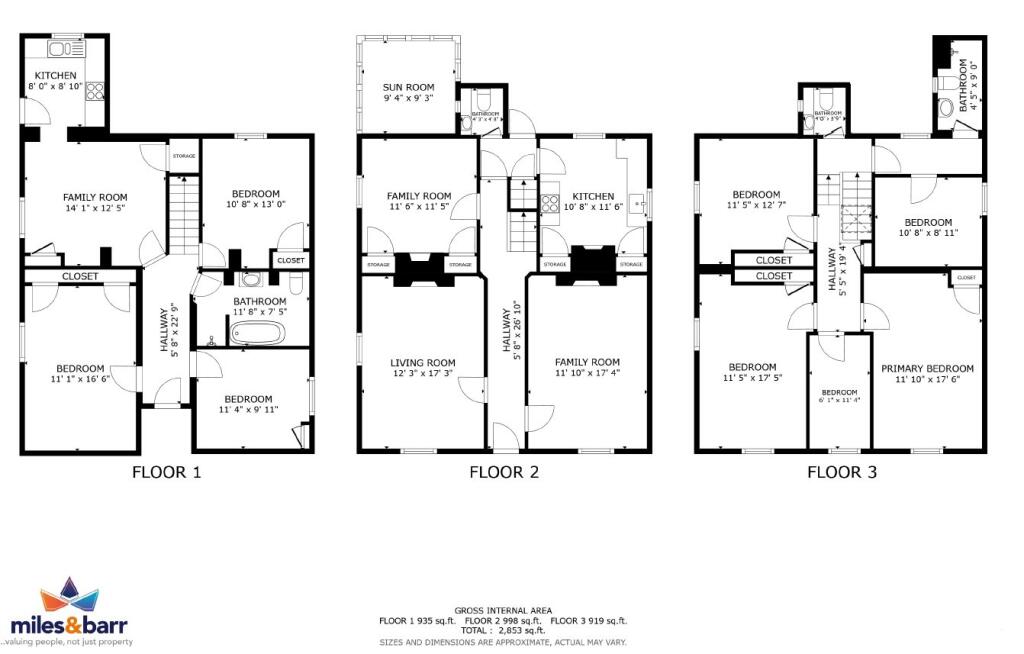
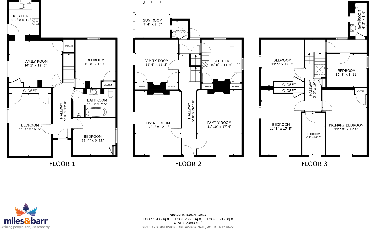
Regency Cottage is a striking Grade II listed detached house in central Broadstairs, offered with no onward chain. The property spans three floors plus a large attic and basement, currently arranged as eight bedrooms and three reception rooms. Period features such as flint brickwork, sash windows and a Regency-style frontage combine with a bright conservatory and multiple entertaining spaces to create a rare historic family home by the coast.
The flexible layout suits a multigenerational household or holiday-let potential: the basement includes three bedrooms, a second kitchen and a reception room with direct garden access, while the ground and upper floors provide traditional living rooms, a breakfast room and five further bedrooms. Externally there are sun-catching patios, a courtyard with covered dining, lawned areas and a double garage with space for up to four cars.
Buyers should note the property’s listed status. Any alterations or modernisation will require listed-building consent and may be more complex and costly than for a non-listed home. The house has not been adapted for accessibility, and council tax is above average. The wider area records higher local crime levels, which some purchasers may wish to consider alongside the many local amenities.
Positioned within walking distance of Viking Bay and the high-speed rail link to London, this home offers both seaside lifestyle and good transport links. For families seeking character, versatile space and a central Broadstairs address, Regency Cottage presents a significant and distinctive opportunity — provided buyers are comfortable with listed-building constraints and the property’s maintenance and community considerations.
2 bedroom end of terrace house for sale in Church Square, Broadstairs, CT10 — £350,000 • 2 bed • 1 bath • 529 ft²
4 bedroom terraced house for sale in Harbour Street, Broadstairs, CT10 1ET, CT10 — £595,000 • 4 bed • 3 bath • 1243 ft²
2 bedroom semi-detached house for sale in Nelson Place, Broadstairs, CT10 — £375,000 • 2 bed • 2 bath • 708 ft²
4 bedroom semi-detached house for sale in Rectory Road, Broadstairs, Kent, CT10 — £700,000 • 4 bed • 2 bath • 1658 ft²
3 bedroom terraced house for sale in Shutler Road, Broadstairs, CT10 — £515,000 • 3 bed • 2 bath • 1301 ft²
4 bedroom semi-detached house for sale in The Courtyard, Broadstairs, CT10 — £495,000 • 4 bed • 3 bath • 1967 ft²






























































































































































































































