Substantial farmhouse with barns and vast gardens ideal for family life.
Four double bedrooms and two bathrooms, flexible family accommodation
Large kitchen/diner with Rangemaster and multifuel burner
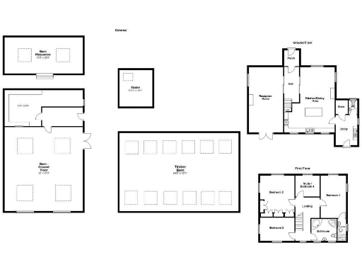
Huge plot with orchard, meadow, wildlife and two barns
Separate office/gym with mezzanine — good home‑working potential
Gated entrance and ample off‑street parking
EPC C; air‑source heat pump; double glazing post‑2002
Very slow broadband; consider if home working requires fast internet
Wider area records higher crime and local deprivation indicators
Set within a huge wraparound plot in the quiet hamlet of Sunderland Point, Meadow Farm House is a substantial four‑bed farmhouse built circa 1980 and presented to a high standard throughout. The house delivers abundant living space — two reception rooms, a large kitchen/dining area with a Rangemaster and multifuel burners, and flexible first‑floor accommodation including an en suite and a study/bedroom four. Outbuildings include two barns and a separate office/gym with mezzanine, useful for home working or hobbies.
The grounds are a major asset: orchard, meadow and extensive lawns create private outdoor rooms and attract wildlife, including deer and rare migrating birds. Gated access and ample off‑street parking add everyday convenience while the Bay Gateway provides straightforward road links to the M6 for commuting.
Practical points to note: the property runs on electricity with an air‑source heat pump and radiators and benefits from double glazing installed post‑2002; EPC rating C. However broadband speeds are very slow, and the wider local area has higher recorded crime and relative deprivation — factors to weigh for families who need fast connectivity or close urban services. Some wall insulation is assumed partial; the age and construction suggest owners may wish to review insulation and energy efficiency further.
Overall, this house will suit buyers seeking a characterful family home or country retreat with significant outdoor space and outbuildings. It offers immediate move‑in quality with scope for buyers to personalise or enhance efficiency over time.
4 bedroom detached house for sale in Herons Wood House, Ashton With Stodday, Lancaster, LA2 0AJ, LA2 — £799,950 • 4 bed • 3 bath • 2465 ft²
Farm for sale in Throstle Nest Farm, Church Lane, PR3 0LA, PR3 — £2,900,000 • 5 bed • 1 bath • 2292 ft²
4 bedroom country house for sale in Crimbles Lane, Cockerham, LA2 — £560,000 • 4 bed • 3 bath • 2126 ft²
Commercial development for sale in Thwaite House Farm , Carnforth, LA5 9EL, LA5 — POA • 1 bed • 1 bath • 3191 ft²
4 bedroom detached house for sale in Kinsale, Stricklands Lane, Stalmine, Poulton-Le-Fylde, FY6 — £625,000 • 4 bed • 2 bath • 1898 ft²
2 bedroom house for sale in Leach House Lane, Galgate, LA2 — £325,000 • 2 bed • 2 bath • 888 ft²






















































































































































































































