Spacious rural retreat with equestrian facilities and sweeping countryside views.
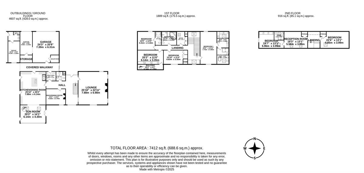
- Seven bedrooms and five bathrooms across approximately 7,412 sq ft
- Huge private plot with professionally maintained paddocks and pond
- Substantial stable block with multiple loose boxes and cobbled courtyard
- Open-plan living with floor-to-ceiling windows and exposed timber beams
- Oil-fired boiler and underfloor heating; double glazing post-2002
- Very slow broadband; not suited to heavy remote-working needs
- Council tax described as very expensive; ongoing running costs high
- Tenure not specified; buyers should confirm legal details
A substantial seven-bedroom detached barn conversion set in expansive grounds with dedicated equestrian facilities and sweeping rural views. The stone-built farmhouse blends exposed beams, floor-to-ceiling windows and modernised fittings to deliver generous family living over multiple storeys. At about 7,412 sq ft, reception rooms are large and flexible, anchored by an open-plan living area with a central AGA and a decorative cast-iron spiral staircase.
Outside, professionally maintained paddocks, a cobbled courtyard and a sizeable stable block with multiple loose boxes provide practical accommodation for horses and significant scope for owners who keep livestock or enjoy country pursuits. Mature trees, well-established boundaries and a pond enhance privacy and the elevated site affords panoramic countryside vistas. The plot is huge, offering potential for additional landscaping or ancillary uses subject to consents.
The property is modernised yet retains period character: stone walls, timber beams, natural stone floors and bespoke fittings. Heating is by oil-fired boiler with underfloor heating; double glazing was installed post-2002. Practical considerations include oil fuel dependency, very slow broadband, and the upkeep and running costs associated with large grounds and equestrian buildings. Council tax is described as very expensive and tenure information is not supplied.
This house will suit a family or equestrian buyer seeking privacy, space and high-spec rural living rather than an urban commuter reliant on fast broadband. Viewings recommended for those wanting a turnkey country estate with genuine scope for outdoor and equestrian lifestyle use.
6 bedroom character property for sale in Lark Hill Barn, Roundhill Lane, Rossendale BB4 5TY, BB4 — £750,000 • 6 bed • 4 bath • 2594 ft²
7 bedroom detached house for sale in Burnley Road, Colne, BB8 — £1,250,000 • 7 bed • 3 bath • 2046 ft²
8 bedroom farm house for sale in Long Causeway, Hebden Bridge, HX7 — £950,000 • 8 bed • 3 bath • 5618 ft²
8 bedroom detached house for sale in Cliviger Laithe Estate, Red Lees Road, Burnley, BB10 — £1,750,000 • 8 bed • 6 bath • 9180 ft²
4 bedroom barn conversion for sale in Glen View Road, Burnley, BB11 — £595,000 • 4 bed • 3 bath • 2272 ft²
5 bedroom barn conversion for sale in Nappa, Skipton, North Yorkshire, BD23 — £1,140,000 • 5 bed • 2 bath • 3968 ft²


































































































































