Elevated village plot with countryside outlook and customizable finishes.
Detached single‑storey layout with three bedrooms and ensuite
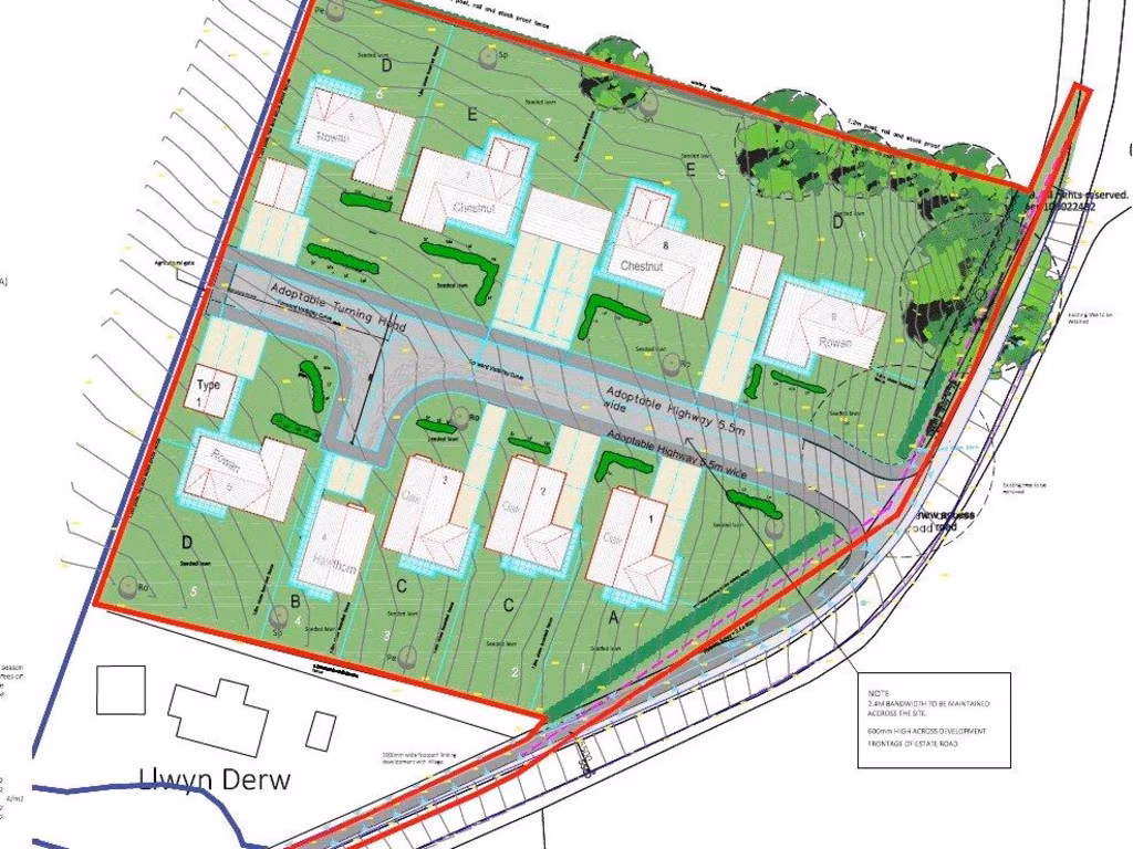
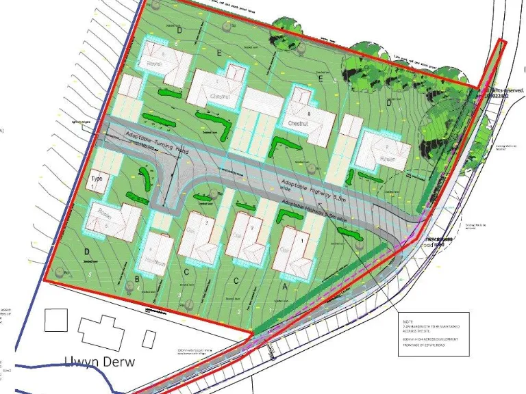
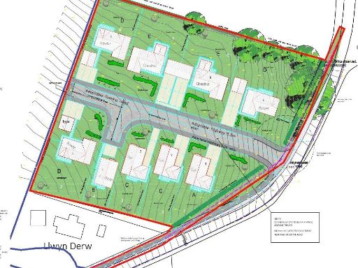
A detached three-bedroom bungalow on the Pant Yr Onnen development offers single‑level living with countryside views and generous external space. The Rowan layout provides a separate lounge, dining room, kitchen with adjacent utility, three fitted‑wardrobe bedrooms and an ensuite to bedroom one — a practical plan for family living or later‑life downsizing. The property includes a detached double garage, parking for three cars and an enclosed rear garden with topsoil finish.
This is an off‑plan new build with a 10‑year Build‑Zone structural warranty and a 2‑year Primesave warranty. Off‑plan buyers can choose kitchen and worktop finishes subject to the stage of build; optional extras are therefore limited by progress. EPC is anticipated to be B and the specification includes double glazing, solar panels, a 7kW EV charging point and an air source heat pump. The listing also notes oil boiler and radiators as main heating — buyers should confirm the final heating arrangement in the specification.
Important practical points are stated up front: floor coverings are not included, a £1,000 reservation fee applies, and a £36 per‑person charge covers mandatory anti‑money‑laundering checks. The seller will pay the buyer’s stamp duty up to £9,000 if the sale completes by 28/11/25. Photographs provided are from a different plot; the finished plot will vary from shown images.
Location suits buyers wanting rural calm with basic village amenities nearby, including a Welsh‑medium primary school, hall and church. Pontrobert sits roughly 11–16 miles from Welshpool, Lake Vyrnwy and Oswestry. Broadband and mobile signals are average; local crime is low. Note the wider area is classified as remoter/agricultural communities and area deprivation is recorded as very deprived — consider access to services and running costs when assessing suitability.
3 bedroom bungalow for sale in Pant Yr Onnen, Pont Robert, Meifod, Powys, SY22 — £375,000 • 3 bed • 2 bath • 905 ft²
3 bedroom bungalow for sale in Pant Yr Onnen, Pont Robert, Meifod, Powys, SY22 — £295,000 • 3 bed • 2 bath • 715 ft²
3 bedroom bungalow for sale in Pant Yr Onnen, Pont Robert, Meifod, Powys, SY22 — £295,000 • 3 bed • 2 bath • 714 ft²
3 bedroom detached bungalow for sale in Plot 6, Rowan, Maple Walk, Pontrobert, Powys, SY22 — £375,000 • 3 bed • 2 bath • 1065 ft²
3 bedroom detached bungalow for sale in Plot 8, Somerford Reach, Cae Heulog, Arddleen, SY22 — £400,000 • 3 bed • 2 bath • 1065 ft²
3 bedroom detached bungalow for sale in Plot 3, Oak, Maple Walk, Pont Robert, Powys, SY22 — £295,000 • 3 bed • 2 bath • 799 ft²


































