New-build single-level living with garage and EV charger in a peaceful village setting.
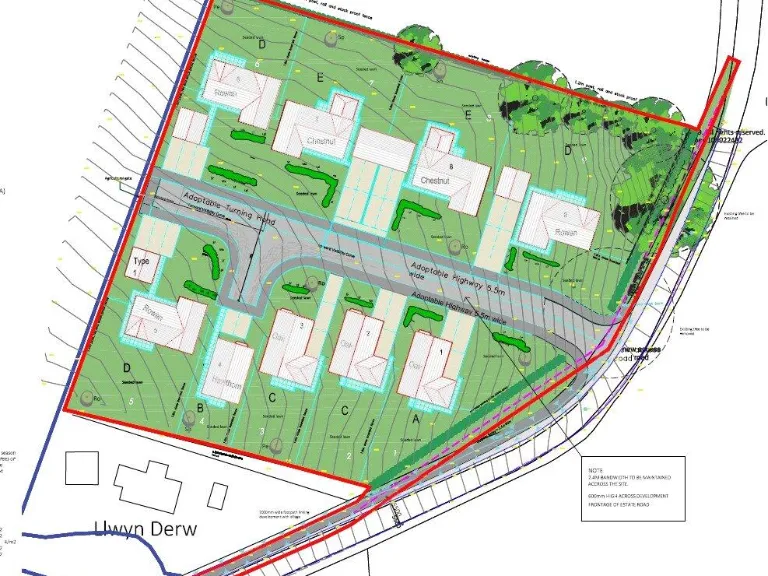
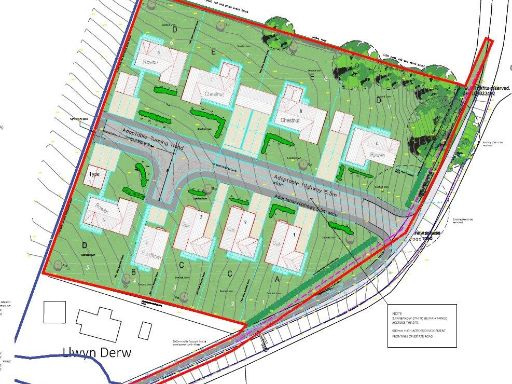
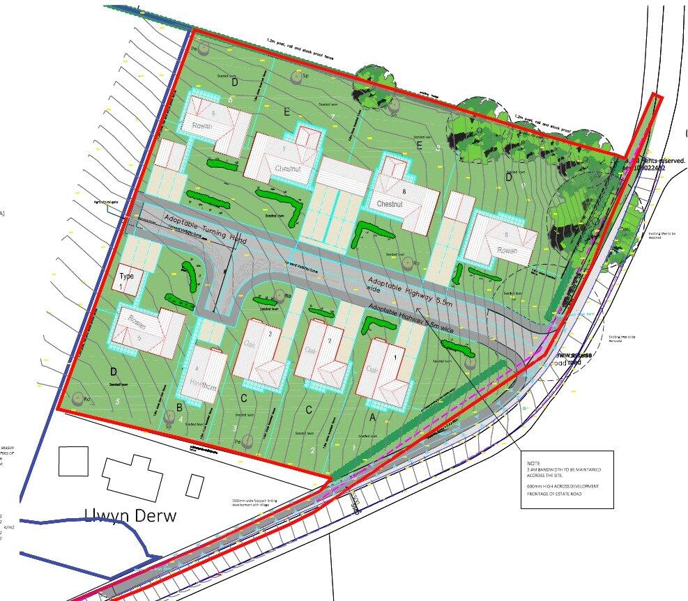
Detached single‑storey Rowan bungalow with countryside views
Set in an elevated village position with open countryside views, this newly built Rowan bungalow offers single‑level living with practical family-focused layout. The lounge, dining room and kitchen sit together on one side for easy daily flow, while three bedrooms — including a master with ensuite and fitted wardrobes — sit across the hall for privacy. A utility room, detached double garage and driveway parking for three cars add useful storage and convenience for family life.
The specification leans toward energy efficiency: full double glazing, solar panels, a 7 kW EV charging point and an air source heat pump are fitted. The home benefits from a 10‑year Build‑Zone new build warranty and a two‑year Primesave warranty, and an EPC is anticipated to be around band B. Off‑plan buyers may be able to personalise kitchens and finishes, subject to build stage.
Buyers should note a few practical points: the main heating is listed as oil boiler and radiators despite the air source equipment being installed, so please confirm heating arrangements and running costs at viewing. Floor coverings are not included in the purchase price. Photographs provided are of a similar property on a different site and the rear garden will be finished with top soil. A reservation fee of £1,000 and a mandatory anti‑money‑laundering charge apply.
This bungalow suits those seeking peaceful rural living with modern conveniences — particularly families or downsizers wanting level access and parking. The developer offers part‑exchange or chain‑breaking assistance for buyers who are stuck in a chain; enquire early to confirm options and any plot‑specific choices or timing.
3 bedroom bungalow for sale in Pant Yr Onnen, Pont Robert, Meifod, Powys, SY22 — £375,000 • 3 bed • 2 bath • 903 ft²
3 bedroom bungalow for sale in Pant Yr Onnen, Pont Robert, Meifod, Powys, SY22 — £295,000 • 3 bed • 2 bath • 715 ft²
3 bedroom detached bungalow for sale in Plot 8, Somerford Reach, Cae Heulog, Arddleen, SY22 — £400,000 • 3 bed • 2 bath • 1065 ft²
3 bedroom detached bungalow for sale in Plot 6, Rowan, Maple Walk, Pontrobert, Powys, SY22 — £375,000 • 3 bed • 2 bath • 1065 ft²
3 bedroom bungalow for sale in Pant Yr Onnen, Pont Robert, Meifod, Powys, SY22 — £295,000 • 3 bed • 2 bath • 714 ft²
3 bedroom detached bungalow for sale in Plot 5, Rowan, Maple Walk, Pontrobert, Powys, SY22 — £375,000 • 3 bed • 2 bath • 858 ft²


































