**Standout Features:**
- Historic farmhouse in the same family since 1893
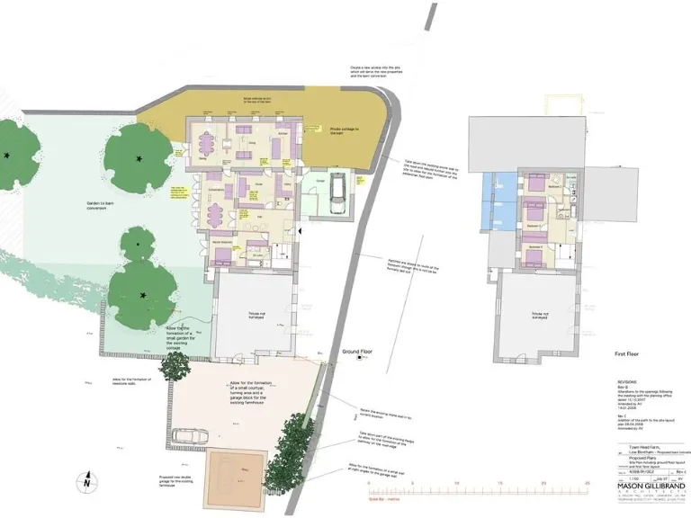
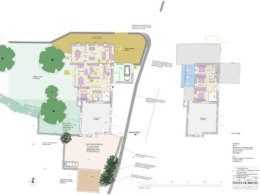
- Potential for a new four-bedroom dwelling through barn conversion
- Approximately 1.41 acres of gently sloping paddock land
- Panoramic views of the picturesque Lune Valley and Forest of Bowland
- Ample internal space with two reception rooms and three bedrooms
- Existing plans for a modern layout with multiple living spaces
- Edge-of-village location near local amenities and transport links
- Freehold tenure, chain-free purchase
**Summary:**
Discover Town Head Farm, a historically rich and spacious farmhouse nestled in the serene landscapes of Low Bentham. Spanning 1,665 sq ft, this stone property features two inviting reception rooms, a functional kitchen with a larder, and three cozy bedrooms, offering a unique blend of traditional charm and modern possibilities. The adjacent barn, with planning consent approved for conversion, presents an incredible opportunity to craft an additional four-bedroom residence, perfect for families or investors aiming for rental potential.
Set on approximately 1.41 acres of land, complete with a paddock for your livestock or garden pursuits, this property provides an idyllic retreat in a peaceful setting. The views are simply breathtaking, inviting you to explore the surrounding countryside. While some renovation is needed, the robust layout and external plans lay a solid foundation for your dream home. With its enviable location close to village amenities and excellent transport links, Town Head Farm is a rare opportunity for those seeking a lifestyle infused with comfort and a touch of adventure on the edge of rural charm. Act quickly, as properties with this level of potential don’t stay on the market for long!
4 bedroom detached house for sale in Cross Lane, Lower Bentham, Lancaster, LA2 — £595,000 • 4 bed • 3 bath • 4508 ft²
7 bedroom detached house for sale in Bank End Farm, Lythe Fell Road, Lowgill, Lancaster, Lancashire, LA2 8RE, LA2 — £990,000 • 7 bed • 5 bath • 8194 ft²
4 bedroom detached house for sale in Town End Farm, Melling, LA6 2RB, LA6 — £775,000 • 4 bed • 3 bath • 2723 ft²
4 bedroom detached house for sale in Knott Hill Farm, Tatham, Lancaster, LA2 8PS, LA2 — £850,000 • 4 bed • 3 bath • 4559 ft²
4 bedroom barn conversion for sale in High Meadow Barn, Low Bentham, LA2 — £725,000 • 4 bed • 2 bath • 2475 ft²
Residential development for sale in High Bendrigg Farm, Kendal, LA8 — £995,000 • 6 bed • 3 bath • 2207 ft²






























































































