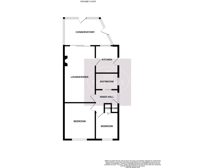
Compact single‑level home with private garden and garage, ready to move into.
Chain free — available for quick completion
Newly re-fitted kitchen and modern four-piece bathroom
Single-storey living — all rooms on one level
Private rear garden with mature planting and good privacy
Driveway plus single garage for parking and storage
Small overall size (approx. 560 sq ft) — compact layout
Some dated decor and textured ceilings need cosmetic updating
Double glazing present; install date unknown
This detached two-bedroom bungalow offers comfortable, single‑level living in a quiet Selston cul‑de‑sac — ideal for downsizers seeking easy access to local shops, schools and road links. The recently re‑fitted kitchen and a four‑piece bathroom provide modern convenience, while a conservatory and lounge extend the living space into the private rear garden.
Set on a decent plot with driveway and garage, the property is chain free and ready for a quick move. Practical details include mains gas central heating, double glazing (install date unknown) and fast broadband, making the home suitable for everyday living and working from home.
The bungalow is modest in overall size (approximately 560 sq ft) and constructed in the mid‑20th century, so some features remain traditional. The living room shows dated decor and textured ceilings that will benefit from cosmetic updating to reflect personal taste. Buyers should note the single bathroom and the compact layout when comparing to larger homes.
Overall this is a tidy, low‑maintenance property offering immediate occupation with scope to personalise. It will suit buyers prioritising one‑floor convenience, a private garden and easy local connections rather than extensive living space.
2 bedroom bungalow for sale in Sherwood Way, Selston, Nottingham, Nottinghamshire, NG16 — £250,000 • 2 bed • 1 bath • 662 ft²
2 bedroom semi-detached bungalow for sale in Cedar Drive, Selston, Nottingham, NG16 — £160,000 • 2 bed • 1 bath • 786 ft²
2 bedroom detached bungalow for sale in Nightingale Crescent, Selston, NG16 — £224,500 • 2 bed • 1 bath • 569 ft²
2 bedroom semi-detached bungalow for sale in Bunyan Green Road, Selston, Nottingham, NG16 — £180,000 • 2 bed • 1 bath • 571 ft²
2 bedroom bungalow for sale in Bridge End Avenue, Selston, Nottingham, Nottinghamshire, NG16 — £180,000 • 2 bed • 1 bath • 576 ft²
3 bedroom detached house for sale in Nottingham Road, Selston, Nottingham, Nottinghamshire, NG16 — £350,000 • 3 bed • 2 bath • 1527 ft²






































































