Bright two-bedroom flat with private decking and unusually large communal garden.
- Private decking with direct access to large communal landscaped garden
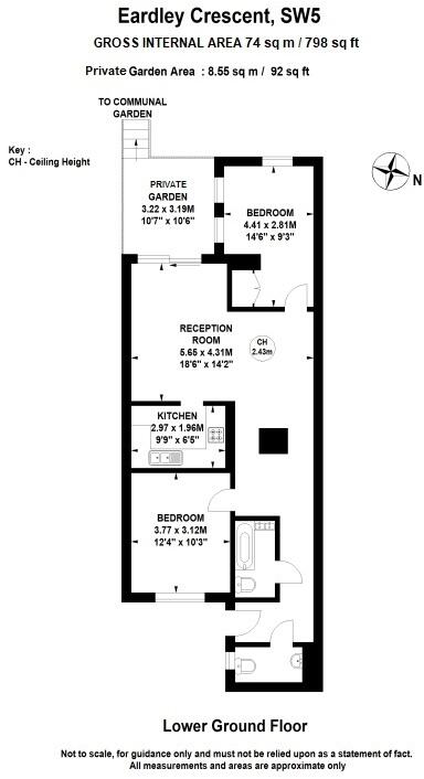
- Two double bedrooms and two bathrooms, good rental potential
- Approximately 798 sq ft; semi open-plan living with generous natural light
- Leasehold with c.109 years remaining (check solicitor advice)
- Service charge c.£2,916pa; ground rent £250pa; Council Tax Band E
- Victorian solid-brick construction; likely limited wall insulation
- Basement apartment element (check exact floor level and access)
- Excellent transport links and nearby top-rated schools
A bright two-bedroom garden apartment set within a handsome Victorian block in Earls Court. The flat opens into a semi open-plan drawing room with large windows and private decking that leads directly onto an unusually large communal landscaped garden — a rare outside space for central London living. Two double bedrooms and two bathrooms suit sharers, a small family or a buyer wanting comfortable rental potential.
Practical details are straightforward: about 798 sq ft, leasehold with c.109 years remaining, mains gas central heating and double glazing. Transport and local amenities are excellent — Earl’s Court and West Brompton stations, shops, cafes and highly regarded schools are all close by — making daily life easy and well connected.
Buyers should note some transactional costs and maintenance items: service charge c.£2,916pa and ground rent £250pa, with council tax in Band E. The building is solid-brick and pre-1900, so older-wall construction may mean limited insulation and potential improvement work for anyone seeking higher energy efficiency. The apartment is otherwise well presented but modest updates could increase long-term value.
Overall this is a sensible central-London purchase for a first-time buyer, couple or investor who values private outdoor space and strong local connections. The layout and garden access give scope to personalise the flat while benefiting from a rare communal landscaped setting.
2 bedroom apartment for sale in Eardley Crescent, London, SW5 — £725,000 • 2 bed • 1 bath • 616 ft²
2 bedroom apartment for sale in Eardley Crescent, London, SW5 — £750,000 • 2 bed • 1 bath • 1163 ft²
2 bedroom apartment for sale in Old Brompton Road, London, SW5 — £800,000 • 2 bed • 2 bath • 832 ft²
2 bedroom apartment for sale in Eardley Crescent, London, SW5 — £585,000 • 2 bed • 1 bath • 730 ft²
2 bedroom apartment for sale in Templeton Place, London, SW5 — £900,000 • 2 bed • 2 bath • 1126 ft²
2 bedroom flat for sale in Earls Court Road, Earls Court, SW5 — £1,150,000 • 2 bed • 2 bath • 1227 ft²






























































