**Standout Features:**
- Dual purpose: investment opportunity and vacant space for development.
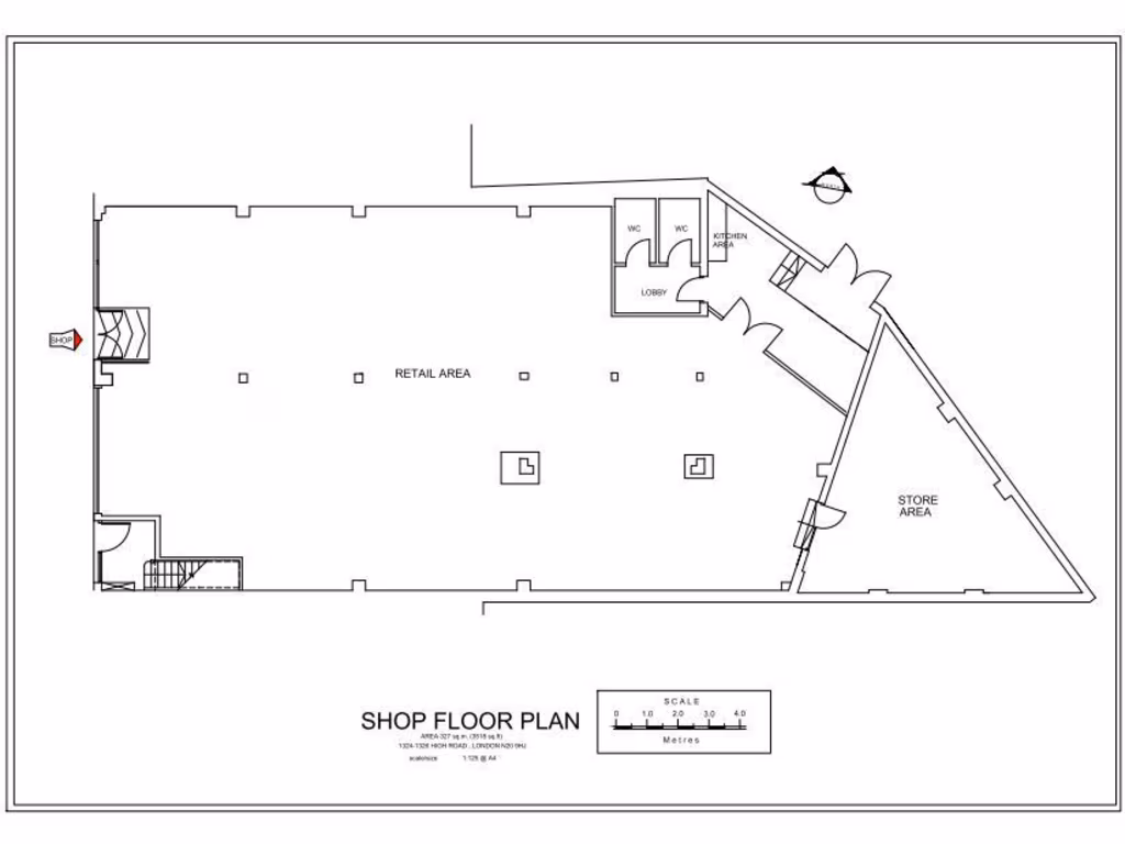
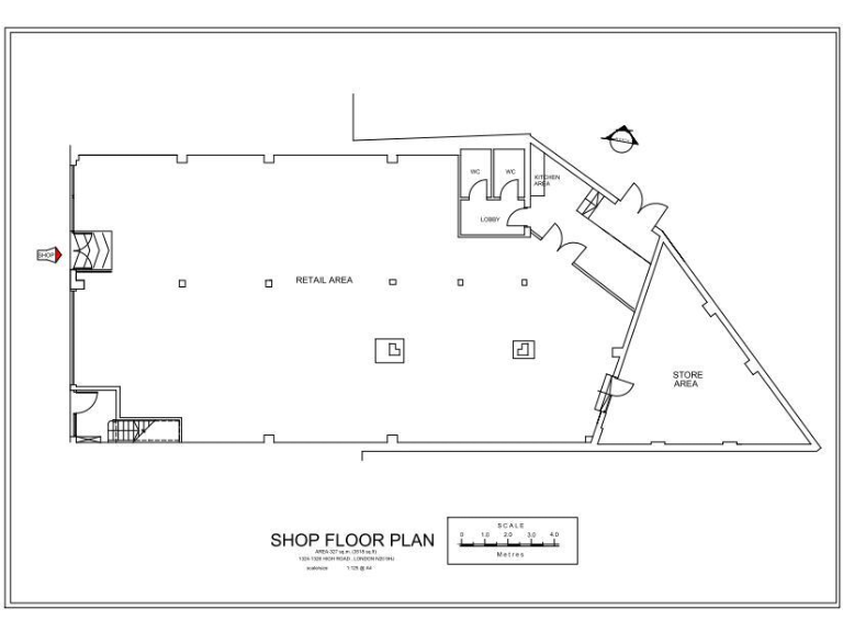
- Impressive overall size of 5,231 sq. ft. in a key location on Whetstone High Road.
- Current ground floor tenant (French Market) with a long-term lease and stable income.
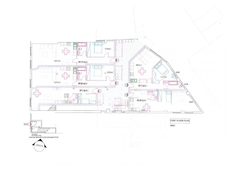
- Scope for conversion of upper floor offices into residential units and potential for building a new floor above (STPP).
- Off-street parking accommodating 5-6 vehicles.
**Summary:**
Discover a unique investment opportunity at this expansive commercial property located on the bustling Whetstone High Road. With the ground floor currently leased to a reputable French Market generating a yearly income of £62,400 and structured for a 15-year lease, this property provides immediate cash flow. The vacant upper floors present enormous potential for conversion into residential units, perfectly suited for modern living. Additionally, the possibility of further expansions allows investors and developers to unleash creativity and enhance value.
The surrounding area thrives with vibrant shops, splendid cafés, and excellent transport links, including several bus routes and two nearby train stations, adding to its desirability. While the property is in good condition, prospective buyers should consider the structural and planning permissions as part of their investment strategy. With its high street visibility and flexible redevelopment options, this property is an enticing opportunity not to be missed—act quickly as offers like this are hard to come by!
Mixed use property for sale in High Street, Barnet, North London, EN5 — £460,000 • 1 bed • 1 bath • 376 ft²
Land for sale in High Street, High Barnet, EN5 — £1,100,000 • 1 bed • 1 bath • 5240 ft²
3 bedroom semi-detached house for sale in High Road, North Finchley, N12 — £850,000 • 3 bed • 2 bath • 1846 ft²
Commercial property for sale in Cadbury Close, Whetstone, N20 — £2,200,000 • 1 bed • 1 bath • 4850 ft²
High street retail property for sale in High Street, Barnet, North London, EN5 — £275,000 • 1 bed • 1 bath • 713 ft²
High street retail property for sale in East Barnet Road, New Barnet, EN4 — £1,000,000 • 1 bed • 1 bath • 4008 ft²






















































































