**Standout Features:**
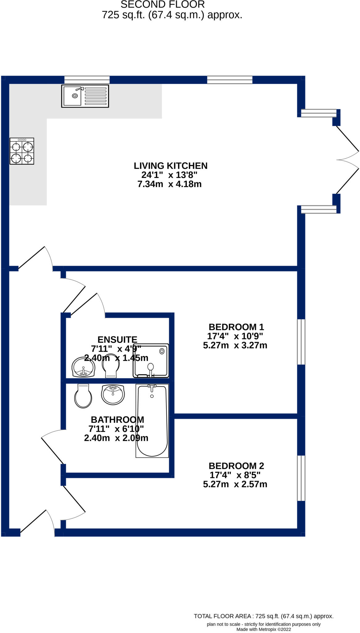
- **Spacious Layout**: Open plan living/kitchen area with Juliet balcony
- **Two Double Bedrooms**: Including a principal bedroom with en suite
- **Allocated Parking Space**: Convenient off-street parking
- **Prime Location**: Easy access to transport links and local amenities
- **Well-Presented**: Modern interior, constructed between 2007-2011
**Potential Downsides:**
- **High Crime Rate**: Consider security measures for peace of mind
- **Leasehold Property**: Subject to ground rent and service charges
- **Area Deprivation**: Recognized as a hampered neighbourhood
Discover modern living in this spacious two-bedroom, two-bathroom second floor apartment, perfect for first-time buyers seeking comfort and convenience. The light-filled open plan living and kitchen area, complete with a Juliet balcony, offers an inviting space for relaxation and entertainment. Enjoy the luxury of two double bedrooms, including a principal suite with an en suite shower room, providing both comfort and privacy.
Located on the border of Bramley and Kirkstall, this apartment is well-placed for seamless access to Leeds City Centre and a variety of local amenities, including shops and schools with 'Good' Ofsted ratings. With an allocated parking space and well-maintained communal grounds, this property brings together practicality and modern design. While high crime rates and area deprivation deserve consideration, the affordable price of £130,000 and excellent transport links present significant advantages. This could be your chance to invest in a promising future—don’t miss out!
2 bedroom apartment for sale in Jude Court, Leeds, LS13 — £135,000 • 2 bed • 2 bath • 736 ft²
2 bedroom apartment for sale in 31, The Elms, Henconner Lane, Bramley, Leeds, West Yorkshire, LS13 — £155,000 • 2 bed • 2 bath • 618 ft²
2 bedroom apartment for sale in Henconner Lane, Bramley, Leeds, LS13 — £140,000 • 2 bed • 2 bath • 671 ft²
2 bedroom apartment for sale in Swinnow Close, Leeds, West Yorkshire, LS13 — £112,000 • 2 bed • 1 bath • 483 ft²
2 bedroom apartment for sale in Raynville Way, Leeds, LS12 — £129,995 • 2 bed • 1 bath • 577 ft²
2 bedroom apartment for sale in 54 The Elms, Henconner Lane, Bramley, Leeds, West Yorkshire, LS13 — £145,000 • 2 bed • 2 bath • 585 ft²














































































