Ready-to-build plot near new station and town amenities.
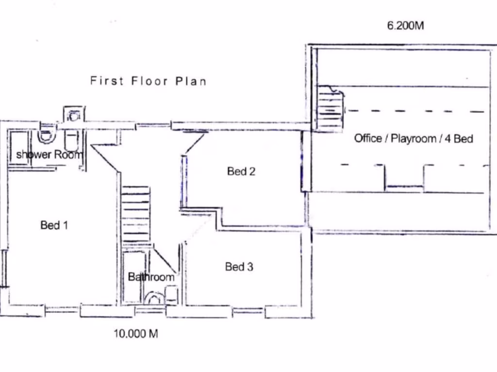
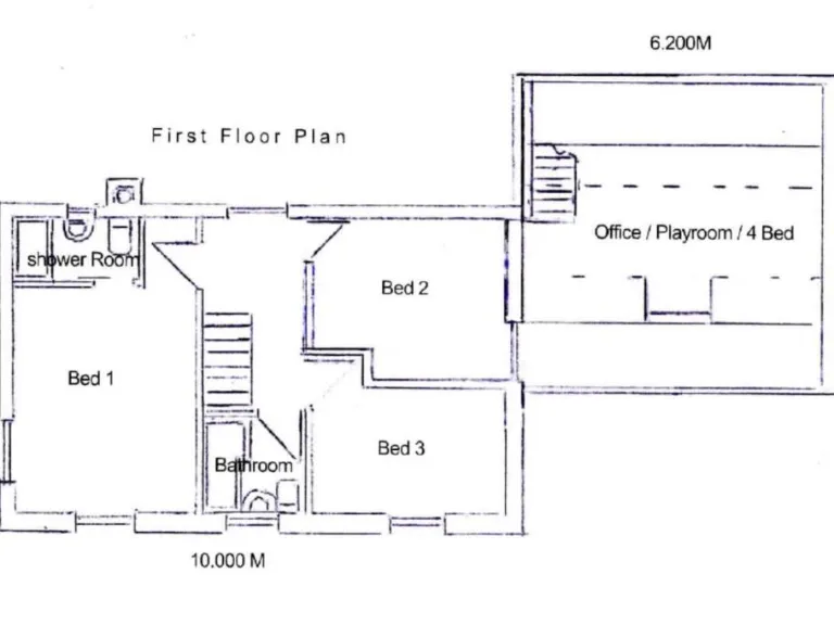
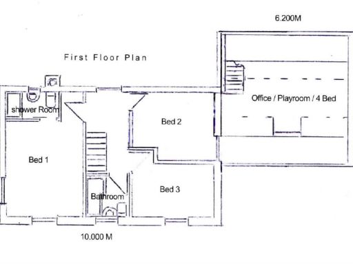
Planning permission granted for 1,400 sq ft four-bedroom detached house
This building plot in a quiet Mill Close cul-de-sac offers an unusually straightforward route to a family home: full planning permission (ref. 23/01679/APP) for a 1,400 sq ft, four-bedroom detached house has already been granted. The site is freehold, has a decent garden, garage parking and connections to foul sewer and a nearby storm-water pumping station with consent to connect. All mains services are available close by.
Winslow is a popular market town with shops, a pub, library and commuter links. The plot sits within easy reach of the M1 and M40 and is close to the proposed new Winslow railway station (planned to open in Summer 2025), increasing appeal for commuters. Local broadband and mobile signal are excellent and the area is described as affluent with low crime.
Practical matters you should note: offers must be submitted in writing with proof of funds by Friday 30 May 2025. Interested buyers should carry out their own checks on utilities and any building works; no fittings, services or measurements have been tested. Nearby school quality varies (some rated Good; one primary currently ‘Requires improvement’), so examine local catchments if school ranking matters.
This plot suits a family seeking a near-complete planning solution in a town-fringe location, or an investor wanting a permitted development near improving transport links. The proposal is traditional cottage-style in appearance, giving a straightforward build brief, but purchasers should allow budget and time to manage the build, connect services and complete on-site works.
Land for sale in Winslow, Buckinghamshire, MK18 — £500,000 • 1 bed • 1 bath
Plot for sale in Land At Moreton Road, Buckingham, Buckinghamshire, MK18 — £345,000 • 4 bed • 2 bath
Plot for sale in Land At Moreton Road, Buckingham, Buckinghamshire, MK18 — £390,000 • 4 bed • 3 bath
Plot for sale in Land At Moreton Road, Buckingham, Buckinghamshire, MK18 — £390,000 • 3 bed • 3 bath • 1109 ft²
Plot for sale in Chapel Lane, Akeley, MK18 — £200,000 • 2 bed • 1 bath
Land for sale in Buckingham Road, Addington, Buckingham, MK18 2JX, MK18 — £14,000 • 1 bed • 1 bath














































