Large chain-free Tudor Revival home with pool and mature gardens in prime Totteridge..
Chain-free Tudor Revival detached house, prime Totteridge Lane location
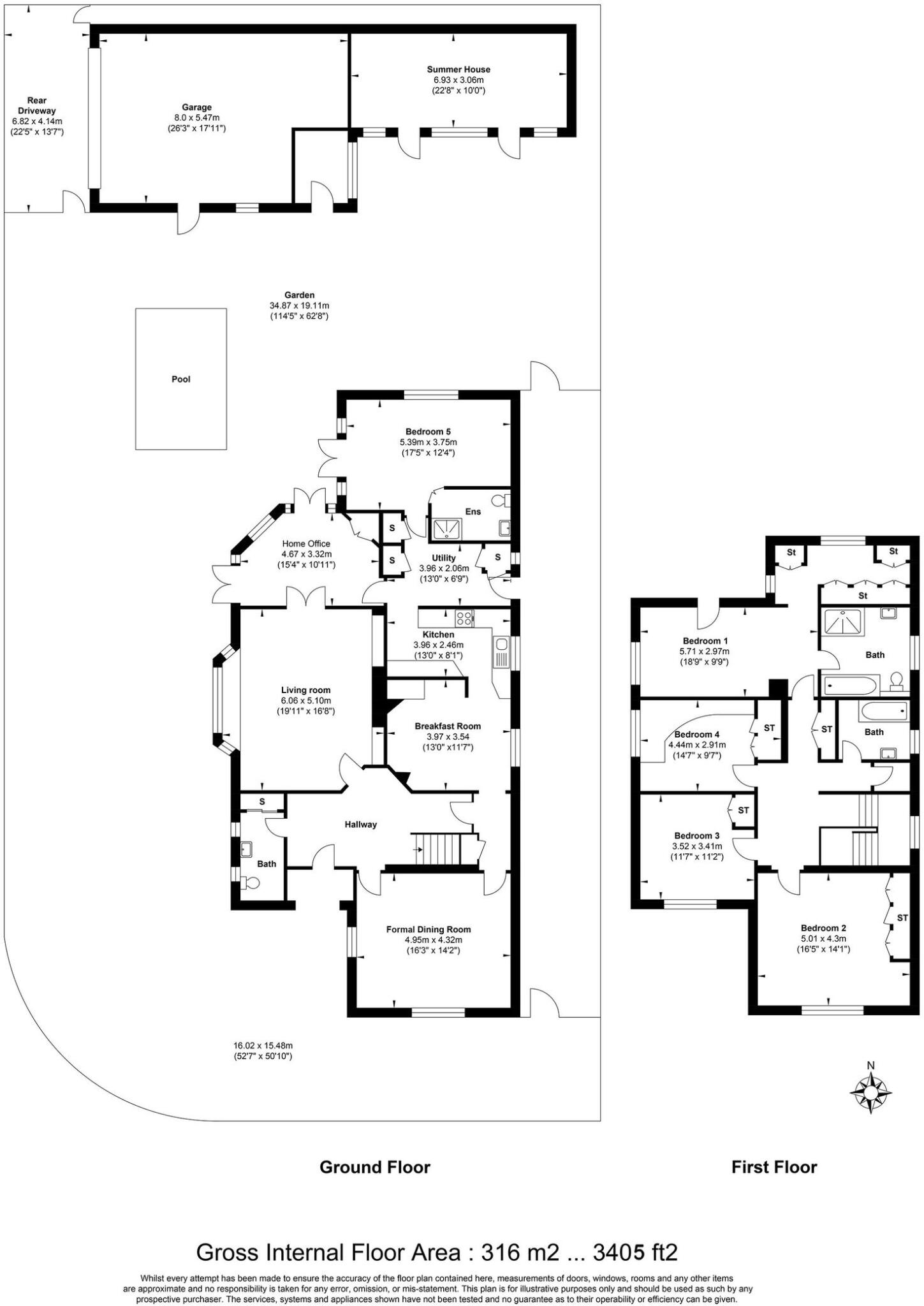
Large lateral living: 3,405 sq ft, flexible ground-floor layout (possible 5th bedroom)
Principal suite with walk-in wardrobe and four-piece en-suite
Mature landscaped gardens, private swimming pool, summer house and greenhouse
Substantial double garage and generous off-street parking
Built 1930–1949 solid brick; walls assumed uninsulated — potential retrofit needed
Double glazing install date unknown; energy improvements may be required
Council tax very expensive; pool and gardens need regular maintenance
Set on highly sought-after Totteridge Lane, this substantial Tudor Revival detached home offers generous living across two floors for growing families. The ground floor layout flows from a formal living room to a flexible office/gym, separate dining room, integrated kitchen with breakfast area and a TV room that could serve as a fifth en-suite bedroom. Upstairs the principal suite includes a walk-in wardrobe and four-piece en-suite, alongside three further double bedrooms with built-in storage.
Outside, mature landscaped gardens provide distinct areas for relaxation and entertaining, anchored by a private swimming pool and complemented by a summer house and greenhouse. Practical outbuildings include a substantial double garage and ample off-street parking. The house is chain-free and conveniently close to Totteridge & Whetstone station, good local schools and leisure facilities.
Buyers should note this is a solid-brick house built in the 1930s–40s; walls are assumed to lack insulation and the double-glazing install date is unknown, which may mean further insulation or window upgrades are needed. The pool and large garden require ongoing maintenance. Council tax is very expensive; prospective purchasers should factor this and routine upkeep into running costs.
Overall, the property suits a family seeking character, space and garden privacy in a very affluent area, with scope to update services and improve energy efficiency to modern standards.
5 bedroom detached house for sale in Totteridge Lane, London, N20 — £2,250,000 • 5 bed • 3 bath • 3405 ft²
5 bedroom detached house for sale in Totteridge Lane, Totteridge, London, N20 — £2,250,000 • 5 bed • 3 bath • 3401 ft²
6 bedroom detached house for sale in Totteridge Green, London, N20 — £4,500,000 • 6 bed • 5 bath • 4765 ft²
6 bedroom house for sale in Wykeham House, Wykeham Rise, Totteridge, London, N20, United Kingdom, N20 — £5,950,000 • 6 bed • 4 bath • 6752 ft²
4 bedroom detached house for sale in Pine Grove, London, N20 — £3,500,000 • 4 bed • 5 bath • 4068 ft²
8 bedroom detached house for sale in Totteridge Lane, Totteridge, N20 — £3,750,000 • 8 bed • 6 bath • 500 ft²










































































