Large estate with proven events trade and planning for extra function space.
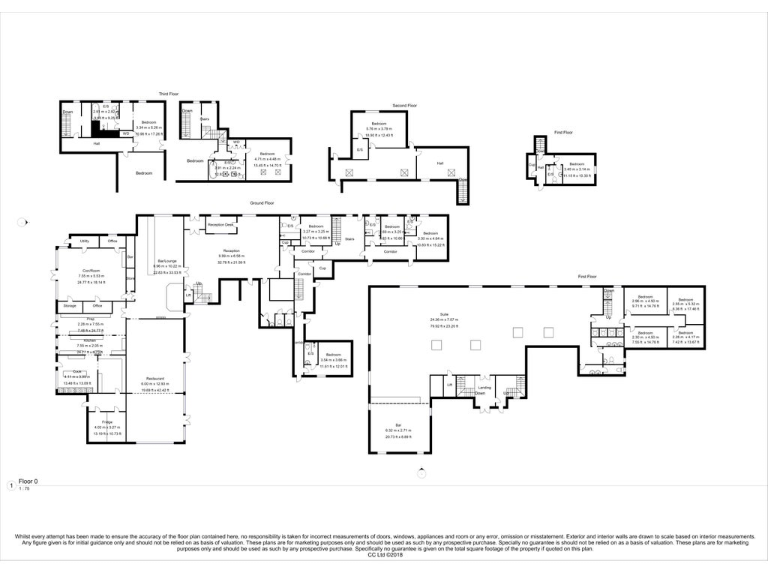
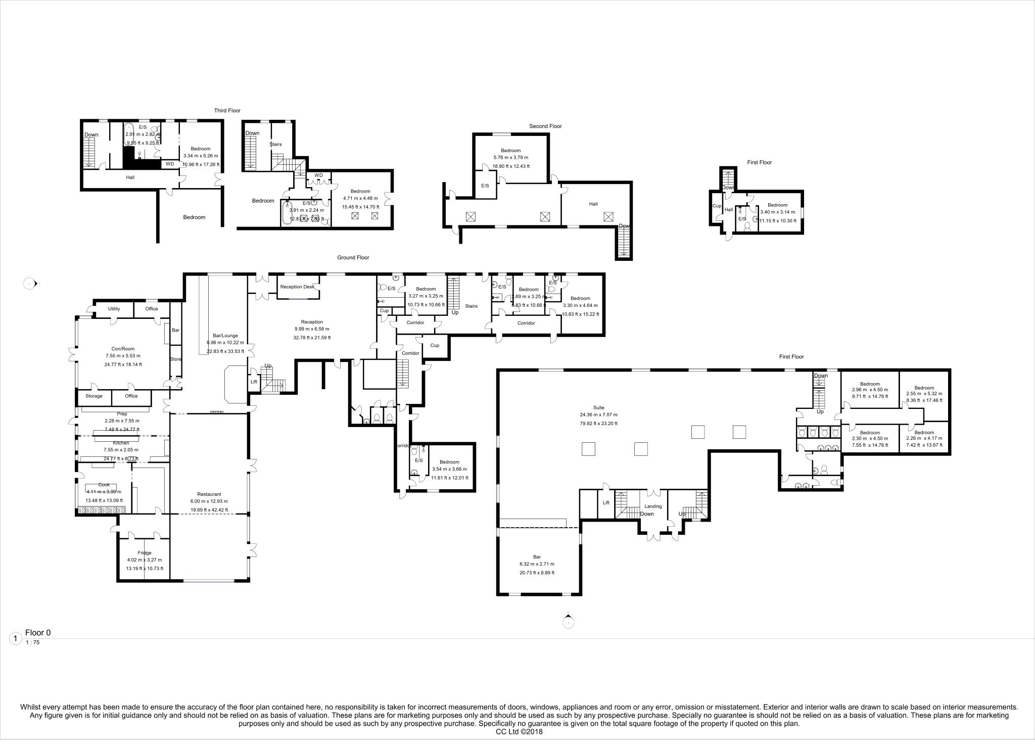
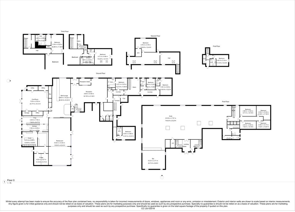
22 ensuite guest bedrooms across three floors
A substantial stone-built country hotel set in c.11.08 acres at the foot of the Black Mountains, this former four-star Old Rectory offers immediate scale and flexibility. Recently renovated and extended, the property includes 22 ensuite guest bedrooms, a newly extended events/function hall (200 capacity) with lift, and a 40-space car park — all presented in good decorative order. Energy rating C.
The site benefits from proven wedding and events trade historically and planning permission for a standalone function room in the grounds (potential spa or alternative use). The grounds include formal lawns, an ancient orchard, a former nine-hole course now laid to lawn, a large patio with panoramic Brecon Beacons views, and significant scope for additional accommodation (glamping/lodges subject to consents).
Key positives are the large scale, immediate re-opening potential for hospitality use, and multiple alternative uses (care, SEN facility, private residence subject to consent). Important constraints: the business is currently closed, broadband is slow, the local area records high deprivation despite low crime, and the building’s stone walls are assumed to lack insulation (typical for pre-1900 construction). Buyers should factor in reopening costs, ongoing operational overheads for a large property, and any further works required to meet current regulations or specific conversion uses.
This asset will suit an investor or operator seeking a large, character property in a prime Brecon Beacons location with existing events infrastructure and clear development potential. Due diligence on services, insulation remediation, and commercial restart costs is recommended before purchase.
22 bedroom detached house for sale in Old Rectory Country Hotel, Llangattock, Crickhowell, NP8 1PH, NP8 — £1,300,000 • 22 bed • 1 bath • 3748 ft²
22 bedroom hotel for sale in Llangattock, Powys, NP8 — £1,300,000 • 22 bed • 22 bath • 15232 ft²
22 bedroom country house for sale in Llangattock, Powys, NP8 — £1,300,000 • 22 bed • 22 bath • 15233 ft²
9 bedroom property for sale in Rhymney Bridge, Rhymney, Tredegar, NP22 — £400,000 • 9 bed • 9 bath • 6157 ft²
15 bedroom hotel for sale in Llangammarch Wells, Brecknockshire, Powys, Mid Wales, LD4 — £795,000 • 15 bed • 1 bath • 1561 ft²
8 bedroom hotel for sale in Monmouthshire Riverside Village Exceptional Hotel/inn Of Architectural Appeal, NP16 — £650,000 • 8 bed • 1 bath • 678 ft²






































































































































































