Chain-free ground-floor flat with private front and rear gardens
Newly refurbished throughout; modern kitchen with integrated appliances
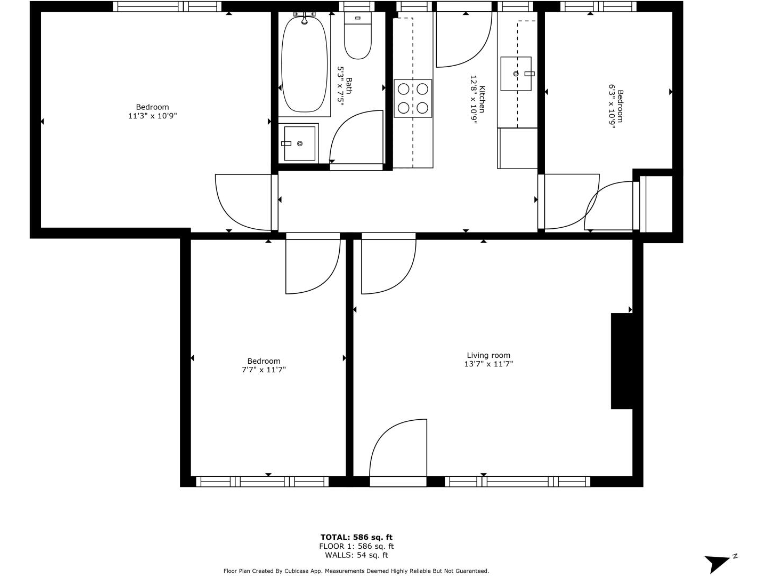
Three good-sized bedrooms in a compact 586 sq ft layout
Long lease (~249 years) and service charge approx. £625 pa
EPC rating E — energy performance is below modern standards
Medium flood risk in the area — investigate insurance costs
Conflicting heating info (electric listed; records show gas boiler) — confirm
Small overall size; best suited to first-time buyers or investors
This newly refurbished three-bedroom ground-floor apartment in Beech Avenue offers a compact, move-in-ready home with private front and rear gardens. Finished to a contemporary standard, the property benefits from a modern fitted kitchen with integrated appliances and a bright living/dining room overlooking the front garden — ideal for first-time buyers or professionals wanting low-upfront renovation needs.
Practical details support ownership: a long lease (approx. 249 years), a below-average estimated service charge of £625 per annum (including buildings insurance), and chain-free sale for a quick process. The flat’s central location places West Bank Park, Acomb’s shops and delis, and York city centre within easy reach, while good local schools and fast broadband make it suitable for families and remote workers.
Buyers should note a few material points: the Energy Performance Certificate is rated E, the property is small at about 586 sq ft, and there is a recorded medium flood risk for the area. There is conflicting heating information in the listing (electric heating stated alongside records showing a mains-gas boiler and radiators) — this should be clarified prior to offer.
Overall this ground-floor apartment is a practical, characterful purchase for first-time buyers, investors seeking a lettable city property, or downsizers wanting garden access without stairs. The freshly renovated interior reduces immediate expenditure, while the long lease and modest service charge make ownership straightforward.
2 bedroom flat for sale in Beech Avenue, York, North Yorkshire, YO24 — £185,000 • 2 bed • 1 bath • 528 ft²
3 bedroom flat for sale in Beech Avenue, York, North Yorkshire, YO24 — £190,000 • 3 bed • 1 bath • 562 ft²
1 bedroom apartment for sale in Askham Lane, York, YO24 — £165,000 • 1 bed • 1 bath • 452 ft²
2 bedroom ground floor flat for sale in Princess Drive, York, YO26 5SY, YO26 — £175,000 • 2 bed • 1 bath • 543 ft²
3 bedroom town house for sale in Barkston Avenue, York, YO26 — £230,000 • 3 bed • 1 bath • 764 ft²
2 bedroom apartment for sale in Yearsley House, Pinsent Court, York, YO31 — £200,000 • 2 bed • 2 bath • 689 ft²










































