Compact modern apartment with balcony close to York centre and transport.
Newly refurbished throughout, move-in ready
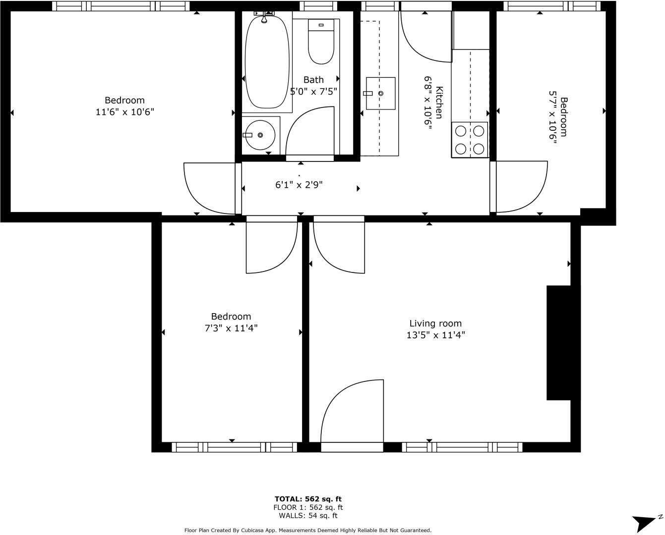
This newly refurbished three-bedroom first-floor flat offers modern, move-in-ready accommodation within easy reach of York city centre and the train station. A bright living/dining room faces the front, while a fitted kitchen opens onto a rear balcony — a useful outside spot for fresh air or morning coffee.
Two good-sized bedrooms and a third smaller bedroom provide flexible space for a couple, small family, or home working. The bathroom is newly installed with a bath and shower over and a window for natural ventilation. Heating is mains gas via a boiler and radiators; double glazing is already installed.
Practical details suit many buyers: a long lease (approximately 249 years remaining), a below-average annual service charge (£625 including buildings insurance), and an EPC rating of C. The property is offered chain-free and could work well for first-time buyers or investors seeking a low-maintenance rental asset.
Important considerations: the flat is compact at around 562 sq ft and has a single bathroom, which may feel tight for larger households. There is a medium flood risk in the area; purchasers should obtain specialist advice and appropriate insurance. The property is leasehold, so future buyers should review management arrangements and permissions (for pets and letting) with the managing agent.
3 bedroom flat for sale in Beech Avenue, York, North Yorkshire, YO24 — £200,000 • 3 bed • 1 bath • 586 ft²
3 bedroom flat for sale in Driffield Terrace, York, North Yorkshire, YO24 — £375,000 • 3 bed • 2 bath • 1061 ft²
3 bedroom flat for sale in Burton Croft, York, YO30 — £300,000 • 3 bed • 2 bath • 985 ft²
3 bedroom terraced house for sale in Brunswick Street, York, North Yorkshire, YO23 — £389,950 • 3 bed • 1 bath • 826 ft²
2 bedroom apartment for sale in St. Stephens Road, York, YO24 — £170,000 • 2 bed • 1 bath • 629 ft²
2 bedroom flat for sale in Constable Court Millfield Avenue, York, YO10 3XA, YO10 — £200,000 • 2 bed • 1 bath • 468 ft²


















































