Two cottages, 9 acres and extensive outbuildings — major renovation and development potential..
- Two brick semi-detached cottages with character, presently separate dwellings
- Approximately 9.01 acres of pasture, paddock and yard
- Numerous outbuildings and stables with conversion potential (subject to planning)
- Requires comprehensive renovation and modernisation throughout
- Oil-fired central heating; mains water and electricity present but systems untested
- Broadband reported low (around 5 Mbps); mobile signal good
- Sale subject to overage: 50% uplift payable for 80 years on development
- Conditions: council retains driveway rights; 1.5% buyer contribution to vendor fees
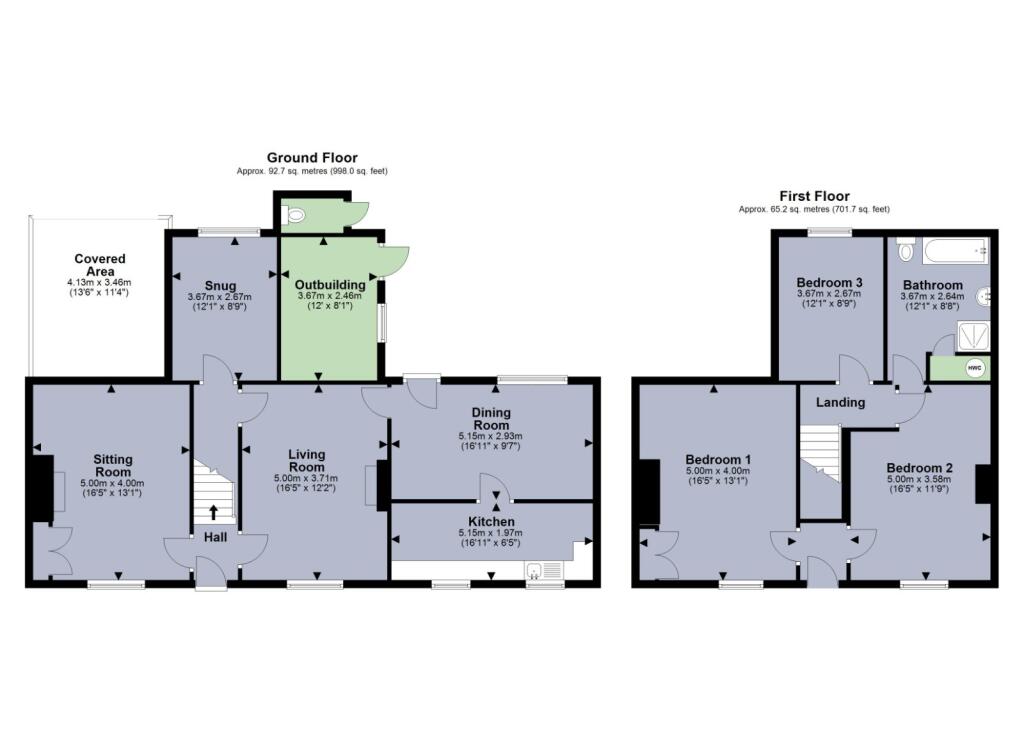
Pastures Farm at 1 Yew Tree Cottage is a rare rural holding: two attached brick cottages with extensive outbuildings and about 9.01 acres of paddock and pasture. The two cottages are long-standing and characterful but require comprehensive renovation. There is clear scope—subject to planning—to reconfigure or combine the two dwellings into a single substantial family residence, or to refurbish the buildings for mixed residential/equestrian use.
The plot includes a large wrap-around yard, multiple farm buildings and stables offering conversion potential (subject to planning). The site is reached by a long private driveway and sits in open rolling Cheshire countryside with uninterrupted country views; the location is peaceful, low-crime and well suited to hobby farming, equestrian use, or a high-value conversion project.
Material considerations are significant and stated plainly: both cottages need modernisation; no planning permissions are currently granted; mains services exist but installations and appliances are untested; heating is oil-fired; walls are likely solid with no insulation; broadband at the postcode has been recorded as c.5 Mbps. The sale includes restrictive conditions: the council retains rights over the driveway, an overage clause (50% of value uplift for 80 years) applies to development, a 1.5% buyer contribution to vendor legal fees is payable and purchasers must sever/maintain certain utilities and fencing.
For buyers with renovation experience or developers willing to secure planning consent, the property offers significant upside from conversion and land value. For a family seeking an immediate turnkey home, the property is not ready to move into without substantial investment.
3 bedroom detached house for sale in Oaklands Farm, Heybridge Lane, Prestbury, SK10 — £2,150,000 • 3 bed • 1 bath • 1800 ft²
4 bedroom semi-detached house for sale in Over Peover, Knutsford, WA16 — £500,000 • 4 bed • 1 bath • 5219 ft²
4 bedroom detached house for sale in Smithy Lane, Hulme Walfield, Congleton, Cheshire, CW12 — £1,250,000 • 4 bed • 2 bath • 3151 ft²
9 bedroom barn conversion for sale in Haslington, Cheshire, CW1 — £575,000 • 9 bed • 6 bath • 7318 ft²
4 bedroom detached house for sale in Saverley Green, Stoke-on-Trent, ST11 — £650,000 • 4 bed • 1 bath • 2835 ft²
3 bedroom farm house for sale in Pethills Head Farm, Bottomhouse, ST13 — £700,000 • 3 bed • 2 bath • 2009 ft²


















































































































