**Standout Features:**
- Expansive semi-detached farmhouse with traditional brick construction.
- Large scale at approximately 7,318 sq. ft. on a plot of 3.72 acres.
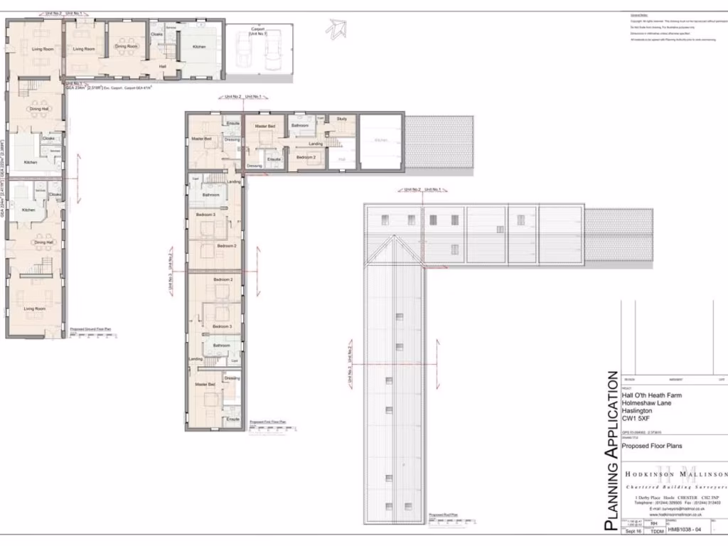
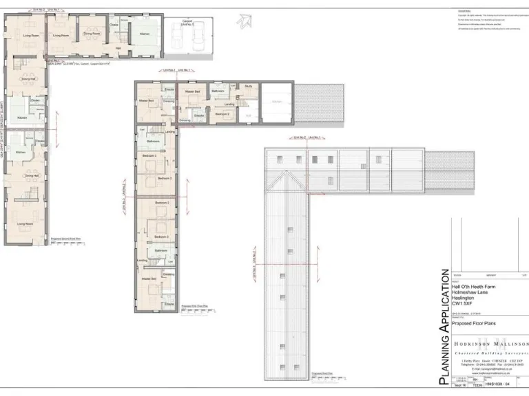
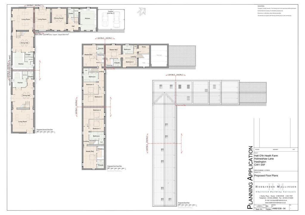
- Previously granted planning permission for conversion of farm buildings into 3 residential units.
- Mature gardens and established orchard enhance the countryside charm.
- Set in a peaceful hamlet with low crime rates and scenic views.
**Notable Concerns:**
- Planning permission has expired and requires renewal for residential development.
- Property needs significant renovation to modernize and improve living conditions.
- Broadband speeds are very slow, which may affect connectivity.
Discover the perfect blend of rustic charm and expansive potential at Hall O’th Heath Farm, nestled in the tranquil countryside of Haslington, Cheshire. This spacious farmhouse features traditional brick construction, offering comfort and rustic elegance inside, while outside, the extensive grounds boast mature gardens and an established orchard, ideal for gardening enthusiasts or peaceful retreats. The large plot provides the unique opportunity for a renovation project, allowing for the dream of creating modern countryside living or expanding through a new planning application.
With the charm of the surrounding landscape and proximity to local amenities in nearby Crewe, Sandbach, and Nantwich, this property is perfect for families looking for a serene environment or investors seeking a profitable development opportunity. Note, however, the need for renovations and the expired planning permissions, which presents a challenge but also offers room for customization to suit your vision. Don’t miss out on the chance to transform this expansive estate into your forever home or lucrative venture—properties of this size and location are seldom available for long!
4 bedroom smallholding for sale in Buttertons Lane Farm, Butterton Lane, Haslington, CW1 — £550,000 • 4 bed • 1 bath • 1788 ft²
6 bedroom detached house for sale in Chorley Stock Farm, Chorley Stock Lane, Chorley, CW5 8JR., CW5 — £1,350,000 • 6 bed • 1 bath • 6886 ft²
3 bedroom semi-detached house for sale in Bradeley Road, Haslington, Crewe, CW1 — £475,000 • 3 bed • 2 bath • 2642 ft²
6 bedroom detached house for sale in Long Lane, Alpraham, Cheshire , CW6 — £975,000 • 6 bed • 1 bath • 5350 ft²
4 bedroom detached house for sale in Smithy Lane, Hulme Walfield, Congleton, Cheshire, CW12 — £1,250,000 • 4 bed • 2 bath • 3151 ft²
6 bedroom detached house for sale in Tarporley, Cheshire, CW6 — £1,500,000 • 6 bed • 2 bath • 4788 ft²














































































































