Spacious village-side four-bed with modern upgrades and low-maintenance garden.
- Double extended in 2015 for larger living areas
- Four bedrooms with large newly fitted four-piece bathroom (2023)
- Open-plan kitchen/family room with bi-fold doors
- Double block-paved driveway with EV charger and off-street parking
- Replacement roof 2015 and new Worcester Bosch boiler
- Low-maintenance rear garden with artificial lawn and seating
- Small plot size; garden is compact for a family home
- Single family bathroom for four bedrooms may be limiting
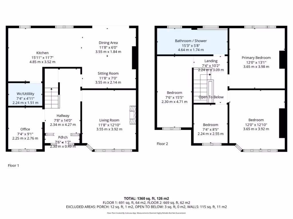
Tucked at the end of a quiet cul-de-sac between the two village centres of Heaton Moor, this extended Edwardian semi-detached house is arranged for contemporary family life. The 2015 double extension and high ceilings create generous ground-floor living, anchored by a bright open-plan kitchen and family room with bi-fold doors to the rear garden. Original details such as the stained-glass porch and a bay-fronted lounge with a log burner add period character.
Practical upgrades include a replacement roof (2015), a new Worcester Bosch boiler, an EV charger on the double block-paved driveway, and a bespoke timber bin store with a living roof. The large four-piece bathroom was refitted in 2023, and the layout includes a separate home office, utility room and useful under-stairs children’s nook — all attractive features for a growing family.
The plot has been arranged for low-maintenance outdoor living with an artificial lawn and seating area, making entertaining straightforward. Local schools are strong, and transport links (including Heaton Chapel station) and village amenities are within easy reach.
Important practical points: the property sits on a relatively small plot and has one family bathroom serving four bedrooms, which may be a consideration for larger families. Some original elements (double glazing fitted pre-2002) and the house’s 1930s construction mean there is potential for periodic maintenance or further modernisation to maximise long-term efficiency and value.
4 bedroom semi-detached house for sale in Parsonage Road, Heaton Moor, Stockport, SK4 — £685,000 • 4 bed • 2 bath • 1805 ft²
4 bedroom semi-detached house for sale in Rosedale Road, Heaton Chapel, Stockport, SK4 — £600,000 • 4 bed • 2 bath • 1730 ft²
4 bedroom semi-detached house for sale in Norfolk Avenue, Heaton Chapel, SK4 — £495,000 • 4 bed • 1 bath • 1841 ft²
3 bedroom semi-detached house for sale in Bower Avenue, Heaton Norris, Stockport, SK4 — £475,000 • 3 bed • 1 bath • 998 ft²
3 bedroom semi-detached house for sale in Alexandra Road, Heaton Norris, Stockport, SK4 — £520,000 • 3 bed • 1 bath • 1434 ft²
4 bedroom terraced house for sale in Devonshire Road, Heaton Moor, Stockport, SK4 — £625,000 • 4 bed • 1 bath • 1340 ft²














































































































