**Standout Features:**
- Stunning Victorian semi-detached home on a desirable cul-de-sac
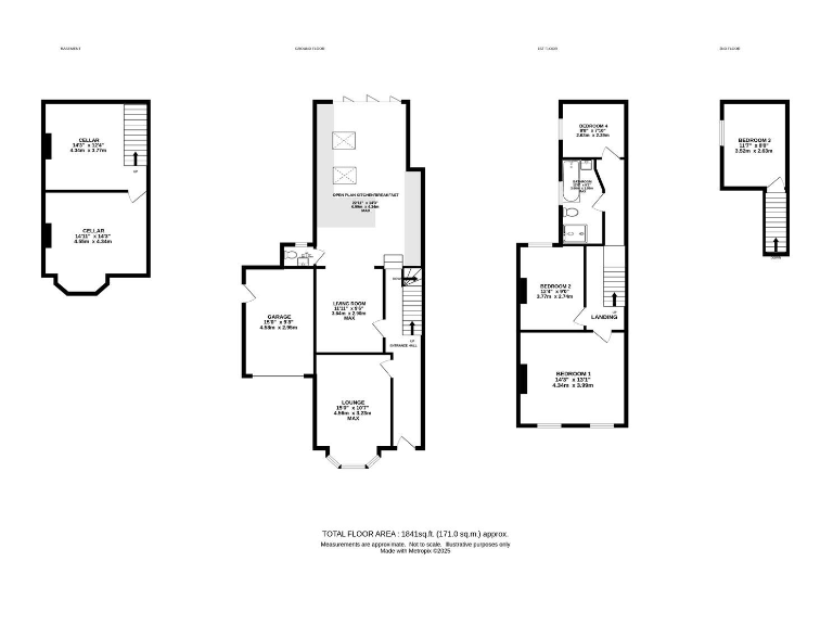
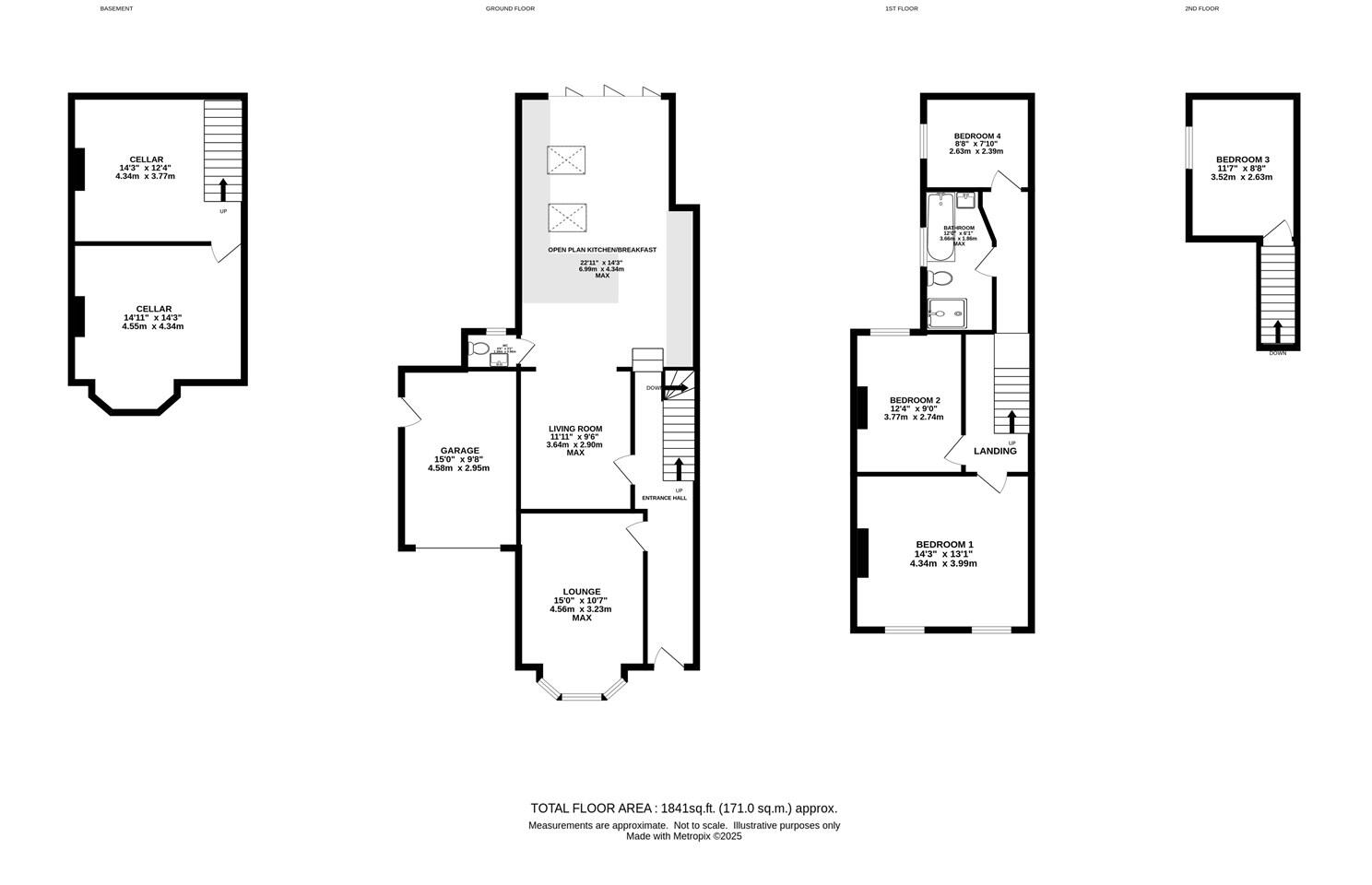
- Extended living space over four floors
- Open-plan kitchen diner with skylights and bi-folding doors
- Four well-proportioned bedrooms, including a spacious main suite
- Beautifully private garden with decking areas
- Attached garage and parking for multiple vehicles
- Close proximity to excellent local schools and transport links
- Great amenities nearby, including bars, restaurants, and leisure options
This captivating period home offers a unique blend of classic charm and modern convenience, perfect for families looking for space and a welcoming community. The generous open-plan kitchen and dining area is ideal for entertaining, featuring stunning skylights and bi-folding doors that open onto the tranquil garden. Enjoy the luxurious four-piece bathroom and a flexible layout, which includes a large bedroom suite and a further double bedroom on the top floor, providing plenty of room for family or guests.
While the property boasts original features and a solid structure, potential buyers should note that the solid brick walls lack insulation, which may warrant future attention for energy efficiency. Additionally, there are two cellar chambers providing valuable storage options.
Don’t miss the chance to make this exquisite home yours! With its perfect location, ample living space, and future renovation potential, this property is sure to appeal to families and buyers looking for both style and comfort—book your viewing today!
3 bedroom semi-detached house for sale in Norfolk Avenue, Heaton Chapel, SK4 — £375,000 • 3 bed • 1 bath • 1070 ft²
5 bedroom semi-detached house for sale in Alford Road, Heaton Chapel, Stockport, SK4 — £625,000 • 5 bed • 2 bath • 2183 ft²
3 bedroom semi-detached house for sale in Buckingham Road, Heaton Chapel SK4 4QU, SK4 — £475,000 • 3 bed • 1 bath • 1016 ft²
4 bedroom semi-detached house for sale in Brook Road, Heaton Chapel, Stockport, SK4 — £650,000 • 4 bed • 1 bath • 2131 ft²
4 bedroom semi-detached house for sale in Brackley Road, Heaton Chapel, Stockport, SK4 — £500,000 • 4 bed • 1 bath • 1285 ft²
3 bedroom semi-detached house for sale in Christleton Avenue, Heaton Chapel, SK4 — £400,000 • 3 bed • 1 bath • 948 ft²














































































































