**Standout Features:**
- Modern mid-terrace property with a charming red brick façade
- Two double bedrooms and one bathroom
- Private rear garden and off-street parking
- Open plan dining kitchen fitted with cream units and integrated appliances
- Central heating and double glazing for comfort
- Conveniently located close to the town centre and local amenities
**Potential Considerations:**
- Small overall size at 557 sq ft
- Leasehold tenure may require attention for potential buyers
- Local area classification indicates some deprivation and average crime rates
**Summary:**
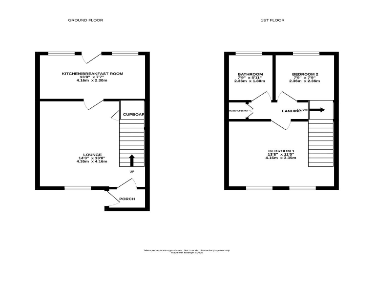
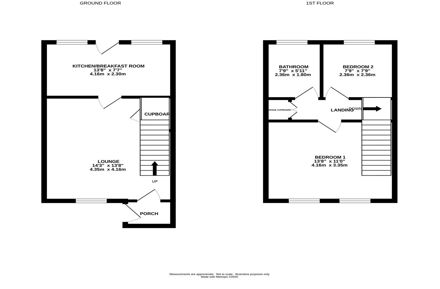
Discover this beautifully presented two-bedroom mid-terrace house, ideal for first-time buyers or small families seeking a comfortable home in a great location close to the town centre. The property boasts a welcoming living room and an open plan dining kitchen complete with modern appliances and ample storage. Upstairs, two cozy double bedrooms share a well-equipped bathroom, making it perfect for quick morning routines.
Step outside to your private rear garden, a serene space for leisure or entertaining, and enjoy the added convenience of off-street parking. While the property is in good condition, it offers potential for personalization and renovation, allowing you to make it truly your own.
With fast broadband speeds and excellent mobile signal, you’ll enjoy connectivity while being surrounded by local amenities, schools, and the scenic Cheshire countryside. Don’t miss your chance to make this charming property your home; schedule your viewing today as opportunities like this don’t last long!
2 bedroom end of terrace house for sale in Fountain Street, Macclesfield, SK10 — £179,950 • 2 bed • 1 bath
2 bedroom mews property for sale in Tabor Street, Macclesfield, SK11 — £215,000 • 2 bed • 1 bath • 646 ft²
2 bedroom terraced house for sale in Lansdowne Street, Macclesfield, SK10 — £165,000 • 2 bed • 1 bath • 539 ft²
2 bedroom terraced house for sale in Crompton Road, Macclesfield, Cheshire, SK11 — £199,950 • 2 bed • 1 bath • 1023 ft²
2 bedroom house for sale in Chester Road, Macclesfield, , SK11 — £219,995 • 2 bed • 1 bath • 927 ft²
2 bedroom terraced house for sale in Newton Street, Macclesfield, SK11 — £250,000 • 2 bed • 2 bath • 883 ft²










































