Ready-to-move-in two-bed close to shops, schools and transport links.
End-of-terrace with good-size private rear garden
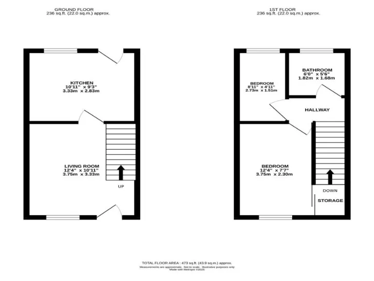
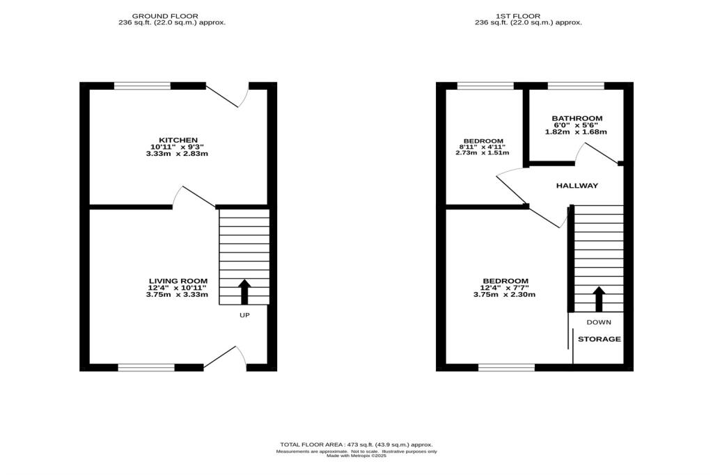
This well-presented two-bedroom end terrace offers straightforward, move-in-ready accommodation close to Macclesfield town centre. The ground-floor lounge leads to a modern fitted dining kitchen with direct access to a private, enclosed rear garden that is not overlooked. UPVC double glazing and gas central heating provide day-to-day comfort.
The first floor houses two bedrooms and a bathroom with shower-over-bath. The boiler is located in a wardrobe in the master bedroom for easy access. The property is freehold and sold with no onward chain, making it suitable for buyers seeking a quick, low-friction purchase.
Practical positives include a good-size private garden and permit on-street parking nearby. The house sits in a popular part of town with good schools, fast broadband and excellent mobile signal — handy for commuters and first-time buyers.
Notable points to consider: rooms are generally small and the cottage-style, solid-brick walls were built early 20th century and likely lack cavity insulation. There may be potential to improve thermal performance and storage with targeted upgrades. Permit parking means no private driveway, and purchasers should factor parking arrangements into daily plans.
2 bedroom house for sale in Buxton Road, Macclesfield, SK11 — £190,000 • 2 bed • 1 bath • 656 ft²
2 bedroom terraced house for sale in Black Road, Macclesfield, SK11 — £215,000 • 2 bed • 1 bath • 608 ft²
2 bedroom end of terrace house for sale in Sandgate Road, Hurdsfield, Macclesfield SK10 2PR, SK10 — £185,000 • 2 bed • 2 bath • 926 ft²
2 bedroom end of terrace house for sale in Brocklehurst Avenue, Macclesfield, Cheshire, SK10 — £225,000 • 2 bed • 1 bath • 710 ft²
2 bedroom end of terrace house for sale in Brown Street, Macclesfield, SK11 — £170,000 • 2 bed • 1 bath • 715 ft²
2 bedroom terraced house for sale in Coare Street, Macclesfield, SK10 — £169,950 • 2 bed • 1 bath • 614 ft²






































