Private garden and generous living space near Ealing Common for growing families.
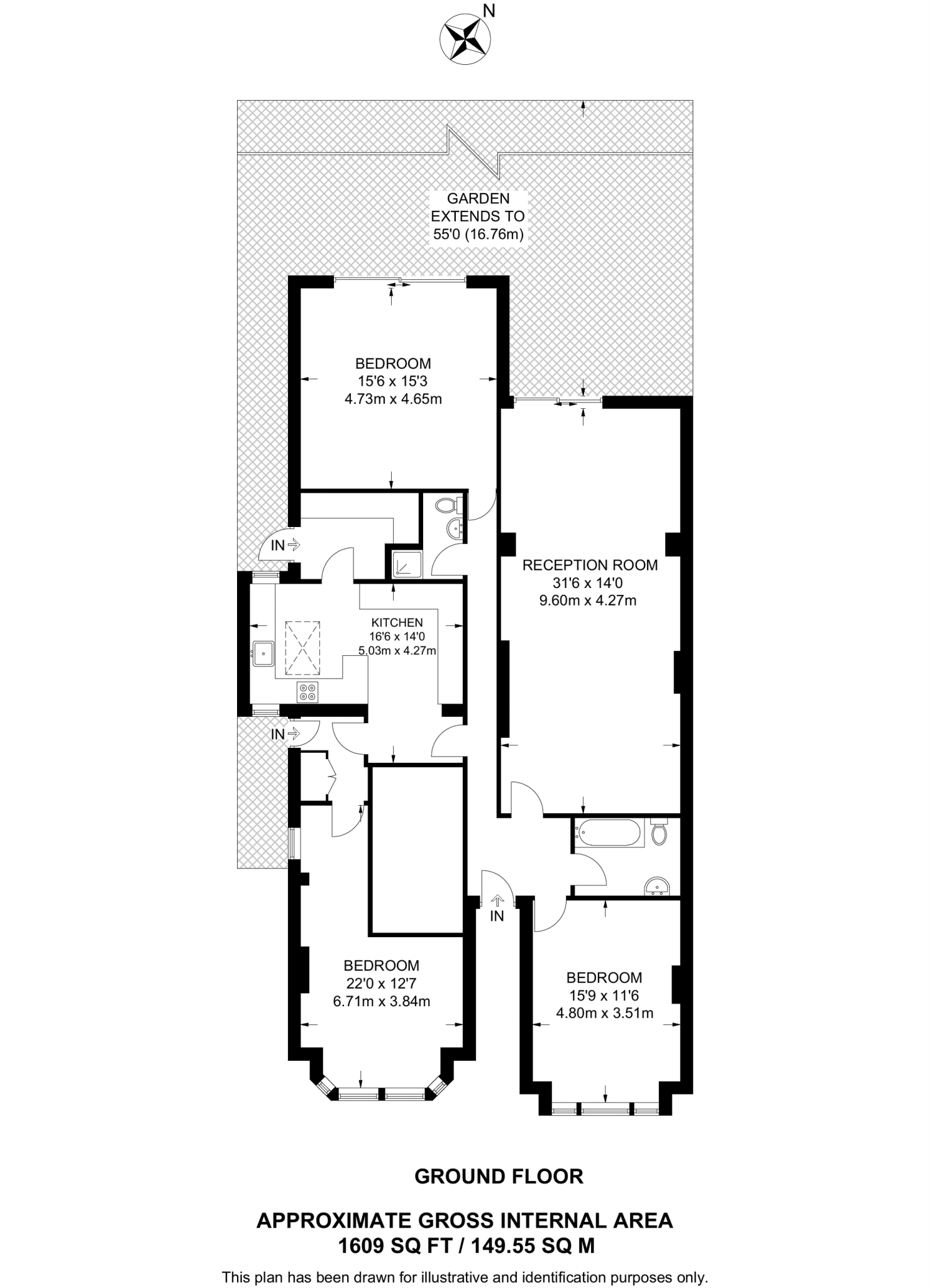
Ground-floor three-bedroom flat with private rear garden
Set on the ground floor of a handsome period building, this generously proportioned three-bedroom home offers substantial living space and a private rear garden — rare for flats in the area. High Edwardian ceilings, decorative cornicing and large French doors create an airy, characterful reception room that opens onto the garden, ideal for family living and entertaining.
The layout includes a large kitchen with an adjacent utility room, two bathrooms and five principal rooms across approximately 1,609 sq ft, giving scope for flexible bedroom or home-office arrangements. The property sits moments from Ealing Common and within easy reach of Ealing Broadway amenities and transport links, including Ealing Common station and convenient road access to the A4/M4.
Buyers should note this is a leasehold flat in a building constructed c.1900–1929 with solid brick walls and no known cavity insulation; double glazing is fitted but install date is unknown. Heating is mains gas with a boiler and radiators. These factors mean buyers may wish to budget for insulation or energy-efficiency improvements and to check lease details and service charges before purchase.
Overall, this is a roomy, characterful flat with a private garden and significant potential for a family seeking space close to Ealing Common, provided they are comfortable with leasehold tenure and possible fabric or efficiency upgrades.
3 bedroom flat for sale in Creffield Road, Ealing, London, W5 — £800,000 • 3 bed • 2 bath • 876 ft²
2 bedroom flat for sale in Freeland Road, London, W5 — £575,000 • 2 bed • 2 bath • 915 ft²
3 bedroom flat for sale in Freeland Road, London, W5 — £625,000 • 3 bed • 2 bath • 1066 ft²
3 bedroom flat for sale in Westfield Road, Northfields, Ealing, W13 — £475,000 • 3 bed • 1 bath • 864 ft²
2 bedroom flat for sale in Marchwood Crescent, Ealing, London, W5 — £625,000 • 2 bed • 1 bath • 899 ft²
2 bedroom apartment for sale in Inglis Road, London, W5 — £650,000 • 2 bed • 1 bath • 669 ft²


































































































