**Standout Features:**
- Newly built, two-bedroom semi-detached home
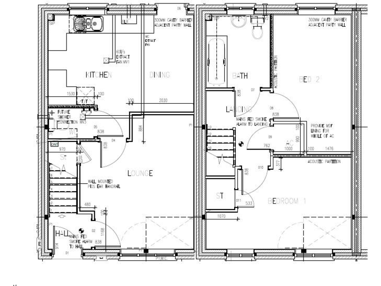
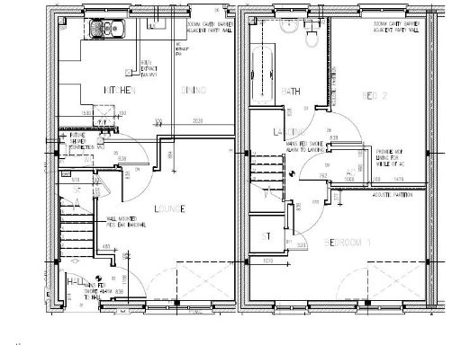
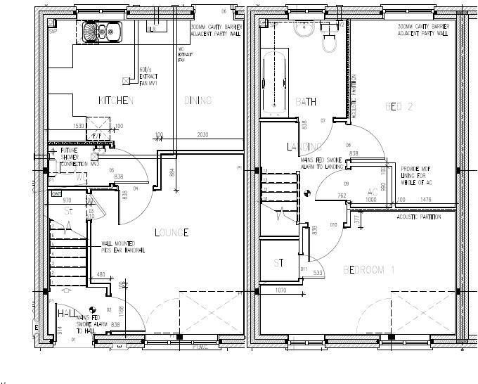
- Ground floor with cloakroom, lounge, and kitchen/dining room
- Off-road parking for two vehicles
- Shared ownership available at 40% (£96,500)
- Fast broadband and average mobile signal
**Potential Concerns:**
- Leasehold property with shared ownership
- Average area deprivation
Located in the serene countryside surrounding Bedworth, this modern semi-detached home offers the perfect blend of comfort and convenience. With two inviting bedrooms, a well-appointed kitchen/dining area, and a cozy lounge, it’s ideal for first-time buyers or those looking to downsize. Priced attractively for shared ownership, you can secure this stylish residence for £96,500, with a total monthly rent of £368.90.
Astley Fields, a brand-new development, is just a 10-minute drive from Junction 3 of the M6, making it ideal for commuters to Coventry or Birmingham. Families will appreciate the proximity to high-rated schools such as Newdigate Primary and Race Leys Junior School, while leisure options abound in nearby Nuneaton and Coventry. The property includes two off-street parking spaces and a tidy garden, perfect for entertaining or a little relaxation.
Don’t miss the chance to own this modern haven with a blend of tranquillity and accessibility—schedule your viewing now before it’s gone!
3 bedroom semi-detached house for sale in Astley Fields, Bedworth, Warwickshire, CV12 — £92,750 • 3 bed • 1 bath • 873 ft²
2 bedroom semi-detached house for sale in Astley Fields, Bedworth, Warwickshire, CV12 — £96,500 • 2 bed • 1 bath
2 bedroom semi-detached house for sale in Astley Fields, Bedworth, Warwickshire, CV12 — £96,500 • 2 bed • 1 bath • 479 ft²
2 bedroom semi-detached house for sale in Astley Fields, Bedworth, Warwickshire, CV12 — £96,500 • 2 bed • 1 bath • 513 ft²
2 bedroom semi-detached house for sale in Astley Fields, Bedworth, Warwickshire, CV12 — £96,500 • 2 bed • 1 bath • 563 ft²
2 bedroom semi-detached house for sale in Unit 77, Callendar Farm, Watling Street, Nuneaton, Warwickshire, CV11 — £100,000 • 2 bed • 1 bath • 750 ft²














