Chain-free, recently modernised and ready for family living.
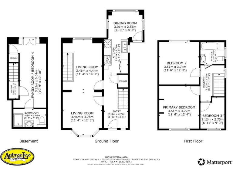
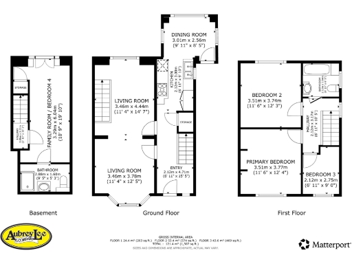
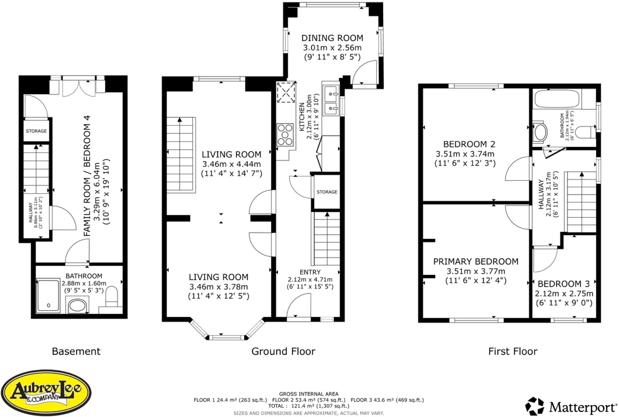
Extremely large 2,638 sq ft family semi in cul-de-sac
Spacious and versatile, this substantial three-bedroom semi in a quiet cul-de-sac offers roomy family living across an unusually large 2,638 sq ft footprint. A recent programme of stylish refurbishment has delivered a modern kitchen/diner, a newly fitted family bathroom and a basement with its own newly installed bathroom — a practical guest room, home office or potential fourth bedroom with direct garden access.
Externally the house benefits from a newly laid driveway, garage and large gardens, plus uPVC double glazing and gas central heating. The long lease (901 years) and chain-free sale make the property straightforward to buy, while excellent mobile signal and fast broadband suit home-working families.
Buyers should note the property sits in a very deprived area despite very low local crime rates; the EPC rating is D. Some interior areas and the main living room require finishing touches or selective updating to match the recent refurbishments. Overall this house suits families seeking generous space, garden room and flexible accommodation with immediate move-in potential and further scope to personalise.
3 bedroom semi-detached house for sale in Highclere Road, Manchester, M8 — £355,000 • 3 bed • 1 bath • 1152 ft²
3 bedroom semi-detached house for sale in Melton Road, Manchester, M8 — £299,950 • 3 bed • 1 bath • 967 ft²
5 bedroom detached house for sale in Healey Close, Salford, M7 — £450,000 • 5 bed • 2 bath • 1966 ft²
3 bedroom semi-detached house for sale in Harrop Street, Manchester, Greater Manchester, M18 — £265,000 • 3 bed • 1 bath • 1315 ft²
4 bedroom semi-detached house for sale in Mortlake Close, MANCHESTER, Lancashire, M28 — £275,000 • 4 bed • 1 bath • 997 ft²
3 bedroom semi-detached house for sale in Mayberth Avenue, Manchester, M8 — £245,000 • 3 bed • 1 bath • 689 ft²


































































































































































































































































