Quiet plot with scope to extend and off-street parking, chain-free and newly renovated.
Chain-free, newly renovated three-bedroom semi-detached house
Large rear garden with scope to extend (subject to planning permission)
Off-street parking to the front and boarded loft storage
Single full shower room plus separate downstairs WC
Leasehold with long lease remaining (971 years) and £50 ground rent
Average internal size for a three-bed; medium room proportions
Very low crime, fast broadband and excellent mobile signal
Located in a deprived inner-city area; check local services and outlook
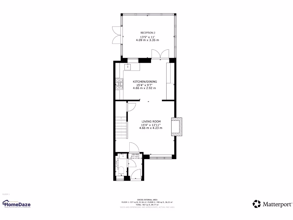
This newly renovated three-bedroom semi sits on a quiet, sought-after development and is offered chain-free for a swift purchase. The ground floor delivers a bright living room, a contemporary fitted kitchen with integrated appliances, a practical downstairs WC and a conservatory with an insulated roof that works well as a dining area, home office or playroom.
Upstairs are three well-proportioned bedrooms and a stylish shower room (single bathroom in the property). Practical storage is provided by a boarded loft with a large hatch and fitted ladder. The house occupies a generous corner plot with a large rear garden and clear scope to extend, subject to planning permission — good potential to increase living space or add value.
Practical advantages include off-street parking, fast broadband and excellent mobile signal, plus very low local crime and low council tax. The property is leasehold (long lease remainder of 971 years) with a small ground rent of £50 per year.
Points to note: the home sits in a deprived area within an inner-city, ethnically mixed neighbourhood — buyers should check local services and long-term area plans. The internal footprint is average for a three-bed semi, and any extension will require planning permission. Overall, this is a tidy, move-in-ready home that suits first-time buyers seeking a low-maintenance, chain-free purchase with future improvement potential.
3 bedroom semi-detached house for sale in Kempster Gardens, Salford, Greater Manchester, M7 — £300,000 • 3 bed • 1 bath • 944 ft²
3 bedroom semi-detached house for sale in Roch Bank, Blackley, Manchester, M9 — £295,000 • 3 bed • 2 bath • 905 ft²
3 bedroom semi-detached house for sale in Melton Road, Manchester, M8 — £300,000 • 3 bed • 1 bath • 842 ft²
3 bedroom semi-detached house for sale in Dales Avenue, Manchester, Greater Manchester, M8 — £375,000 • 3 bed • 1 bath • 2638 ft²
3 bedroom end of terrace house for sale in Burnage Lane, MANCHESTER, Lancashire, M19 — £375,000 • 3 bed • 1 bath • 1169 ft²
3 bedroom semi-detached house for sale in Ascot Avenue, Stretford, M32 0TX, M32 — £315,000 • 3 bed • 1 bath • 990 ft²


























































