Chain-free ground-floor two-bed with outside space and parking — prime for refurbishment..
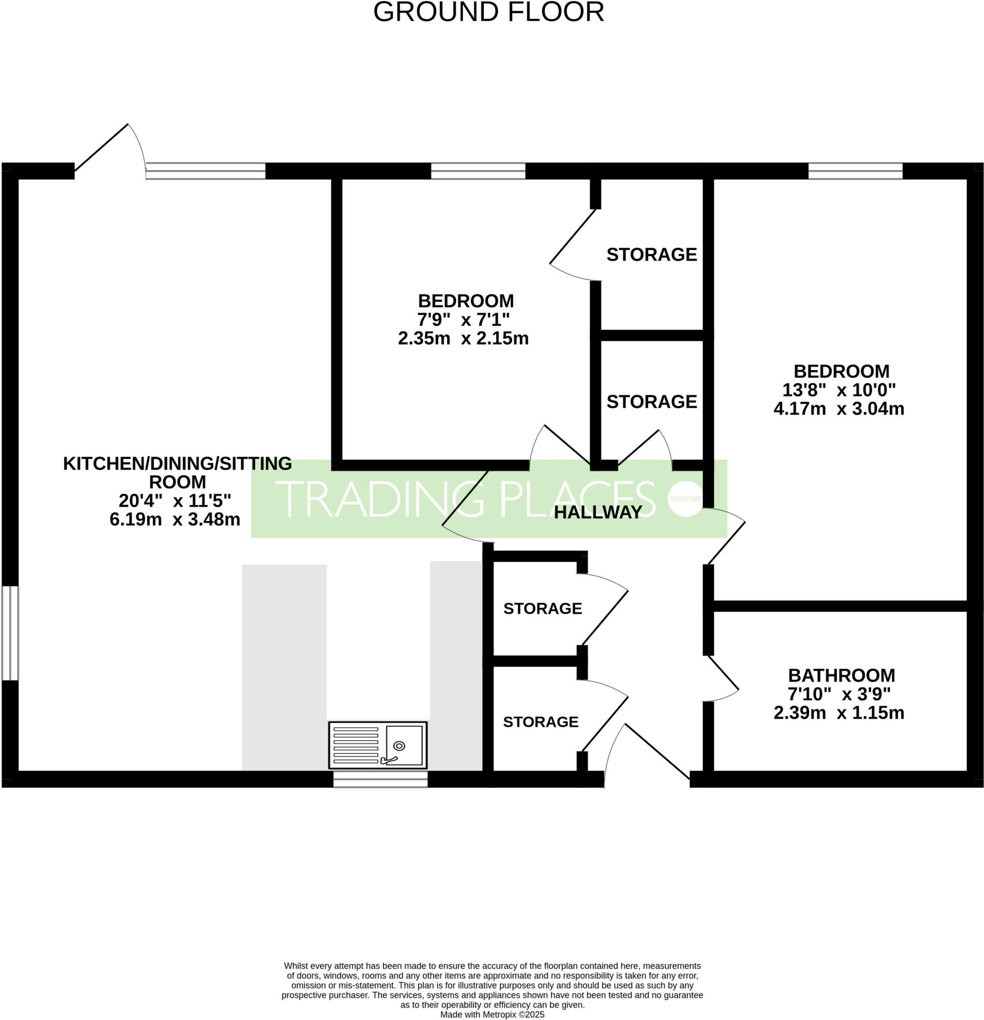
Ground-floor two-bedroom apartment, 453 sq ft
Chain-free sale with a 999-year lease remaining
Requires renovation and modernisation throughout
Electric storage heaters (no gas central heating)
Private outside space and off-street parking included
Compact size suited to first-time buyers or investors
Located in a higher-deprivation, constrained neighbourhood
Close to shops, bus links and several good schools
Ground-floor two-bedroom apartment in a 1970s block, offered chain-free with a long lease (999 years). The layout includes an open-plan living, dining and kitchen area that opens onto private outside space, plus off-street parking—useful in a built-up urban location. At 453 sq ft the flat is compact but well-proportioned for a first home or rental unit.
The property requires renovation and modernisation, presenting clear scope to add value through updating the kitchen, bathroom and finishes. Heating is electric via storage heaters and the apartment sits in a constrained, higher-deprivation area, which should be weighed against purchase price and long-term plans.
Local amenities are close by: shops, bus links, and Stretford Mall are within easy reach, and Manchester city centre is a short commute. Several primary and secondary schools nearby include outstanding and good Ofsted-rated options, which may appeal to buyers with children.
This is a practical opportunity for first-time buyers, downsizers or investors prepared to refurbish. The long lease, private outdoor space and parking are useful positives; budget for modernisation and consider the neighbourhood context when assessing future rental or resale potential.
1 bedroom apartment for sale in Manor Court, Urmston Lane, M32 9DE, M32 — £140,000 • 1 bed • 1 bath • 432 ft²
2 bedroom apartment for sale in Elmwood Court, Stretford, Manchester, Greater Manchester, M32 — £130,000 • 2 bed • 1 bath • 551 ft²
2 bedroom flat for sale in Debenham Road, Stretford, M32 9DG, M32 — £180,000 • 2 bed • 1 bath • 683 ft²
1 bedroom flat for sale in Manor Court, Urmston Lane, M32 9DE, M32 — £135,000 • 1 bed • 1 bath • 506 ft²
1 bedroom flat for sale in Stretford Road, Urmston, Trafford, M41 9NU, M41 — £190,000 • 1 bed • 1 bath • 456 ft²
2 bedroom apartment for sale in Tetlow Street, Middleton, Manchester, M24 — £120,000 • 2 bed • 1 bath • 501 ft²






















































