AL5 5TH - 4 bed spacious period family home in Barnfield Road, AL5 5TH

View on Property Piper

4 bedroom semi-detached house for sale in Barnfield Road, Harpenden, Hertfordshire, AL5

Summary - 31 BARNFIELD ROAD HARPENDEN AL5 5TH

4 bed 2 bath Semi-Detached

Characterful house with sizable kitchen/diner and driveway parking near top schools.
Four bedrooms including loft conversion
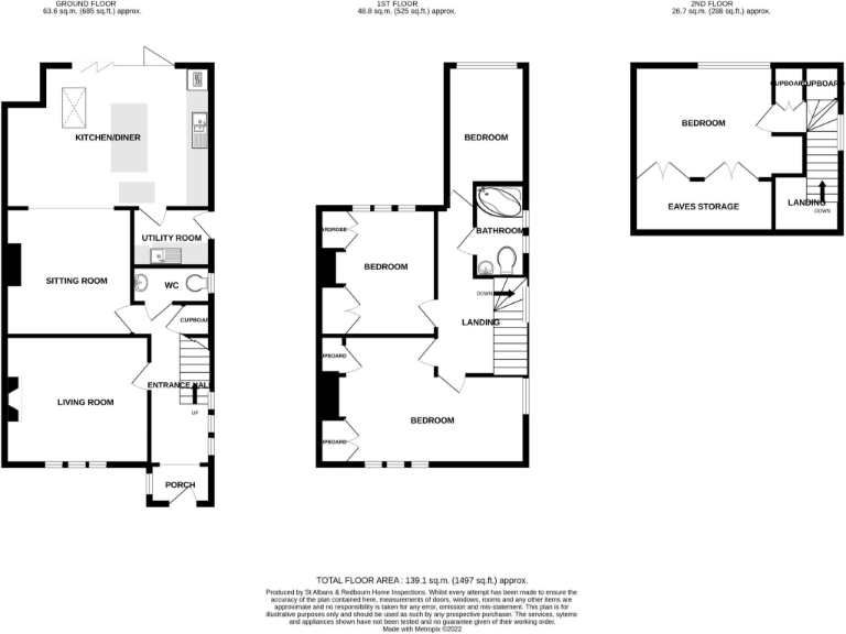
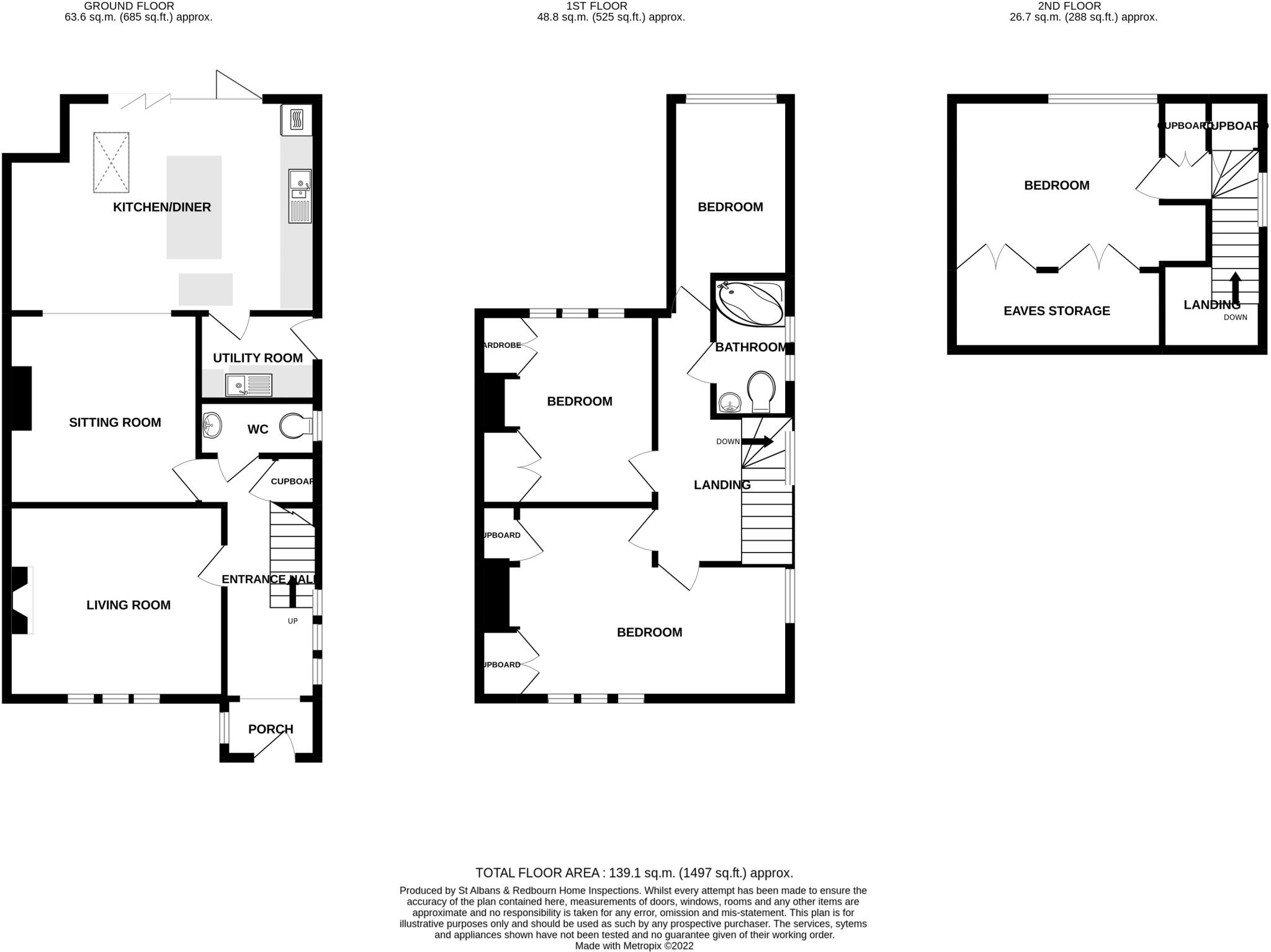
Set on a desirable Harpenden road, this extended 1930s semi‑detached house offers four bedrooms, two reception rooms and a large kitchen/dining space — a practical family layout within a mile of the town centre and mainline station. The property combines period Tudor‑Revival character with modern comforts such as double glazing and a contemporary kitchen, plus off‑street parking and a decent rear garden for children to play.

The house will particularly appeal to families wanting good local schools and a short commuter journey. Accommodation includes a utility and ground‑floor cloakroom, a first‑floor bathroom and a converted loft bedroom, giving flexible space for home working or growing children. Broadband and mobile signal are strong, and the area is very affluent with low crime levels.

A realistic buyer should allow for some modernisation and improvement to maximise the home’s potential: the solid brick walls are likely uninsulated, and bathrooms and some finishes would benefit from updating. There is scope to reconfigure or extend (subject to planning consent) to increase living space and value.

Freehold tenure, mains gas central heating and recent double glazing are practical advantages, but note council tax is above average. Overall this is a well‑located family home offering character, space and clear opportunities for sensible investment and improvement.

Property Details

Brochure Descriptions

Image Descriptions

Floorplan Description

Rooms

Textual Property Features

Target Audience

AI Tags

Detected Visual Features

EPC Details

Nearby Schools

Nearest Bars And Restaurants

,,,,}

Nearest General Shops

,,}

Nearest Grocery shops

,,}

Nearest Supermarkets

,,}

Nearest Religious buildings

,,}

Nearest Medical buildings

,,,}

Nearest Airports

,,}

Nearest Leisure Facilities

,,,,}

Nearest Tourist attractions

,,}

Nearest Train stations

,,,,}

Nearest Bus stations and stops

,,,,}

Nearest Hotels

,,}

Tags

Local Market Stats

Similar Properties

Meta

High Res Images

Compatible Images

Low res Images

Thumbnails

Raw Images

High Res Floorplan Images

Compatible Floorplan Images

Low res Floorplan Images

FloorplanImages Thumbnail

Raw Floorplan Images