Affordable new-build apartment with private garden and allocated parking.
- 30% First Homes discount for eligible first-time buyers
- Two-bedroom first-floor apartment with private entrance
- Private enclosed garden and patio, unusual for an apartment
- Allocated off-street parking space
- Integrated kitchen appliances and contemporary finishes
- Air-source heat pump heating; 10-year Build-Zone warranty
- First Homes eligibility, income cap and resale/letting restrictions apply
- Broadband speeds reported slow; energy assessment TBC
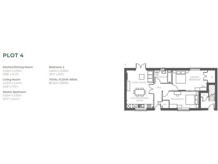
This newly built, two-bedroom first-floor apartment at Plot 4a Farm Field Place offers an affordable entry to homeownership through the First Homes scheme, with a 30% discount applied to the asking price. The flat has an open-plan kitchen/living/dining area fitted with integrated appliances, an allocated parking space and a private enclosed garden with patio — rare for an apartment and handy for outdoor space and easy entertaining. Heating is provided by electric air-source heat pumps and the development benefits from a 10-year Build-Zone warranty for structural peace of mind.
The First Homes discount brings the price within reach for qualifying buyers, but the scheme has important restrictions: both buyers must be first-time buyers, household income must not exceed £80,000, at least 50% of the discounted purchase must be mortgage-funded, and the property must be your main residence with limits on lettings. Local priority criteria also apply (residency, employment or close family links to the parish), so check eligibility carefully before viewing.
Practical considerations: broadband speeds in the area are reported as slow and the energy assessment is still to be confirmed. The apartment is freehold, sits in a small development of 21 homes with low local crime, and has average mobile signal and nearby primary schooling rated Good. Viewings are possible at the show home Friday–Sunday; note some interior photography is of a different plot (the show home).
Overall, this flat will suit first-time buyers prioritising affordability, modern low‑maintenance finishes, outdoor space and warranty-backed new build assurance — provided they meet First Homes criteria and accept slower digital connectivity in this small-town location.
 3 bedroom detached house for sale in 7 Farm Field Place, Herstmonceux, BN27 — £425,000 • 3 bed • 1 bath • 1007 ft²
 3 bedroom detached house for sale in 7 Farm Field Place, Herstmonceux, BN27 — £425,000 • 3 bed • 1 bath • 1007 ft² 4 bedroom detached house for sale in Plot 15 Farm Field Place, Herstmonceux, BN27 — £550,000 • 4 bed • 2 bath • 1344 ft²
 4 bedroom detached house for sale in Plot 15 Farm Field Place, Herstmonceux, BN27 — £550,000 • 4 bed • 2 bath • 1344 ft² 3 bedroom detached house for sale in Plot 12 Farm Field Place, Herstmonceux, BN27 — £500,000 • 3 bed • 2 bath • 1099 ft²
 3 bedroom detached house for sale in Plot 12 Farm Field Place, Herstmonceux, BN27 — £500,000 • 3 bed • 2 bath • 1099 ft² 3 bedroom terraced house for sale in Plot 6 Farm Field Place, Herstmonceux, BN27 — £425,000 • 3 bed • 1 bath • 1017 ft²
 3 bedroom terraced house for sale in Plot 6 Farm Field Place, Herstmonceux, BN27 — £425,000 • 3 bed • 1 bath • 1017 ft² 3 bedroom semi-detached house for sale in Plot 13 Farm Field Place, Herstmonceux, BN27 — £425,000 • 3 bed • 2 bath • 1104 ft²
 3 bedroom semi-detached house for sale in Plot 13 Farm Field Place, Herstmonceux, BN27 — £425,000 • 3 bed • 2 bath • 1104 ft² 2 bedroom semi-detached house for sale in The Paddock, Upper Dicker, Hailsham, BN27 — £415,000 • 2 bed • 1 bath • 872 ft²
 2 bedroom semi-detached house for sale in The Paddock, Upper Dicker, Hailsham, BN27 — £415,000 • 2 bed • 1 bath • 872 ft²






















