Six-bedroom home with garage, parking and landscaped garden near schools.
- End-of-cul-de-sac position with large, gated driveway and double garage
- Re-landscaped, secluded east-facing rear garden with terrace and sun deck
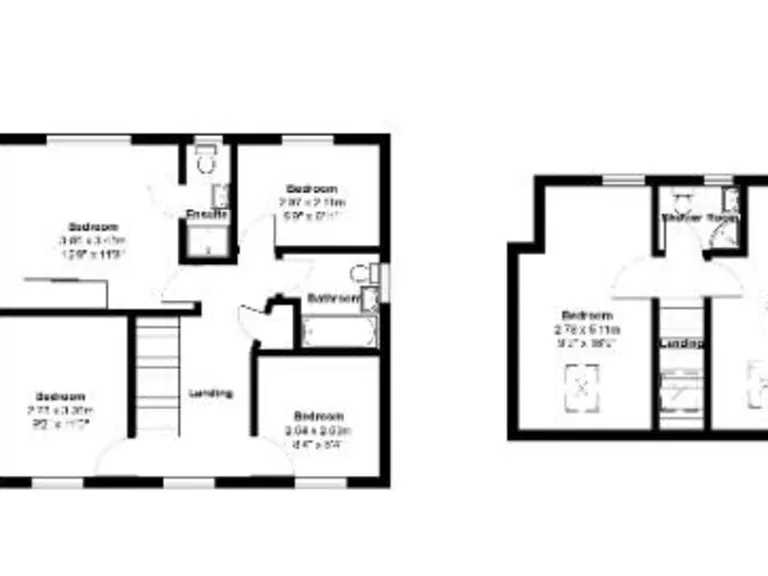
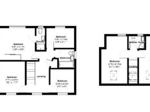
- Loft conversion: two large second-floor bedrooms with central shower room
- Master bedroom with built-in wardrobes and updated en-suite
- Contemporary fitted kitchen and re-fitted cloakroom and bathrooms
- Some first-floor bedrooms are compact; total living area circa 1,250 sq ft
- Double glazing (installed before 2002) and gas central heating, EPC C (75)
- Short walk to shops, primary/secondary schools and Ipswich transport links
Set at the end of a quiet cul-de-sac in Claydon, this well-presented six-bedroom detached home offers flexible family accommodation across three storeys. The house has been upgraded and maintained by the current owners with a contemporary kitchen, re-fitted bathrooms and an extensive loft conversion creating two large second-floor bedrooms.
Ground-floor living is bright and practical: a 16' sitting room with fireplace and French doors overlooks a recently re-landscaped rear garden, while separate dining and study rooms both feature bay windows. The large, gated frontage provides generous parking and direct access to a detached double garage with power and light.
Upstairs the master bedroom benefits from built-in wardrobes and an updated en-suite; three further first-floor bedrooms and a modern family bathroom complete the first floor. The sizeable loft conversion provides two 16'9" bedrooms and a central shower room, ideal for older children, guests or home-working space with village views.
Practical points to note: the house is modest in total floor area (approximately 1,250 sq ft) for six bedrooms, so some bedrooms are compact. Double glazing and heating are in place, and the energy rating is C (75). The property sits close to primary and secondary schools, local shops and good transport links to Ipswich and the A14, making it a convenient family location.
4 bedroom detached house for sale in Hazel Rise, Claydon, Ipswich, Suffolk, IP6 — £535,000 • 4 bed • 2 bath • 1657 ft²
5 bedroom detached house for sale in Hereford Drive, Claydon, IP6 — £550,000 • 5 bed • 3 bath • 1614 ft²
5 bedroom detached house for sale in Hereford Drive, Claydon, IP6 — £515,000 • 5 bed • 3 bath • 1677 ft²
3 bedroom detached house for sale in Hazel Rise, Claydon, Ipswich, Suffolk, IP6 — £340,000 • 3 bed • 2 bath • 1009 ft²
4 bedroom detached house for sale in Woolner Close, Barham, Ipswich, Suffolk, IP6 — £425,000 • 4 bed • 2 bath • 1398 ft²
3 bedroom detached bungalow for sale in Thornhill Road, Barham, Ipswich, Suffolk, IP6 — £380,000 • 3 bed • 1 bath • 1020 ft²


































































