IP14 6BS - 2 bedroom barn conversion for sale in Low Road, Debenham, I…

View on Property Piper

2 bedroom barn conversion for sale in Low Road, Debenham, IP14

Summary - Low Road, Debenham IP14 6BS

2 bed 2 bath Barn Conversion

**Standout Features:**
- Characterful two-bedroom barn conversion dating back to 1850
- Application of modern aesthetics with newly installed UPVC double glazing and oil-fired central heating
- Spacious living room with vaulted ceilings and exposed timbers
- Private, hilltop location with stunning rural views and beautifully maintained gardens
- Chain-free with vacant possession, offering immediate move-in potential
- Off-street car parking and design for secluded outdoor living spaces

**Summary:**
Embrace country living in this stunning two-bedroom barn conversion, elegantly positioned in a peaceful hamlet just a mile from Debenham village. With a blend of rustic charm and modern comfort, this home features a spacious living room boasting a vaulted ceiling, two generous double bedrooms—one en suite—and a stylish family bathroom, all finished with a newly renovated touch.

Nestled on a secluded hilltop, this barn overlooks open rolling countryside, allowing you to soak in spectacular rural sunsets. The property also offers excellent privacy, thanks to a long private drive leading to a beautiful garden and shingle courtyard perfect for outdoor gatherings or tranquil evenings. Chain-free and recently updated, this unique home awaits those looking for comfort, charm, and an opportunity to enjoy the serene rural lifestyle. Don't miss your chance to own this unique piece of countryside living—properties like this don’t stay on the market for long!

Property Details

Brochure Descriptions

Image Descriptions

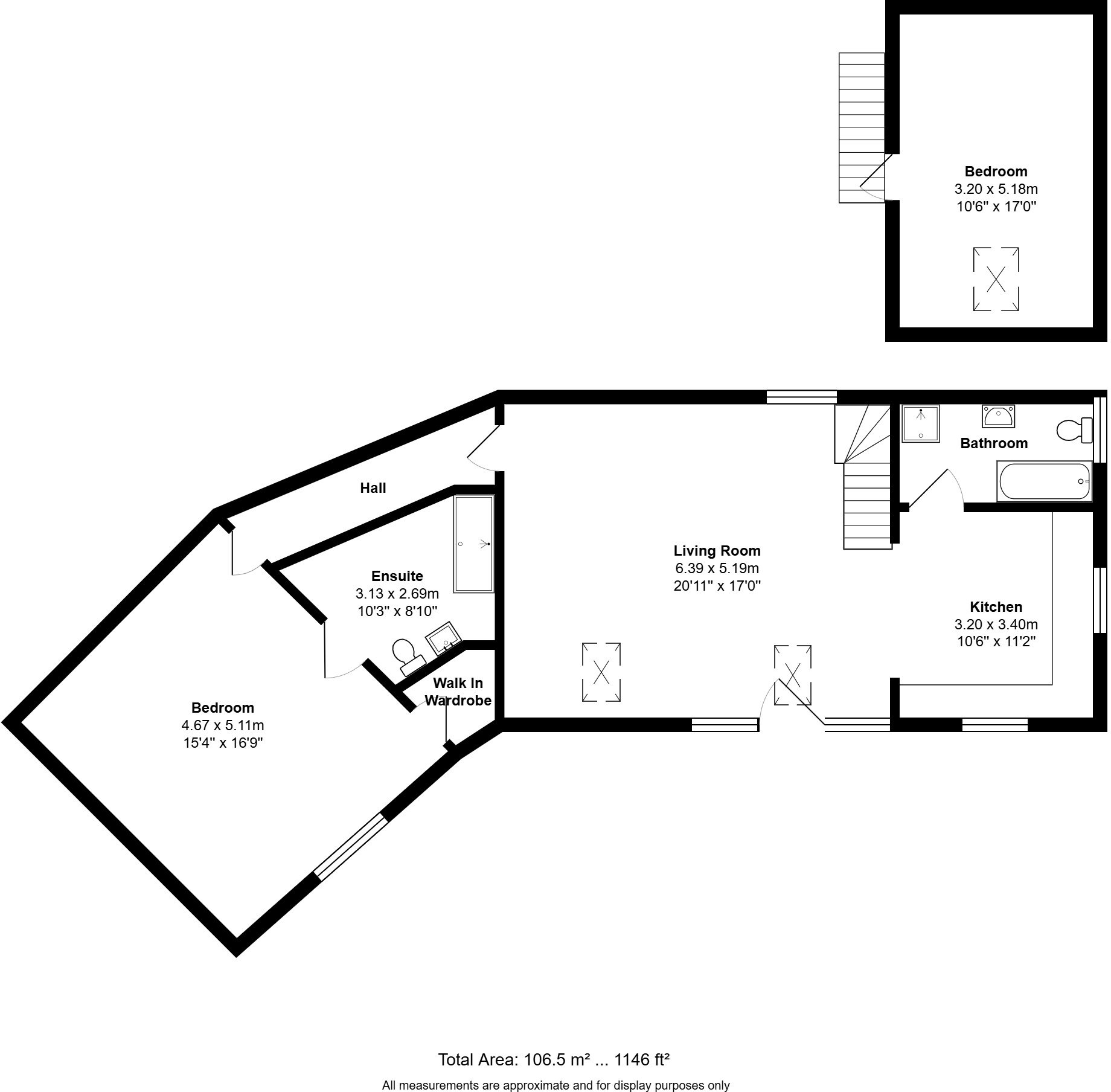
Floorplan Description

Rooms

Textual Property Features

Detected Visual Features

EPC Details

Nearby Schools

Nearest Bars And Restaurants

,,,,}

Nearest General Shops

,,}

Nearest Grocery shops

,,}

Nearest Supermarkets

,,}

Nearest Religious buildings

,,}

Nearest Medical buildings

,,,}

Nearest Leisure Facilities

,,,,}

Nearest Tourist attractions

,,}

Nearest Train stations

,,,,}

Nearest Bus stations and stops

,,,,}

Nearest Hotels

,,}

Tags

Local Market Stats

Similar Properties

Meta

High Res Images

Compatible Images

Low res Images

Thumbnails

Raw Images

High Res Floorplan Images

Compatible Floorplan Images

Low res Floorplan Images

FloorplanImages Thumbnail

Raw Floorplan Images