Grand 1930s manor with loft conversion potential near Loughton station.
- Six bedrooms including principal suite with en suite
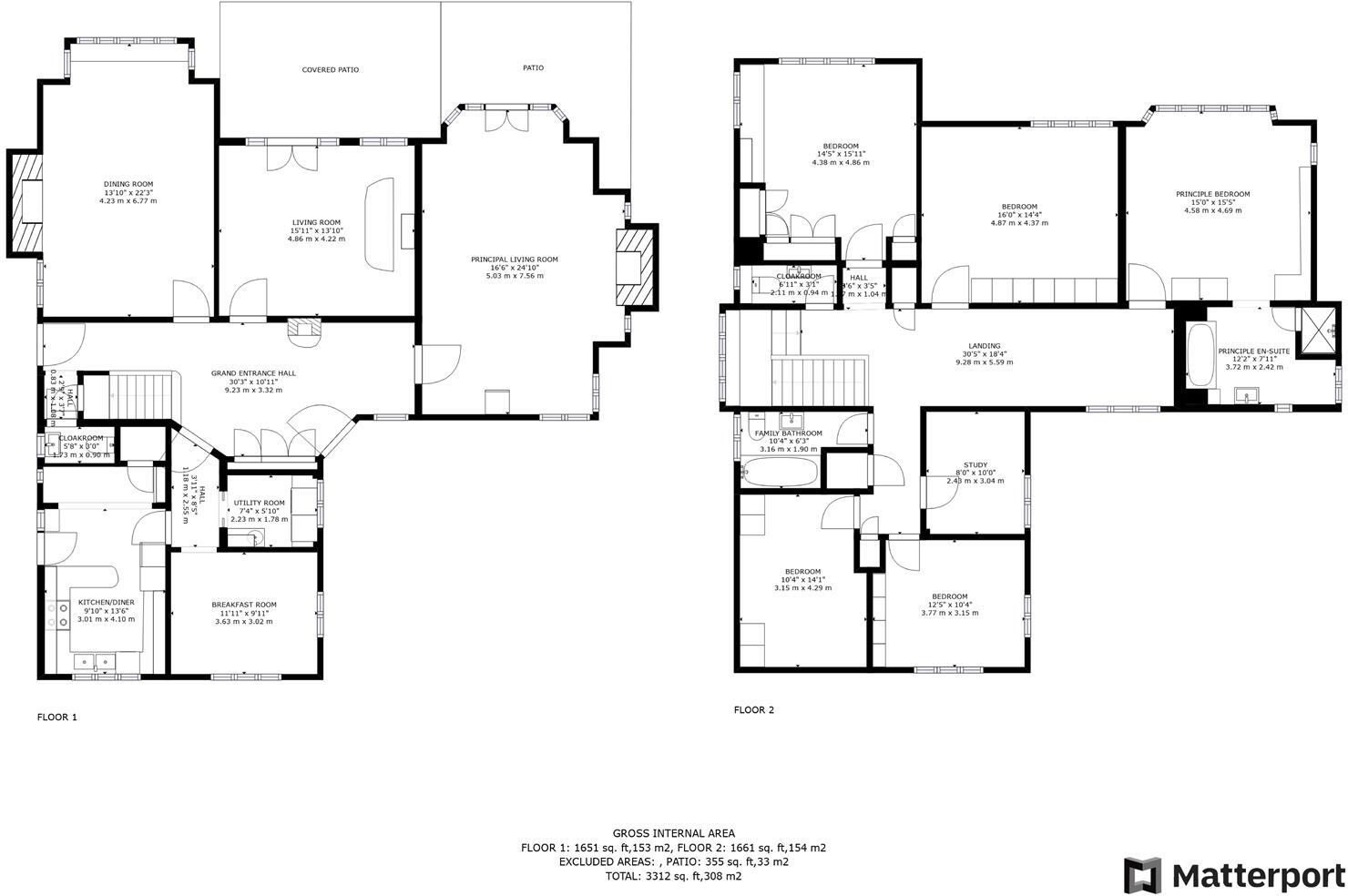
- Large total footprint 5,272 sq ft (incl. boarded loft)
- Elevated 0.43-acre commanding corner plot with mature gardens
- Four reception rooms plus kitchen, breakfast room and utility
- Two garages, outbuildings and garden loggia
- Solid brick construction assumed uninsulated — needs thermal upgrades
- Only two bathrooms for six bedrooms; further facilities likely required
- Council tax described as quite expensive; viewing by appointment only
Bordersmead is an imposing 1930s Tudor Revival manor on a commanding 0.43-acre corner plot in Loughton. The house extends to 3,766 sq ft with a fully boarded loft adding a further 1,506 sq ft, offering an exceptional total footprint of 5,272 sq ft. Period details — oak panelling, leaded-light windows, carved mantels and original joinery — give the house strong character and presence.
The ground floor layout is generous with four reception rooms, a kitchen with breakfast room, utility and cloakroom. Upstairs there are six bedrooms including a principal suite with en suite; the substantial loft space provides clear scope for further bedrooms or tailored uses subject to consent. Externally there are mature, landscaped gardens, a garden loggia, two garages and useful outbuildings.
Practical considerations are explicit. The house is solid brick as built (assumed uninsulated) and will benefit from modernisation and improved thermal efficiency. There are only two bathrooms for six bedrooms in the current configuration, and council tax is noted as quite expensive. Heating is by mains gas with boiler and radiators; broadband and mobile signal are strong and the area records low crime.
This is a rare, once-in-a-generation opportunity for buyers seeking a large, characterful family home with development potential in a highly regarded part of Loughton. It suits buyers who want original period detail and space on a large plot and who are prepared to invest in updating and insulating the property to modern standards. Viewings are strictly by appointment.
4 bedroom detached house for sale in Traps Hill, Loughton, IG10 — £1,600,000 • 4 bed • 3 bath • 2119 ft²
4 bedroom detached house for sale in The Beacons, Loughton, IG10 — £1,650,000 • 4 bed • 3 bath • 2681 ft²
4 bedroom detached house for sale in Goldings Road, Loughton, IG10 — £975,000 • 4 bed • 2 bath • 1678 ft²
4 bedroom house for sale in Spareleaze Hill, Loughton, IG10 — £1,895,000 • 4 bed • 2 bath • 2527 ft²
3 bedroom detached house for sale in Tycehurst Hill, Loughton, Essex, IG10 — £1,500,000 • 3 bed • 1 bath • 1463 ft²
4 bedroom detached house for sale in Woodbury Hill, Loughton, IG10 — £1,925,000 • 4 bed • 3 bath • 3141 ft²










































































