Spacious eco-designed four-bedroom home with cinematic living and expansive gardens.
Architect-designed detached house completed in 2023
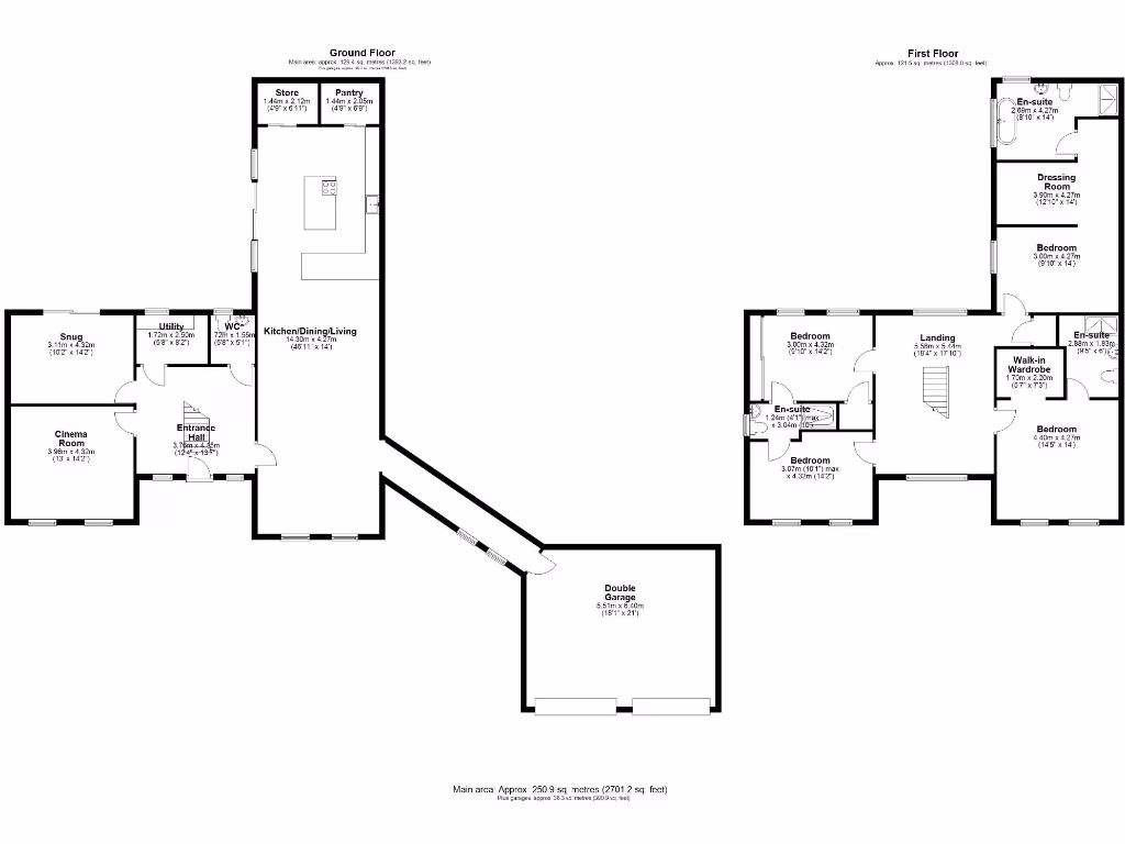
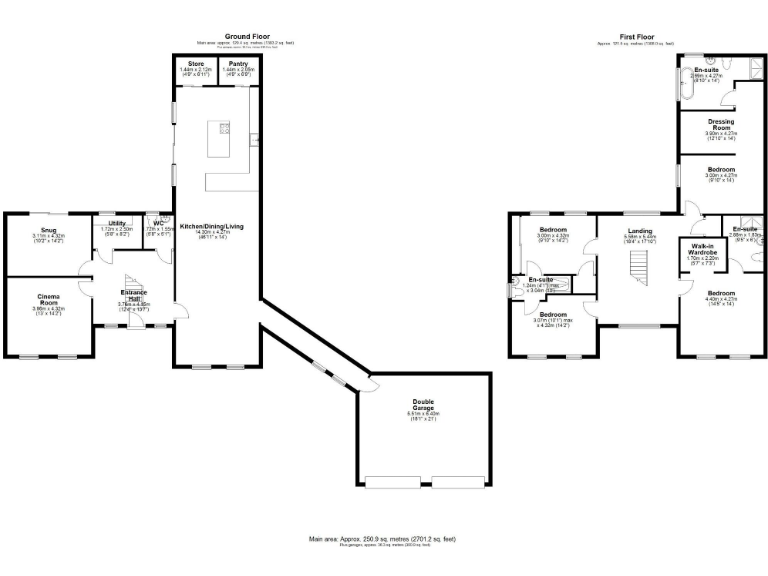
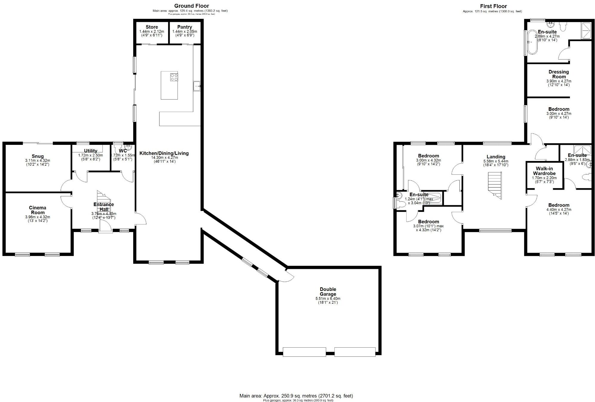
47ft open-plan kitchen, dining and living area with pantry
Triple glazing and MVHR plus air-source heat pump
Spa-style principal suite with dressing room and ensuite
Dedicated cinema room, snug and galleried landing
Double garage with glazed walkway and plentiful parking
Large landscaped garden with summerhouse and ornamental pond
Electric main fuel; council tax described as expensive
An architect-designed four-bedroom detached home finished in 2023, set on a large plot at the end of a woodland-fringed cul-de-sac. The house emphasises light, silence and sustainability with triple glazing and a Mechanical Ventilation with Heat Recovery system, plus an air-source heat pump and underfloor heating throughout the principal living areas.
The heart of the home is a show-stopping 47ft open-plan kitchen, dining and living space, fitted with quartz surfaces, premium Miele appliances and a walk-in pantry. Separate reception rooms include a dedicated cinema room and a cosy snug, while a sculptural glass and oak staircase rises to a galleried landing and four bedrooms, including a spa-inspired principal suite with dressing room and ensuite.
Externally the property offers landscaped gardens with ornamental pond and summerhouse, a double garage connected by a glazed walkway and generous additional parking. The location combines rural calm with good local amenities, strong schools nearby and easy access to Grimsby station and regional airports.
Practical points to note: the house is electrically-heated (air-source heat pump and electric supply), council tax is described as expensive, and the multi-storey layout may not suit buyers requiring single-level living. Overall this is a high-spec family home offering contemporary, energy-efficient living on a substantial plot.
5 bedroom detached house for sale in Top Lane, Goulceby, Lincolnshire, LN11 — £895,000 • 5 bed • 3 bath • 4000 ft²
6 bedroom detached house for sale in The Oaks, Main Road, Barnoldby-Le-Beck, Grimsby, DN37 — £1,150,000 • 6 bed • 4 bath • 4891 ft²
4 bedroom detached house for sale in Folly Hill, Thornton Road, North Owersby, Market Rasen, LN8 — £490,000 • 4 bed • 3 bath • 1669 ft²
4 bedroom detached house for sale in Green Lane, Owmby By Spital, Lincolnshire, LN8 — £975,000 • 4 bed • 3 bath • 3881 ft²
4 bedroom detached house for sale in Station Road,
DN36 4RZ, DN36 — £295,000 • 4 bed • 1 bath • 873 ft²
4 bedroom detached house for sale in Beck Farm Mews, Barnoldby Le Beck, DN37 — £575,000 • 4 bed • 3 bath • 1518 ft²






































































































































































































































































