Driveway parking, solar panels and extension potential for buyers seeking value.
Large south-facing private rear garden with full-width patio area
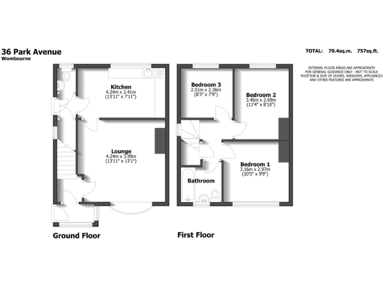
Set on a large corner plot, this three-bedroom semi offers a substantial south-facing rear garden, wide driveway and immediate vacant possession. The layout includes a bay-fronted living room, breakfast kitchen and ground-floor cloakroom, with three bedrooms and a family bathroom upstairs. The house is freehold and benefits from gas central heating, double glazing and solar panels visible externally, helping reduce running costs.
The property is suited to buyers wanting a liveable home with clear scope to add value. The garden and corner position offer potential to extend (subject to planning consent). Internally many finishes are dated — the kitchen and bathroom would benefit from updating to modern standards, and simple redecoration will improve presentation quickly.
Known negatives are factual: the EPC is rated D and the original solid brick walls are likely uninsulated (assumed), so there may be thermal upgrade work to consider. The home is small in overall footprint (approx. 757 sq ft) so space is modest compared with larger family houses. Any extension or major alterations would require the usual planning and building consents.
Positioned within walking distance of local shops, bus routes and several well-rated schools, the house sits in a very low-crime, affluent suburb with fast broadband — appealing for first-time buyers, couples and investors seeking a straightforward refurb and rental or resale opportunity.
2 bedroom semi-detached bungalow for sale in 15 Greenfields Road, Wombourne, Wolverhampton, WV5 — £320,000 • 2 bed • 2 bath • 1704 ft²
3 bedroom house for sale in 98 Van Diemans Road, Wombourne, Wolverhampton, WV5 — £300,000 • 3 bed • 2 bath • 1028 ft²
3 bedroom semi-detached house for sale in 12 Calvin Close, Wombourne, Wolverhampton, South Staffordshire, WV5 — £254,500 • 3 bed • 1 bath • 785 ft²
4 bedroom semi-detached house for sale in 3 Chapel Close, Wombourne, Wolverhampton, WV5 — £290,000 • 4 bed • 2 bath • 1068 ft²
3 bedroom semi-detached house for sale in 34 Rennison Drive, Wombourne, Wolverhampton, WV5 — £350,000 • 3 bed • 2 bath • 1111 ft²
3 bedroom semi-detached house for sale in Hughes Place, Bilston, WV14 — £230,000 • 3 bed • 1 bath • 883 ft²










































