Chain-free refurbishment opportunity with garage and garden near schools and shops.
Chain-free three-bedroom semi-detached house
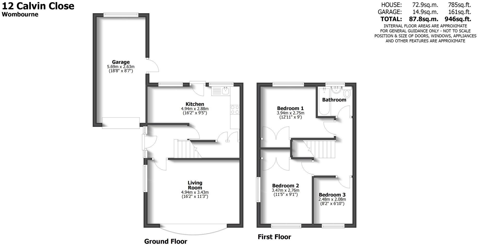
A traditional three-bedroom semi-detached home in a quiet cul-de-sac, offered chain-free and ready for a new owner to update. The property benefits from off-road parking, a single garage and an enclosed rear garden — practical assets for family life. Internal layout includes an entrance hall, living room with mid-century fireplace, kitchen/diner, three bedrooms and a family bathroom. The house is double glazed, gas central heated via a boiler and is Freehold with no flood risk. The accommodation is modest in size (about 785 sq ft) and dates from the mid-20th century, so there is clear scope to modernise kitchens, bathrooms and finishes to add value. EPC rating D and some dated fittings mean buyers should budget for improvement works. The location is convenient for local shops, a supermarket and several well-regarded primary and secondary schools; transport links serve Wolverhampton, Dudley and Stourbridge. The surrounding area is mixed in social profile and judged relatively deprived, and local crime levels are average — sensible buyers will want to view to assess setting and neighbouring properties. Overall this is a practical family starter or refurbishment opportunity, offering parking, garden and good connectivity close to village amenities.
3 bedroom link detached house for sale in Darvel Road, Willenhall, West Midlands, WV12 — £240,000 • 3 bed • 1 bath • 919 ft²
3 bedroom semi-detached house for sale in Coppice Avenue, Stourbridge, DY9 — £195,000 • 3 bed • 1 bath • 754 ft²
3 bedroom semi-detached house for sale in Birmingham Street, Stourbridge, DY8 1JH, DY8 — £240,000 • 3 bed • 1 bath • 776 ft²
4 bedroom semi-detached house for sale in 3 Chapel Close, Wombourne, Wolverhampton, WV5 — £290,000 • 4 bed • 2 bath • 1068 ft²
3 bedroom semi-detached house for sale in Hughes Place, Bilston, WV14 — £230,000 • 3 bed • 1 bath • 883 ft²
3 bedroom semi-detached house for sale in Silver Innage, Halesowen, B63 — £210,000 • 3 bed • 1 bath • 1104 ft²














































