**Standout Features:**
- Spacious self-contained office space: 4,119 sq. ft.
- Prime location just 2 minutes from Leeds Railway Station
- Modern design with large windows and high ceilings
- Riverside terrace ideal for outdoor meetings or breaks
- Fully fitted with a high-spec kitchen/breakout area
- DDA-compliant with lift access and dedicated parking space
- Strong local amenities including dining, retail, and transport options
**Summary:**
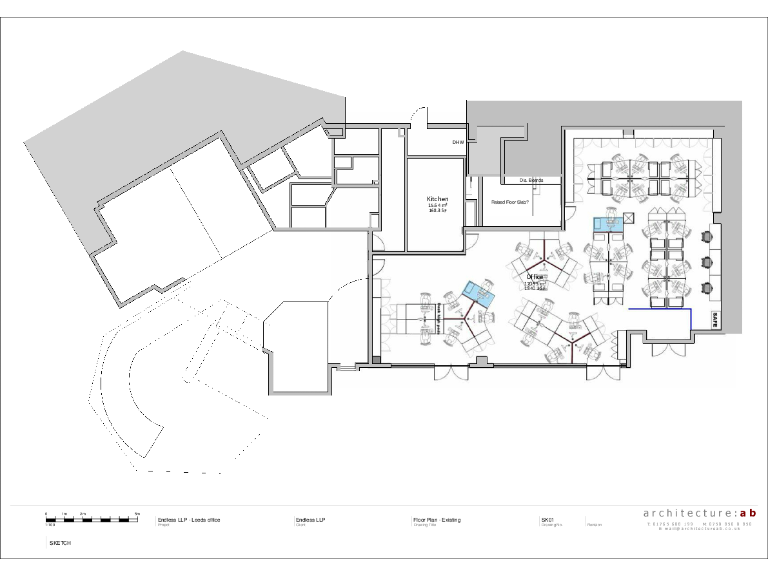
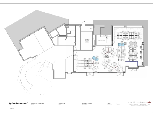
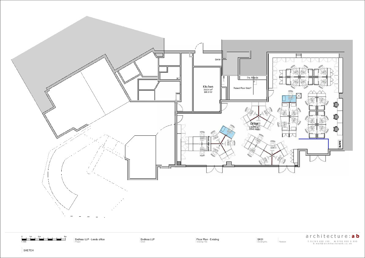
Welcome to 3 Whitehall Quay, an exceptional self-contained office space positioned just steps away from Leeds Railway Station. Offering an impressive 4,119 square feet of versatile workspace, this modern facility features five meeting rooms with independent air conditioning, a generous reception area, and a stunning terrace overlooking the River Aire—perfect for informal gatherings or taking a breath of fresh air.
The office is equipped with LED lighting, full access raised floors, and shower facilities, supporting an efficient and comfortable work environment. With dedicated parking and a prime location amidst a vibrant cosmopolitan neighborhood, your business will thrive in a space that combines both functionality and style. However, it’s important to note that the area does experience high crime, so security measures may be a consideration for potential tenants.
This property presents a unique opportunity with plenty of scope for future renovations or branding, making it a prime investment for businesses looking to establish themselves in a bustling setting rich with amenities. Don’t miss out on this rare offering!
Office for sale in Springwell Gardens, Whitehall Road, Leeds, LS12 1BT, LS12 — £350,000 • 1 bed • 1 bath • 1900 ft²
2 bedroom flat for sale in 3 Whitehall Quay, Leeds, LS1 — £250,000 • 2 bed • 2 bath • 767 ft²
2 bedroom apartment for sale in 3 Whitehall Quay, Leeds, LS1 — £190,000 • 2 bed • 2 bath • 622 ft²
2 bedroom apartment for sale in Whitehall Waterfront, LS1 , LS1 — £185,000 • 2 bed • 2 bath • 412 ft²
2 bedroom apartment for sale in Whitehall Waterfront, Leeds, LS1 — £315,000 • 2 bed • 2 bath • 708 ft²
Office for sale in 2 Queen Street, Leeds, LS1 2TW, LS1 — £650,000 • 1 bed • 1 bath • 2630 ft²














































