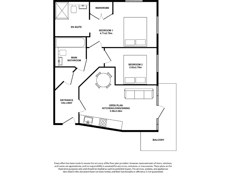
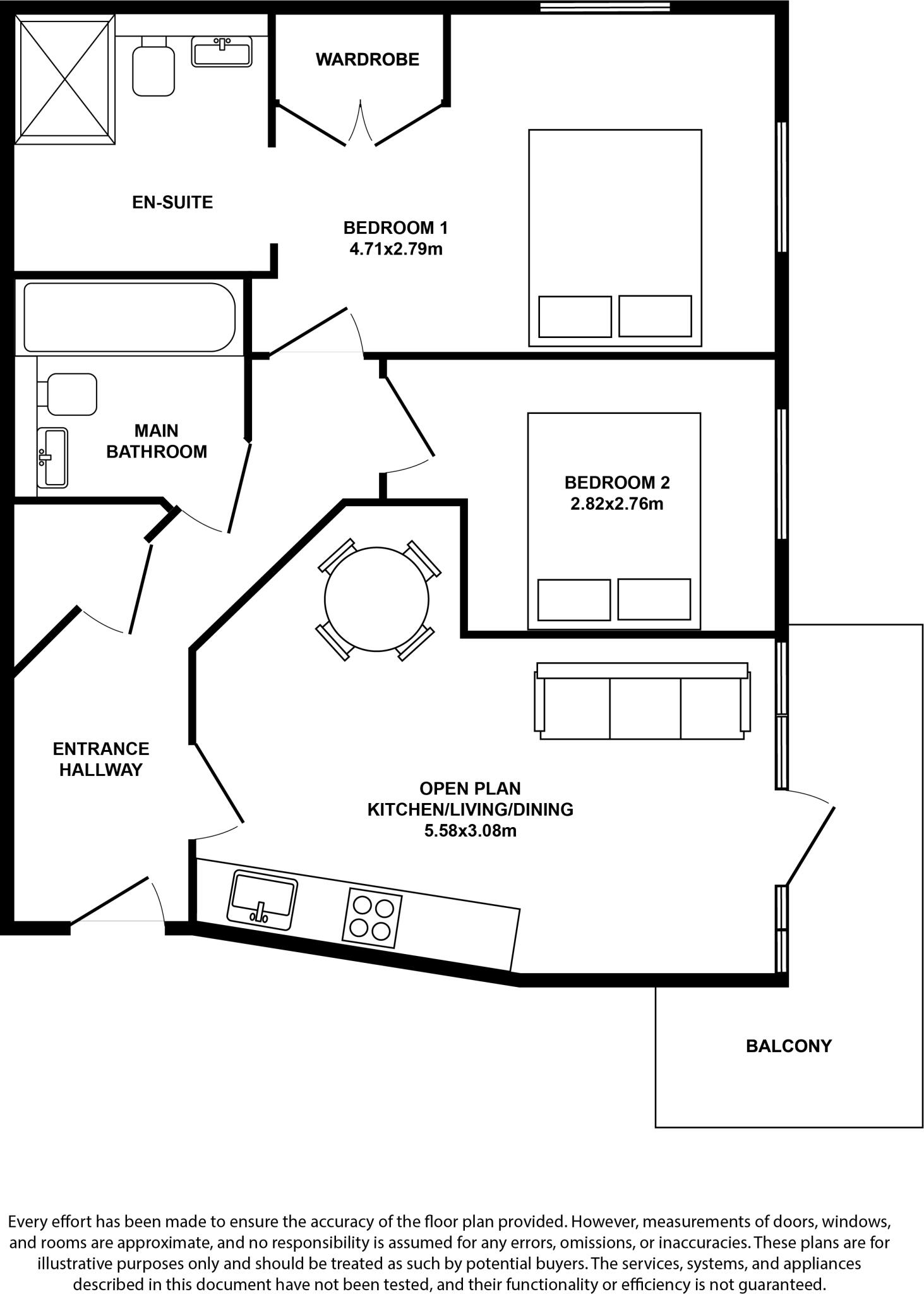
**Standout Features:**
- 12th-floor, two-bedroom, two-bathroom apartment
- Extended balcony with riverside views
- Secure underground parking and on-site concierge
- Modern design in the sought-after Whitehall Waterfront development
- Close proximity to Leeds Train Station, shopping, restaurants, and bars
- Total size: 412 sq. ft.
This modern apartment in the prestigious Whitehall Waterfront development combines luxury urban living with an unbeatable riverside setting. Boasting two spacious bedrooms and two bathrooms, this 412 sq. ft. residence includes an extended balcony perfect for enjoying picturesque views. Ideal for young professionals or investors, the property is minutes from Leeds city centre, providing easy access to a vibrant lifestyle complete with dining, shopping, and entertainment options.
With secure underground parking and the convenience of an on-site concierge, comfort and security are at your fingertips. Note that the location has a high crime rate; however, this area also exudes an affluent appeal, making it attractive for tenants. Although the apartment is well-constructed (built in 2004), future buyers should be aware of the leasehold tenure. This gem is a rare find and won’t last long. Schedule your viewing today and imagine the future possibilities in your new home!
2 bedroom apartment for sale in Whitehall Waterfront, LS1 — £180,000 • 2 bed • 2 bath • 1023 ft²
2 bedroom apartment for sale in Whitehall Waterfront , LS1 — £184,950 • 2 bed • 2 bath • 662 ft²
2 bedroom apartment for sale in Whitehall Waterfront, LS1 — £185,000 • 2 bed • 2 bath • 725 ft²
2 bedroom apartment for sale in 3 Whitehall Quay, Leeds, LS1 — £190,000 • 2 bed • 2 bath • 622 ft²
2 bedroom apartment for sale in Whitehall Waterfront, 2 Riverside Way, LS1 — £169,500 • 2 bed • 2 bath • 700 ft²
2 bedroom flat for sale in 3 Whitehall Quay, Leeds, LS1 — £250,000 • 2 bed • 2 bath • 767 ft²


































