Charming village home with large garden and garage, chain free.
Detached period cottage with traditional exposed beams and low ceilings
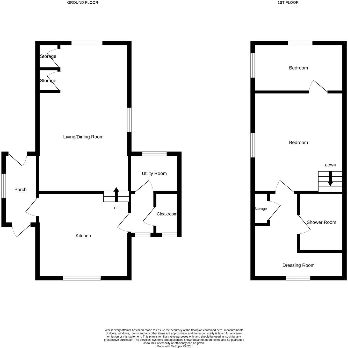
A charming detached period cottage set on a generous rear garden of approximately 100' in the sought-after village of Stratford St. Mary. The house offers a large open-plan living/dining room, kitchen with adjoining utility and cloakroom, two bedrooms plus a separate dressing area and shower room — a practical layout for families or couples seeking rural character and usable outdoor space. The property is offered chain free, with a garage and driveway for off-road parking.
Character features such as exposed beams and low ceilings give the cottage a cosy, traditional feel, though much of the interior appears dated and will benefit from modernisation. The EPC currently rates the home E (54) with significant uplift potential; cavity walls appear to lack insulation (assumed) and energy improvements would be advisable to reduce running costs and unlock the higher rating shown on the EPC.
This is a good opportunity for buyers seeking a period home in a very low-crime, affluent village with excellent mobile signal and fast broadband — useful for remote working. Local primary and secondary schools are well regarded, and nearby leisure and village amenities add convenience. Buyers should expect typical renovation and maintenance work for a pre-1900 cottage: cosmetic updating, potential insulation and heating upgrades, and a careful survey to confirm structural and services condition.
In short, Flower View will suit purchasers wanting character and outdoor space in a peaceful village setting, and those willing to invest in energy and cosmetic improvements to realise the cottage’s full potential.
4 bedroom cottage for sale in 1 & 2 Endcot, Upper Street, Stratford St Mary, CO7 — £525,000 • 4 bed • 2 bath • 1500 ft²
4 bedroom detached house for sale in Stratford St Mary, Colchester, Suffolk, CO7 — £650,000 • 4 bed • 2 bath • 2117 ft²
3 bedroom detached house for sale in Gaston Street, East Bergholt, CO7 — £595,000 • 3 bed • 1 bath • 2366 ft²
3 bedroom detached house for sale in East Bergholt, Colchester, CO7 — £650,000 • 3 bed • 2 bath • 1263 ft²
4 bedroom semi-detached house for sale in Stone Road, Great Bromley, Colchester, Essex, CO7 — £650,000 • 4 bed • 2 bath • 1625 ft²
4 bedroom detached house for sale in Kenyon Close, Stratford St Mary, Colchester, Essex, CO7 — £475,000 • 4 bed • 2 bath • 1755 ft²






















































