**Standout Features:**
- Spacious 1,400 sqft penthouse apartment in a historic Grade II listed building
- Expansive rooftop terrace with panoramic city views, ideal for entertaining
- Three generous bedrooms, including a master suite with ensuite bathroom
- Secure resident parking and lift access
- Located in Newcastle's vibrant City Centre, close to amenities and transport links
**Notable Concerns:**
- High service charge of £927 per quarter
- Potential complications from the listed status of the property
- Council tax band F, which may be on the higher side
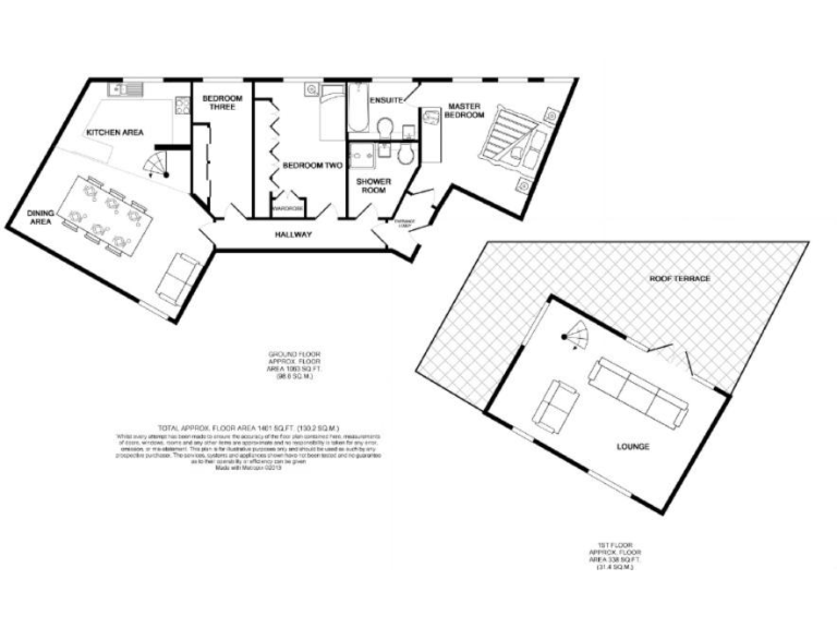
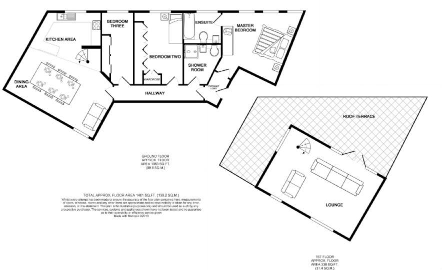
Discover the perfect blend of historic charm and contemporary living in this striking 3-bedroom penthouse apartment located in the heart of Newcastle’s City Centre. Spanning over 1,400 sqft and featuring high ceilings and expansive windows, this home invites an abundance of natural light. The open-plan kitchen, living, and dining area is thoughtfully designed around an impressive spiral staircase leading to a versatile mezzanine level, complete with French doors opening onto an expansive rooftop terrace—ideal for entertaining or simply enjoying quiet evenings with stunning views.
With secure resident parking and lift access, convenience is at your doorstep. The apartment is situated steps away from a rich offering of local bars, restaurants, and shops, making it perfect for first-time buyers or investors looking to capitalize on rental demand in this multicultural area. While there is a high service charge and council tax band, the prime location and potential for modern living make this property a must-see. Embrace city living in this exceptional penthouse, a rare opportunity that won’t last long!
2 bedroom flat for sale in Stamp Exchange, Westgate Road, Newcastle Upon Tyne, NE1 — £475,000 • 2 bed • 2 bath • 1537 ft²
2 bedroom penthouse for sale in 8 Clavering Place, Newcastle Upon Tyne, NE1 — £399,500 • 2 bed • 2 bath • 694 ft²
5 bedroom penthouse for sale in Quayside, Quayside, Newcastle upon Tyne, NE1 — £950,000 • 5 bed • 4 bath • 3130 ft²
2 bedroom flat for sale in Manor Chare, Newcastle upon Tyne, Tyne and Wear, NE1 — £250,000 • 2 bed • 3 bath • 1400 ft²
3 bedroom flat for sale in Pandongate House, Newcastle upon Tyne, Tyne and Wear, NE1 — £220,000 • 3 bed • 2 bath • 1057 ft²
3 bedroom flat for sale in High Quay, Newcastle upon Tyne, Tyne and Wear, NE1 — £525,000 • 3 bed • 3 bath • 1942 ft²


























































































