**Standout Features:**
- Fabulous two-bedroom penthouse apartment
- Substantial roof terrace with stunning city views, including the Cathedral and Quayside
- Secure allocated under croft car parking bay
- Finished to a lovely standard throughout, located in a historic Grade II listed building
- Chain-free sale offers immediate occupancy
- Prime city centre location with easy access to local amenities, shops, cafes, and transport links
**Potential Concerns:**
- High service charge (£5,500 annually) and council tax (expensive)
- Listed status may complicate renovation or extension plans
- Some areas of the neighbourhood show higher crime rates
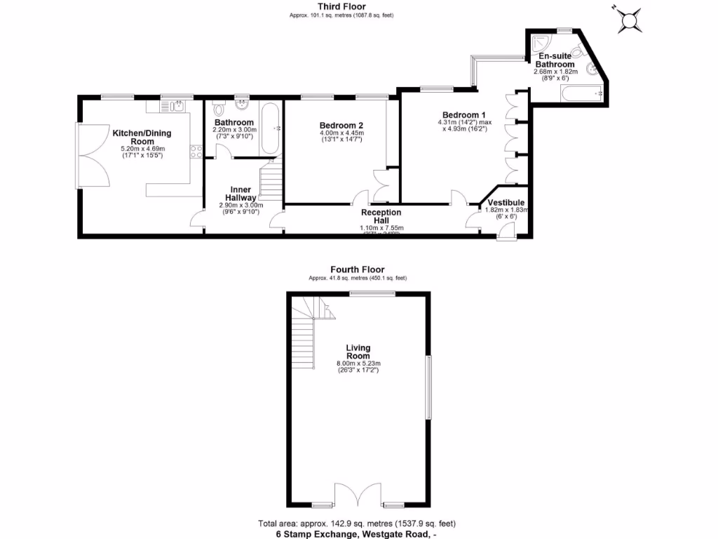
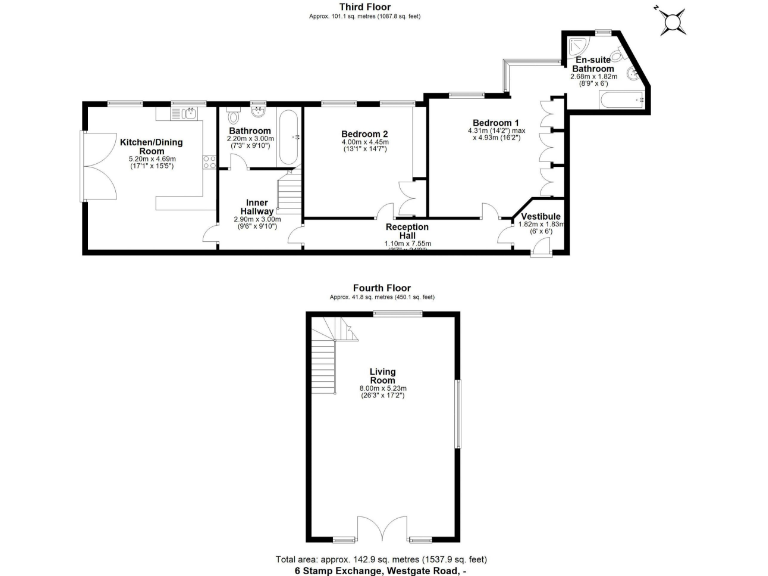
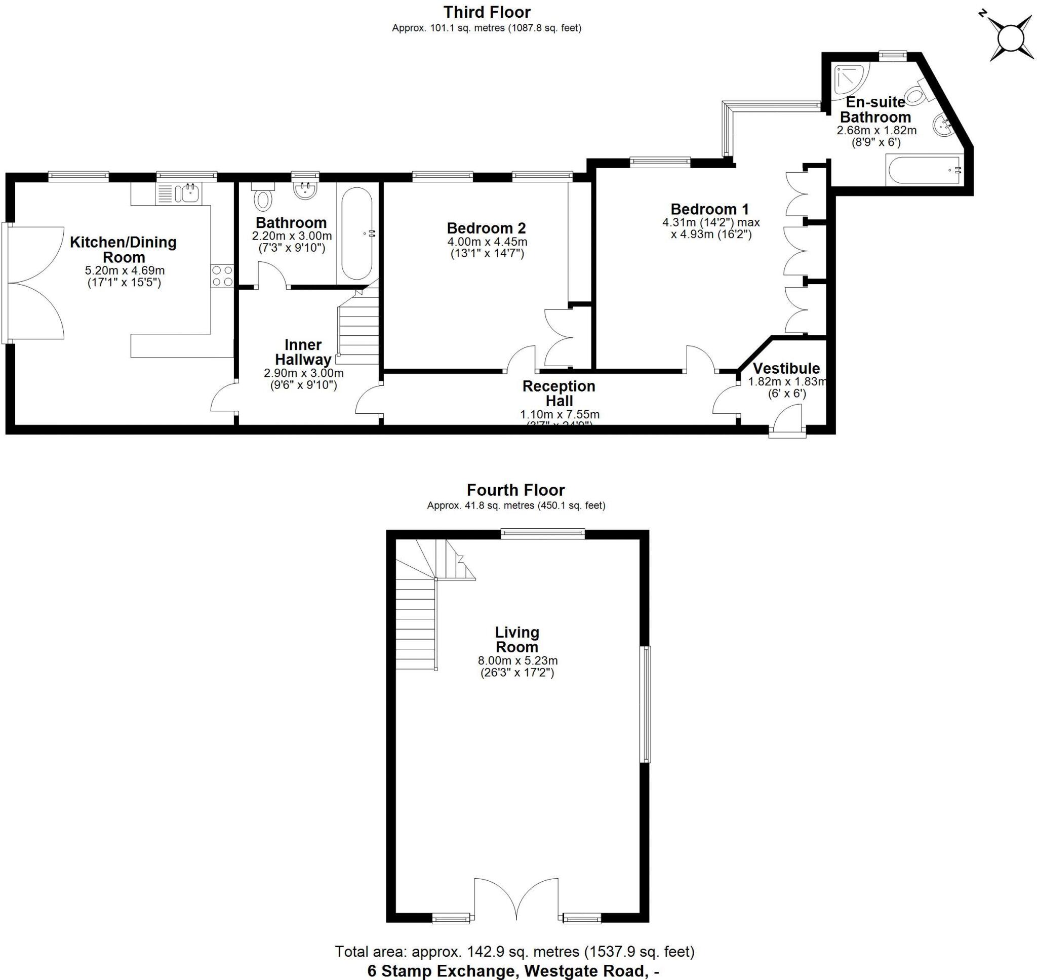
Discover your city oasis in this impressive penthouse apartment, perfectly positioned in the vibrant heart of Newcastle City Centre. With a generous 1,537 sq ft layout, this modern home features spacious living areas, including a stunning kitchen/diner filled with natural light. The roof terrace provides a unique outdoor retreat and picturesque views, making it ideal for entertaining.
This property offers great rental potential, perfect for investors or those seeking a comfortable lifestyle amidst the bustling city atmosphere. While the listed status may pose some challenges for future renovations, the exquisite finish and ample space provide a brilliant opportunity to create a personal oasis. Don't miss out on this perfect blend of contemporary living and urban charm – seize your chance to make it your own!
3 bedroom penthouse for sale in Stamp Exchange, Westgate Road, Newcastle Upon Tyne, NE1 — £450,000 • 3 bed • 2 bath • 1400 ft²
2 bedroom penthouse for sale in 8 Clavering Place, Newcastle Upon Tyne, NE1 — £399,500 • 2 bed • 2 bath • 694 ft²
2 bedroom flat for sale in Queens Lane, Newcastle Upon Tyne, NE1 — £235,000 • 2 bed • 2 bath • 607 ft²
2 bedroom flat for sale in Manor Chare, Newcastle upon Tyne, Tyne and Wear, NE1 — £250,000 • 2 bed • 3 bath • 1400 ft²
2 bedroom apartment for sale in Falconars Apartments, 18 Clayton Street, Newcastle Upon Tyne, NE1 — £155,000 • 2 bed • 2 bath • 1295 ft²
5 bedroom penthouse for sale in Quayside, Quayside, Newcastle upon Tyne, NE1 — £950,000 • 5 bed • 4 bath • 3130 ft²






























































