Contemporary, low-maintenance two-bed with large garden and parking.
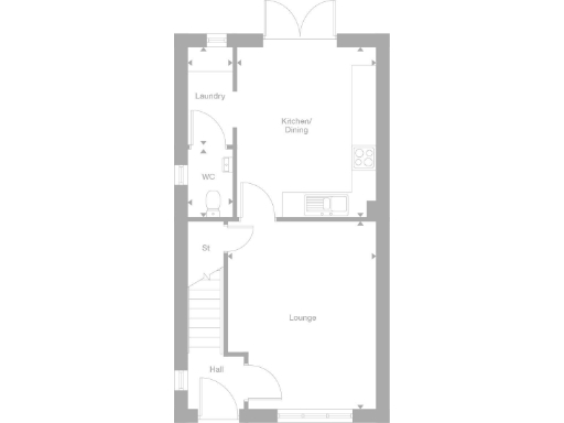
Open-plan kitchen/diner with French doors to very large rear garden
Principal bedroom with en-suite; second double bedroom
Allocated off-street parking; laundry room and downstairs WC
Total floor area stated 1,321 sq ft — larger than typical two-beds
New-build specification; low immediate maintenance expected
Annual service charge £190 (reviewed yearly)
No flood risk; fast broadband and excellent mobile signal
Local area flagged as deprived; council tax band TBC; tenure unclear
A bright two-bedroom mews home arranged over two floors, ideal for first-time buyers seeking a modern layout and low-maintenance living. The open-plan kitchen/dining area opens via French doors to a very large rear garden, giving the property a strong indoor–outdoor flow and room for family use or future landscaping.
The principal bedroom includes an en-suite and there is a separate family bathroom and downstairs WC. The lounge and kitchen proportions are generous for a two-bed home (total 1,321 sq ft stated), and the plot is described as very large, offering scope for external improvements or garden use.
Practical positives include allocated off-street parking, fast broadband, excellent mobile signal and a low local crime rate. The development notes a modest annual service charge of £190 and the property is new build with contemporary fixtures — expect minimal immediate maintenance.
Be pragmatic about location: local-area classification shows “aspiring urban households” but the wider area is flagged as more deprived. Council tax band is TBC and tenure is listed as unknown in the core details (some development literature references freehold plots). There is no flood risk recorded.
2 bedroom semi-detached house for sale in Main Street,
Woodthorpe,
Loughborough,
LE12 — £285,000 • 2 bed • 1 bath • 675 ft²
3 bedroom mews property for sale in Main Street,
Woodthorpe,
Loughborough,
LE12 — £310,000 • 3 bed • 1 bath • 669 ft²
3 bedroom detached house for sale in Main Street,
Woodthorpe,
Loughborough,
LE12 — £430,000 • 3 bed • 1 bath • 551 ft²
3 bedroom detached house for sale in Main Street,
Woodthorpe,
Loughborough,
LE12 — £400,000 • 3 bed • 1 bath • 551 ft²
4 bedroom detached house for sale in Main Street,
Woodthorpe,
Loughborough,
LE12 — £585,000 • 4 bed • 1 bath • 2128 ft²
5 bedroom detached house for sale in Main Street,
Woodthorpe,
Loughborough,
LE12 — £750,000 • 5 bed • 1 bath • 2579 ft²






























































