BS23 1RJ - 3 bedroom terraced house for sale in 2 X Vacant Flats | Wsm…

View on Property Piper

3 bedroom terraced house for sale in 2 X Vacant Flats | Wsm, BS23

Summary - 57 ORCHARD STREET WESTON-SUPER-MARE BS23 1RJ

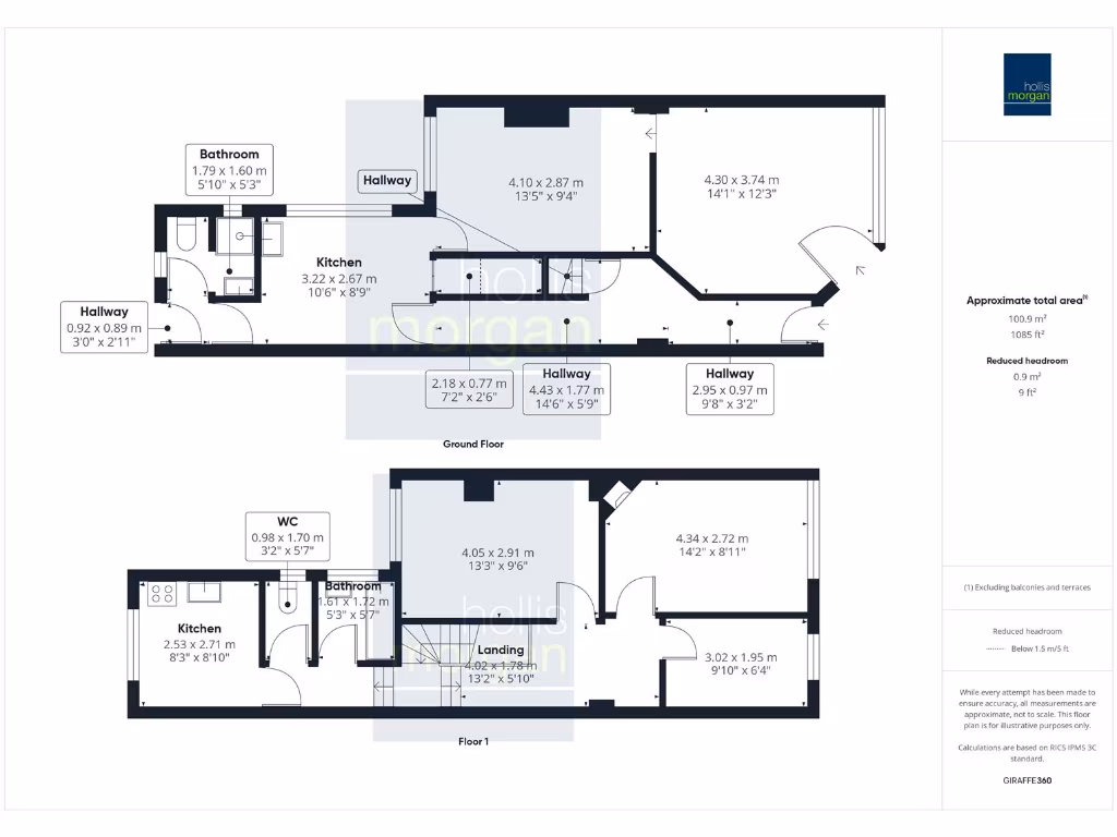
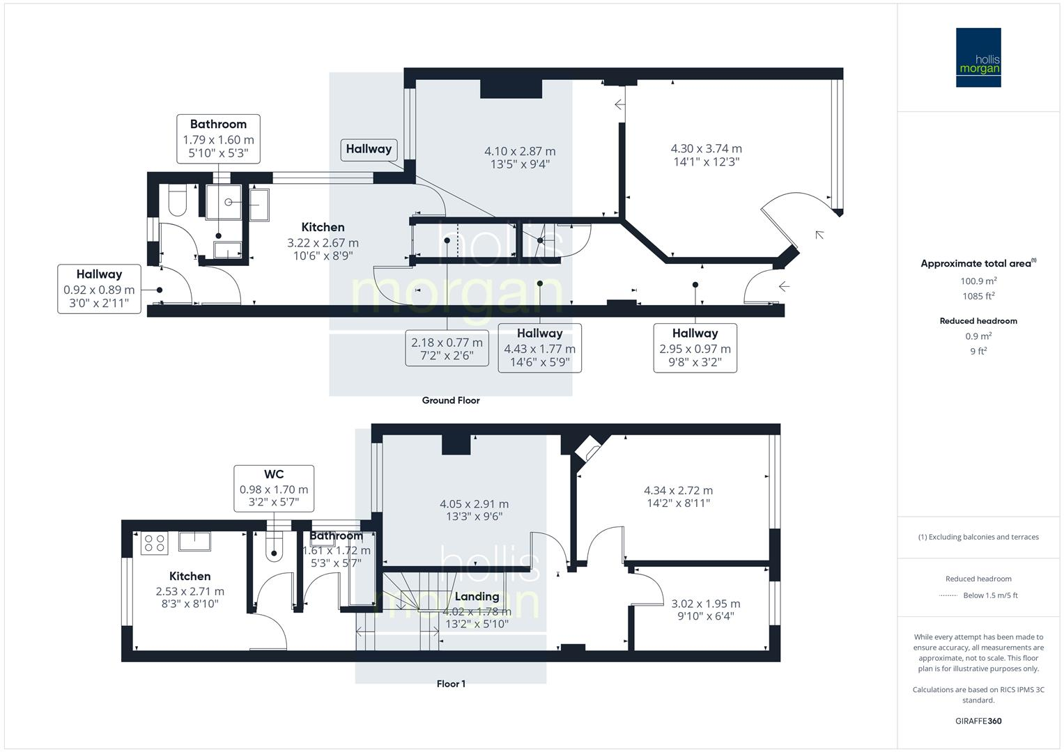
3 bed 2 bath Terraced

**Standout Features:**
- Freehold terraced property with 1-bedroom garden flat and 2-bedroom flat
- Planning permission for conversion of ground floor from commercial to residential use
- Average-sized rooms, offering potential for basic updates
- Vacant possession available; chain-free sale
- Located in a central area close to amenities and the beach
- Investment potential with estimated rents of approximately £1,400 per month

**Concise Summary:**
Nestled in the vibrant seaside town of Weston-Super-Mare, this freehold terraced property offers an intriguing investment opportunity. Comprising a ground floor 1-bedroom garden flat and a self-contained 2-bedroom flat, the structure is poised for enhancement with basic updates, ideal for the savvy investor or first-time buyer looking to add value. Planning permission is already in place for the conversion of the ground floor from its previous commercial use, broadening the potential for rental revenue.

With spacious average-sized rooms and a quaint outdoor garden area, this mid-terrace property encapsulates both comfort and urban coastal living. However, it does require some modernization, making it a prime canvas for those looking to create their ideal living spaces. Situated in a transitional neighborhood, the property offers easy access to local amenities, schools with good Ofsted ratings, and beautiful beachside attractions. Experience the charm of coastal living while seizing the potential for future financial growth—an opportunity not to be missed!

Property Details

Brochure Descriptions

Image Descriptions

Rooms

Textual Property Features

Detected Visual Features

EPC Details

Nearby Schools

Nearest Bars And Restaurants

,,,,}

Nearest General Shops

,,}

Nearest Grocery shops

,,}

Nearest Supermarkets

,,}

Nearest Religious buildings

,,}

Nearest Medical buildings

,,,}

Nearest Airports

,}

Nearest Leisure Facilities

,,,,}

Nearest Tourist attractions

,,}

Nearest Train stations

,,,,}

Nearest Bus stations and stops

,,,,}

Nearest Hotels

,,}

Tags

Local Market Stats

AirBnB Data

Similar Properties

Meta

High Res Images

Compatible Images

Low res Images

Thumbnails

Raw Images

High Res Floorplan Images

Compatible Floorplan Images

Low res Floorplan Images

FloorplanImages Thumbnail

Raw Floorplan Images