Chain‑free, easy single‑floor living in a popular Great Wyrley setting.
Chain‑free two‑bedroom semi‑detached bungalow
Single‑storey layout ideal for easy living and mobility
Off‑street driveway parking for multiple vehicles
Private rear garden with covered veranda
Double glazing fitted post‑2002; mains gas heating
Constructed 1967–1975; decorative finishes likely dated
Cavity walls assumed without added insulation (energy upgrade advised)
Modest room sizes and low to standard ceiling heights
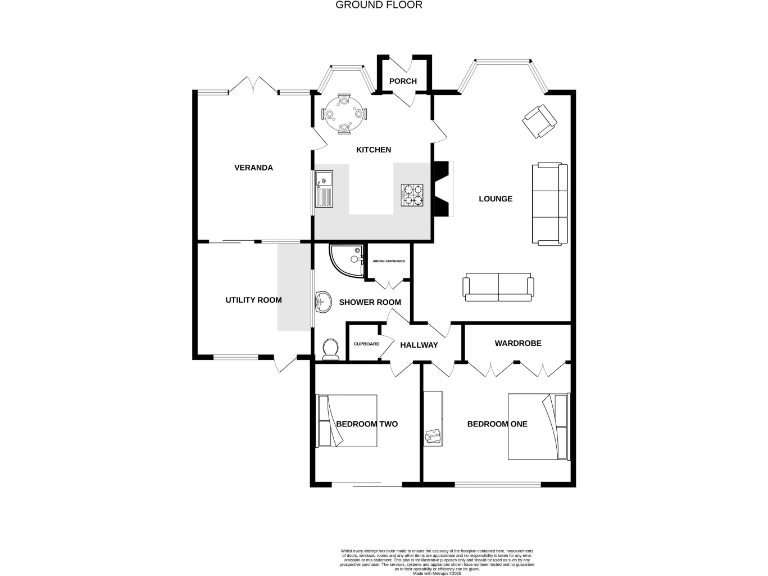
This single-storey semi-detached bungalow on Poplar Road offers straightforward, low‑maintenance living in a popular Great Wyrley location. The layout provides a front lounge with bay window, two bedrooms set to the rear for privacy, a kitchen with utility, shower room and a covered veranda leading to the rear garden. Off‑street parking for multiple vehicles and a generous front lawn add practical kerb appeal.
The property is chain‑free and suited to downsizers, those seeking a single‑level home, or investors looking for a straightforward let. Modern comforts include mains gas central heating, a boiler with radiators, and double glazing fitted after 2002. Broadband speeds are fast and local schools and amenities are within easy reach, supporting day‑to‑day convenience.
Buyers should note the bungalow dates from the late 1960s–1970s and shows an older decorative style and fittings; internal finishes are likely dated and will need updating to contemporary tastes. The external walls are cavity-built with assumed no added insulation, so purchasers should consider energy‑efficiency improvements. Room sizes are modest and ceiling heights are low to standard, which limits major reconfiguration options.
Overall this is a practical, well‑located bungalow with clear potential for cosmetic improvement and energy upgrades. It represents a sensible purchase for someone prioritising single‑floor living, parking and a private garden, provided they budget for modernisation where required.
2 bedroom semi-detached bungalow for sale in Park Lane, Great Wyrley, Walsall, WS6 — £220,000 • 2 bed • 1 bath • 737 ft²
3 bedroom semi-detached bungalow for sale in Huthill Lane, Great Wyrley, Walsall, WS6 — £260,000 • 3 bed • 1 bath • 1303 ft²
2 bedroom detached bungalow for sale in Gorsey Lane, Great Wyrley, WS6 6JA, WS6 — £285,000 • 2 bed • 1 bath • 860 ft²
3 bedroom semi-detached bungalow for sale in Cambridge Close, Aldridge, WS9 — £270,000 • 3 bed • 1 bath • 840 ft²
2 bedroom bungalow for sale in Pennine Drive, Cannock, Staffordshire, WS11 — £280,000 • 2 bed • 1 bath • 894 ft²
2 bedroom semi-detached bungalow for sale in The Ridgeway, Burntwood, WS7 — £260,000 • 2 bed • 1 bath • 1051 ft²






























































