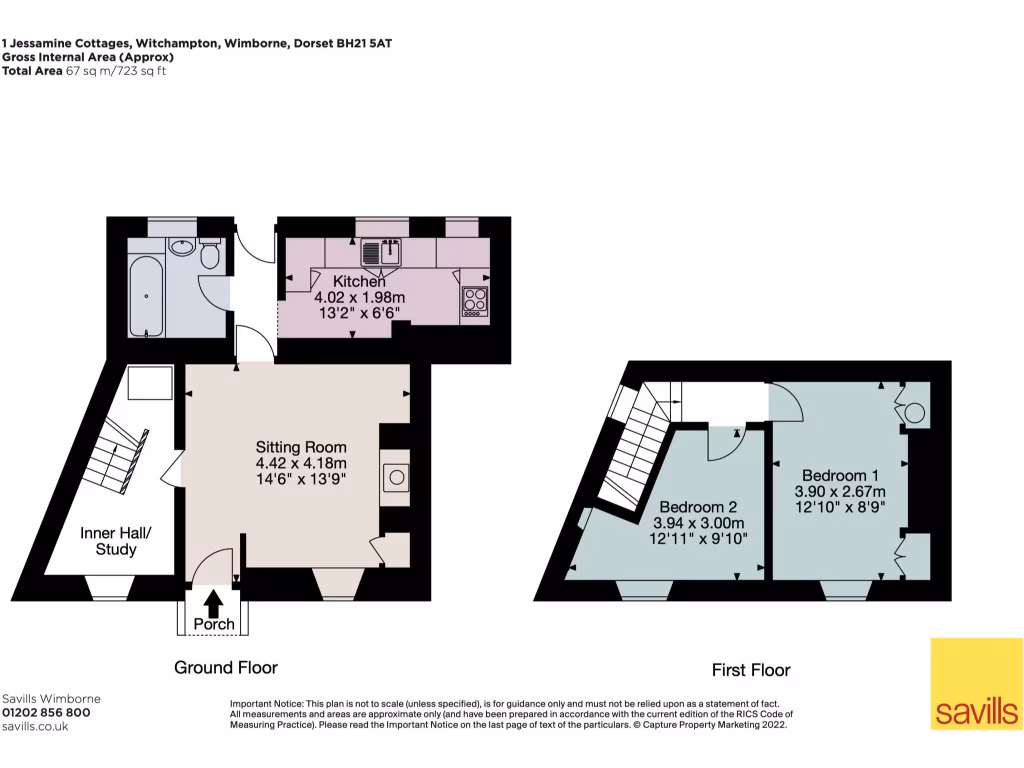
Sympathetically modernised two-bedroom cottage in a sought-after AONB village.
Grade II listed period cottage with thatched roof
A beautifully modernised Grade II listed thatched cottage in the heart of Witchampton, offered with sympathetic upgrades and preserved character. Recent works include a hand‑painted farmhouse kitchen, a luxurious refitted bathroom with claw‑foot bath and shower, and whole‑house redecoration. The sitting room benefits from a new log burner and exposed beam, creating a cosy central living space.
The property sits on a decent cottage plot with a productive kitchen garden, raised beds and a paved terrace — ideal for simple outdoor living and kitchen gardening. The layout suits a couple or small family who value village life: two bedrooms (one with wardrobe and airing cupboard), a compact study/inner hall area, and an efficient ground‑floor plan.
Important practical points: the house is Grade II listed, which will restrict alterations and may complicate some works. Heating is by electric storage heaters with supplementary wi‑fi controlled units; main fuel is electricity and the EPC is rated E. The cottage is modest in size (approx. 723 sq ft) and will suit buyers prepared for smaller rooms typical of period properties.
Set in a sought‑after AONB village with very low crime, good local schooling and fast broadband, the location offers quiet rural living with easy access to Wimborne, Bournemouth and Poole. Early viewing is recommended for buyers who appreciate listed character, thoughtful modernisation and a manageable cottage garden.
3 bedroom semi-detached house for sale in Witchampton, BH21 — £525,000 • 3 bed • 2 bath • 856 ft²
4 bedroom detached house for sale in Witchampton, Dorset, BH21 5AX, BH21 — £865,000 • 4 bed • 2 bath • 2700 ft²
2 bedroom cottage for sale in Higher Street, Okeford Fitzpaine, Blandford Forum, DT11 — £360,000 • 2 bed • 1 bath • 1027 ft²
3 bedroom detached house for sale in Newton, Sturminster Newton, DT10 — £650,000 • 3 bed • 2 bath • 3416 ft²
2 bedroom terraced house for sale in Chaldon Herring, Dorchester, Dorset, DT2 — £360,000 • 2 bed • 1 bath • 934 ft²
2 bedroom detached house for sale in Farnham, Blandford Forum, Dorset, DT11 — £625,000 • 2 bed • 2 bath • 1151 ft²














































