Historic three-bedroom thatched home with two income-generating annexes and large gardens.
Grade II listed thatched cottage; listing restricts alterations
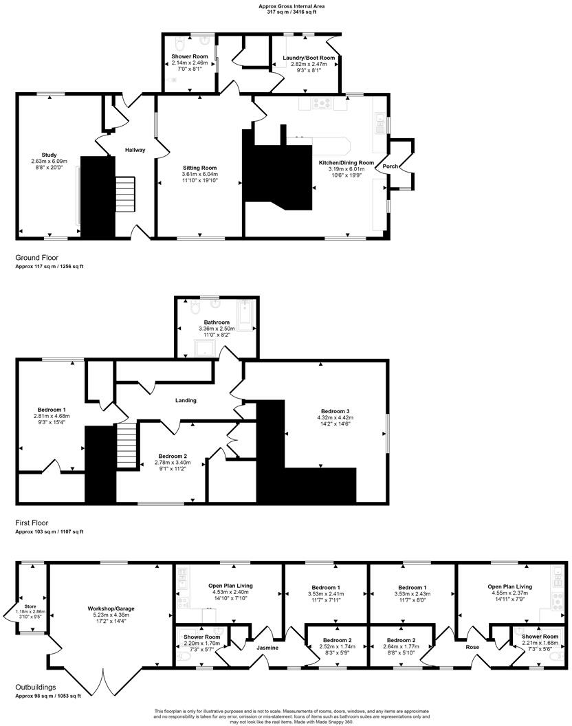
A rare Grade II listed thatched cottage on the edge of Sturminster Newton, offering substantial space, character and income potential. The main house retains original features throughout — exposed beams, inglenook fireplaces, flagstone floors and wattle-and-daub details — across approximately 3,416 sq ft. The ridge was re-thatched in summer 2024.
The plot extends to around 0.57 acre with landscaped lawns, mature trees, vegetable beds, greenhouse, summerhouse and ample parking for multiple vehicles including boats or motorhomes. Two self-contained annexes (Jasmine and Rose) sit to the rear and are established as holiday lets, producing an estimated combined turnover of £20,000–£25,000 per year. The annexes offer flexible use for continued short-term lets, long-term rentals or ancillary family accommodation.
Practicalities to note: the property is Grade II listed, so alterations will be restricted and consent requirements apply. The main house benefits from gas central heating; the annexes rely on electric panel heating. Windows are largely original with secondary glazing, and the listing means energy performance is exempt. Council Tax band is high (Band F) and maintenance of historic fabric should be expected despite the recent re-thatch.
This is suited to buyers who value historic character and scope for blended residential and income use — investors wanting immediate holiday-let income, or a family seeking a distinctive principal residence with separate ancillary accommodation. Viewing is recommended to appreciate the scale, layout and potential of the whole site.
3 bedroom semi-detached house for sale in Stalbridge, Sturminster Newton, DT10 — £425,000 • 3 bed • 2 bath • 1280 ft²
4 bedroom cottage for sale in The Cross, Shillingstone, Blandford Forum, DT11 — £475,000 • 4 bed • 2 bath • 1900 ft²
3 bedroom cottage for sale in Blandford Road, Shillingstone, DT11 — £315,000 • 3 bed • 1 bath • 1292 ft²
2 bedroom terraced house for sale in Church Street, Sturminster Newton, DT10 — £235,000 • 2 bed • 1 bath • 1195 ft²
4 bedroom detached house for sale in High Street, Sturminster Marshall, BH21 4AT, BH21 — £595,000 • 4 bed • 2 bath • 1945 ft²
3 bedroom detached house for sale in Newton, Sturminster Newton, DT10 — £395,000 • 3 bed • 1 bath • 1898 ft²


































































































































