NW10 9PX - 3 bed bright three bedroom flat in Church Road, NW10 9PX

View on Property Piper

3 bedroom flat for sale in Church Road, Harlesden, London, NW10

Summary - 18A CHURCH ROAD LONDON NW10 9PX

3 bed 1 bath Flat

Spacious first-floor home with private garden and good local schools.
Three bedrooms with en suite to main bedroom
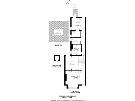
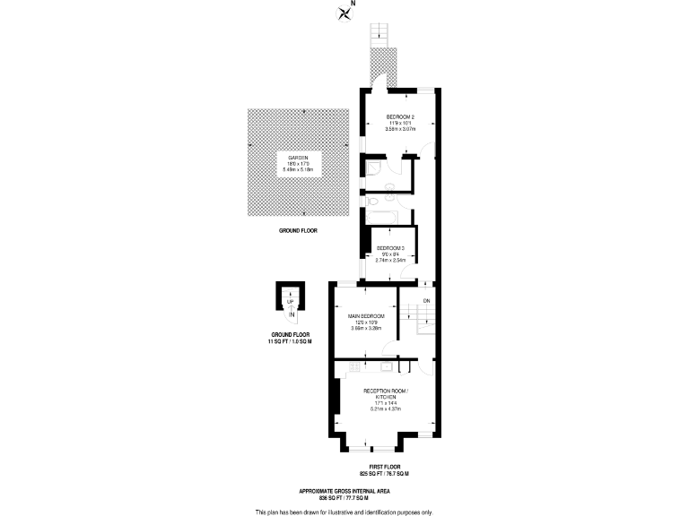
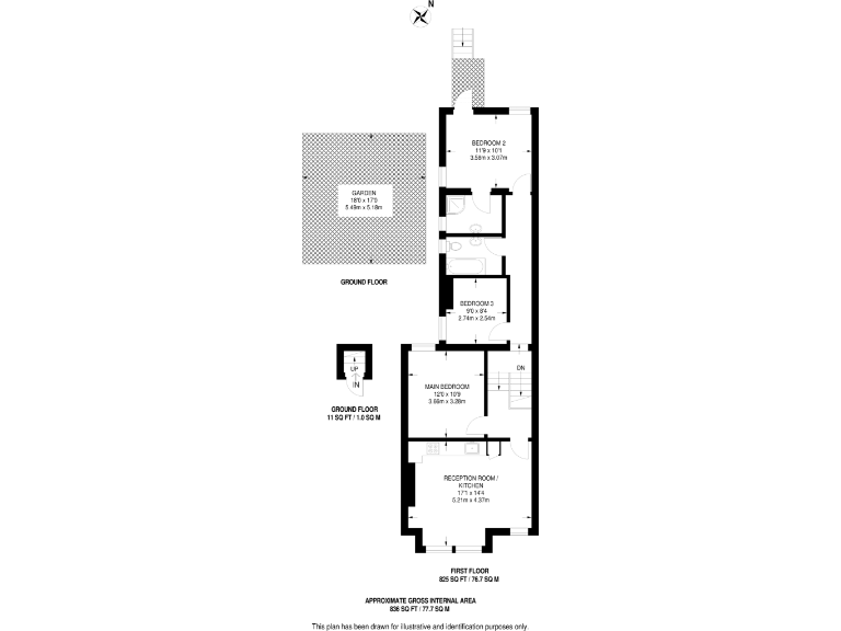
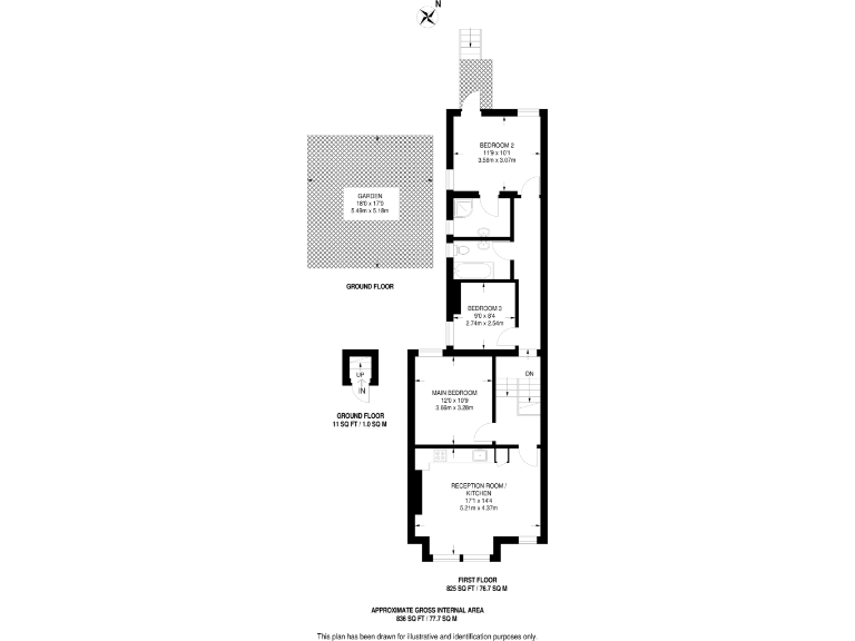
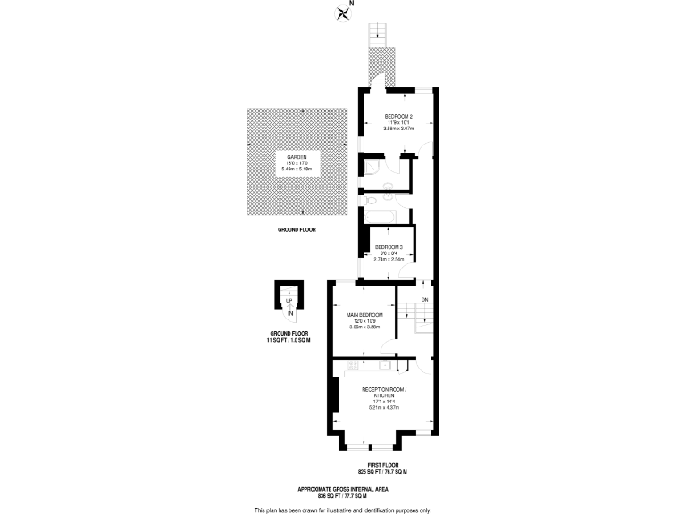
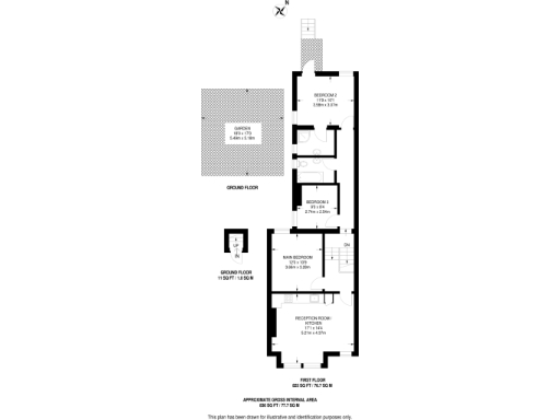
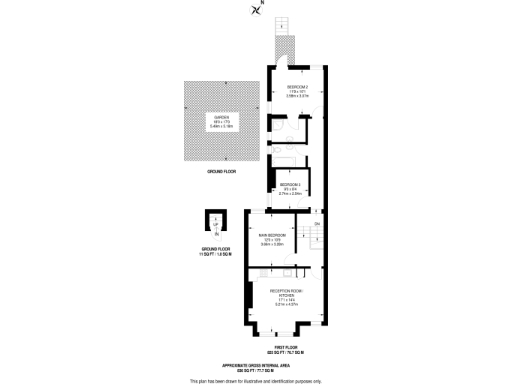
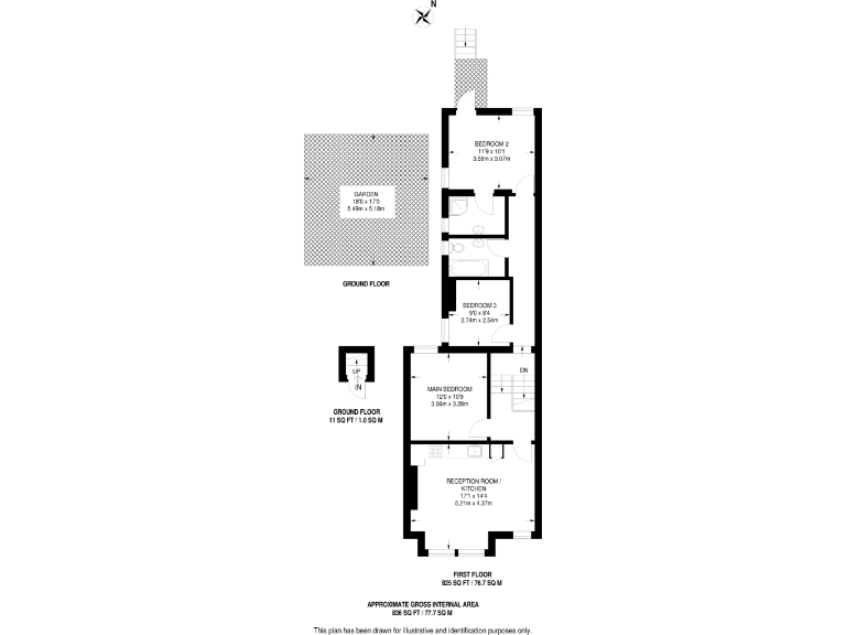
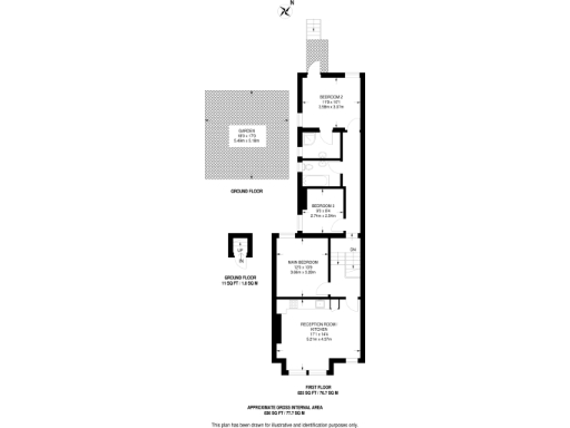
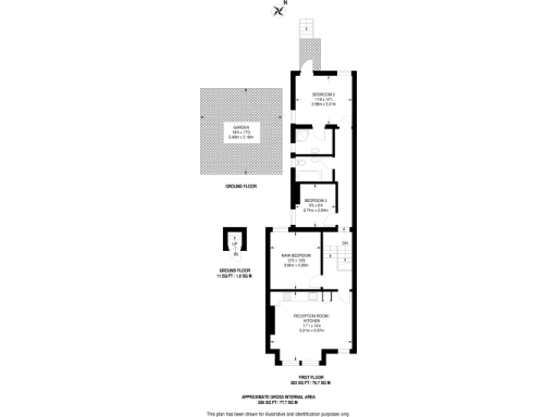
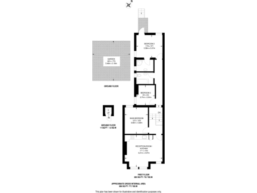
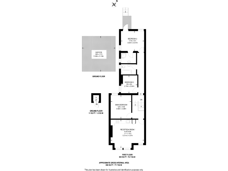
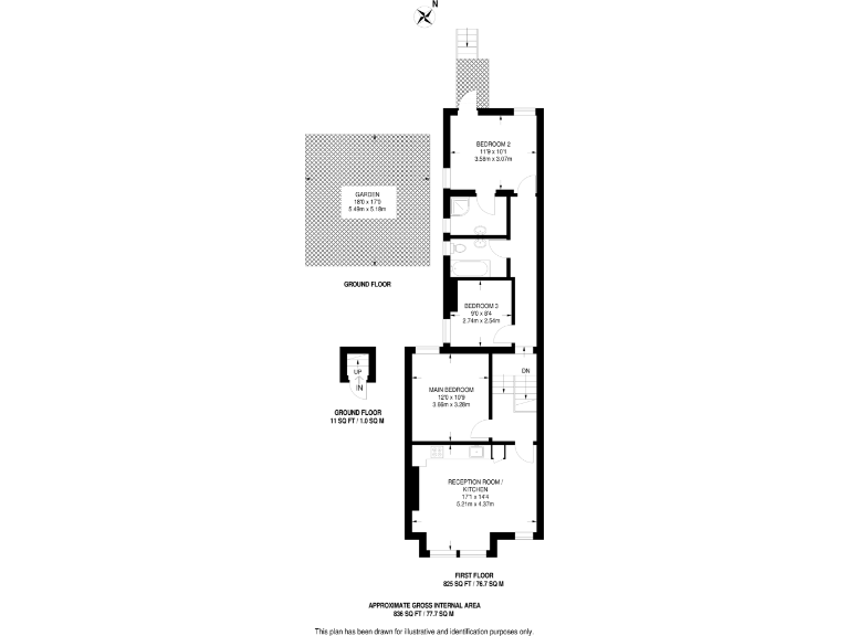
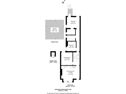
This bright first-floor flat offers three well-proportioned bedrooms and a bay-fronted open-plan reception/kitchen across an average-sized 836 sq ft layout. The main bedroom benefits from an en suite, and the living spaces are presented in a fresh, contemporary style. A private section of garden adds rare outside space for a flat in this area.
The building is a Victorian mid-terrace with solid brick walls (no known insulation) and double glazing; the interiors are well presented but the fabric may need upgrading for improved thermal performance. Heating is by mains-gas boiler and radiators. The property is leasehold and suited to buyers who can manage ongoing service/ground rent responsibilities.
Location is convenient for local amenities, community facilities, and several well-regarded primary and secondary schools, making it a practical choice for families. Transport links and fast broadband/excellent mobile signal support commuting and home working. Note Wembley Stadium is within easy reach for entertainment and events.
Material considerations are straightforward: there is only one bathroom for three bedrooms, the area records high crime and very high deprivation levels, and the property dates from 1900–1929 so some structural or modernisation work may be required. Buyers seeking scope to add value—cosmetic updates, insulation improvements or internal reconfiguration—will find genuine potential here.

Property Details

Image Descriptions

Floorplan Description

Rooms

Textual Property Features

Target Audience

AI Tags

Detected Visual Features

EPC Details

Nearby Schools

Nearest Bars And Restaurants

,,,,}

Nearest General Shops

,,}

Nearest Grocery shops

,,}

Nearest Supermarkets

,,}

Nearest Religious buildings

,,}

Nearest Medical buildings

,,,}

Nearest Airports

,}

Nearest Leisure Facilities

,,,,}

Nearest Tourist attractions

,,}

Nearest Train stations

,,,,}

Nearest Bus stations and stops

,,,,}

Nearest Hotels

,,}

Tags

Local Market Stats

AirBnB Data

Similar Properties

Meta

High Res Images

Compatible Images

Low res Images

Thumbnails

Raw Images

High Res Floorplan Images

Compatible Floorplan Images

Low res Floorplan Images

FloorplanImages Thumbnail

Raw Floorplan Images