Spacious two-bedroom home with large garden, driveway and no onward chain.
- Large east-facing rear garden with mature planting
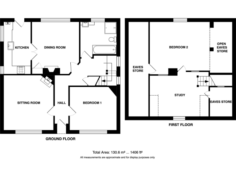
- Spacious 1,406 sq ft; unusually large overall size
- Ground-floor bedroom plus first-floor bedroom and study area
- Period features: sash windows, exposed floors, tiled fireplaces
- Off-road driveway parking and large block-built storage shed
- Property needs updating and cosmetic refurbishment throughout
- Block-built shed has corrugated asbestos roof (requires attention)
- Freehold, no onward chain; EPC rating D
This un‑spoilt 1920s detached villa offers generous living space across two floors, set on a large east‑facing plot within easy walking distance of Sheringham town centre and the train station. Period features include sash windows, exposed wooden floors, tiled fireplaces and picture rails that give immediate character and warmth.
The layout includes a sitting room with corner fireplace, separate dining room opening to a bespoke hand‑built kitchen, a ground‑floor bedroom and bathroom, plus a roomy first‑floor bedroom and landing/study area—ideal for a hobby space or home office. Off‑street parking and a large block storage shed add practical convenience.
The property requires some updating and cosmetic refurbishment; this has been reflected in the asking price and gives scope to personalise the interior. Note the block-built store has a corrugated asbestos roof and will need appropriate attention or replacement. EPC rating D.
Offered freehold and with no onward chain, this villa will suit someone seeking a character home with a generous garden and scope to improve for long‑term comfort or retirement living. Internal viewing recommended to appreciate the scale and potential on offer.
 3 bedroom detached house for sale in Sheringham, NR26 — £275,000 • 3 bed • 1 bath • 827 ft²
 3 bedroom detached house for sale in Sheringham, NR26 — £275,000 • 3 bed • 1 bath • 827 ft² 3 bedroom semi-detached house for sale in Sheringham, NR26 — £340,000 • 3 bed • 2 bath • 1214 ft²
 3 bedroom semi-detached house for sale in Sheringham, NR26 — £340,000 • 3 bed • 2 bath • 1214 ft² 3 bedroom detached house for sale in Sheringham, NR26 — £425,000 • 3 bed • 1 bath • 1282 ft²
 3 bedroom detached house for sale in Sheringham, NR26 — £425,000 • 3 bed • 1 bath • 1282 ft² 3 bedroom detached house for sale in De Morley Garth, Sheringham, NR26 — £540,000 • 3 bed • 2 bath • 2114 ft²
 3 bedroom detached house for sale in De Morley Garth, Sheringham, NR26 — £540,000 • 3 bed • 2 bath • 2114 ft² 4 bedroom detached house for sale in Sheringham, NR26 — £525,000 • 4 bed • 3 bath • 1867 ft²
 4 bedroom detached house for sale in Sheringham, NR26 — £525,000 • 4 bed • 3 bath • 1867 ft² 3 bedroom chalet for sale in Norfolk Road, Sheringham, NR26 — £475,000 • 3 bed • 2 bath • 1726 ft²
 3 bedroom chalet for sale in Norfolk Road, Sheringham, NR26 — £475,000 • 3 bed • 2 bath • 1726 ft²


































































