NR26 8HJ - 3 bedroom chalet for sale in Norfolk Road, Sheringham, NR26

View on Property Piper

3 bedroom chalet for sale in Norfolk Road, Sheringham, NR26

Summary - 15, Norfolk Road, SHERINGHAM NR26 8HJ

3 bed 2 bath Chalet

**Standout Features:**
- No onward chain
- Highly sought-after location
- Gas central heating
- Spacious south-facing garden
- Three bedrooms, two bathrooms
- Garage and off-road parking
- Potential for renovation and customization

This charming detached chalet-style property offers an ideal opportunity for families and first-time buyers seeking a home in a highly favored area. With three spacious bedrooms and two bathrooms, there’s plenty of room for comfortable family living. The interior, while currently in need of some updating, provides a fantastic canvas for personalization, allowing you to create your dream home. Enjoy the benefits of gas central heating and sealed unit glazing, ensuring warmth and energy efficiency throughout.

The generous south-facing garden, paired with a garage and ample off-road parking, not only enhances outdoor living but also offers privacy and convenience. Located close to Sheringham’s vibrant amenities, including shops, restaurants, and reliable transport links, this property is poised for future value. Don’t miss this unique opportunity—properties in such a desirable location are rare to find and won’t last long!

Property Details

Brochure Descriptions

Image Descriptions

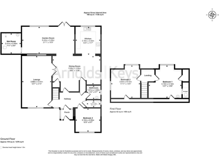
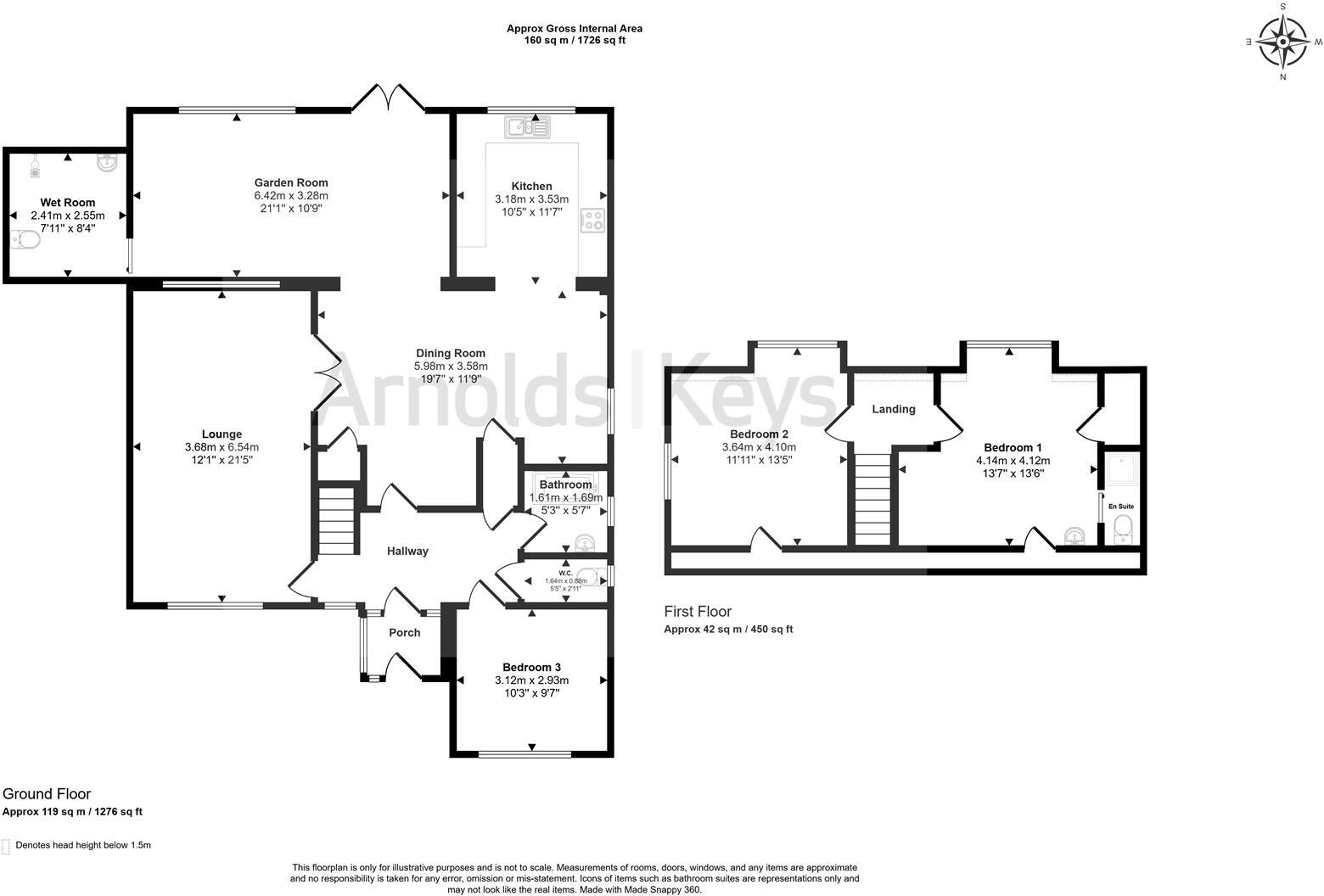
Floorplan Description

Rooms

Textual Property Features

Detected Visual Features

EPC Details

Nearby Schools

Nearest Bars And Restaurants

,,,,}

Nearest General Shops

,,}

Nearest Grocery shops

,,}

Nearest Supermarkets

,,}

Nearest Religious buildings

,,}

Nearest Medical buildings

,,,}

Nearest Leisure Facilities

,,,,}

Nearest Tourist attractions

,,}

Nearest Train stations

,,,}

Nearest Bus stations and stops

,,,,}

Nearest Hotels

,,}

Tags

Local Market Stats

AirBnB Data

Similar Properties

Meta

High Res Images

Compatible Images

Low res Images

Thumbnails

Raw Images

High Res Floorplan Images

Compatible Floorplan Images

Low res Floorplan Images

FloorplanImages Thumbnail

Raw Floorplan Images