Large gardens, garage and driveway close to transport and schools.
Chain-free freehold property with detached garage
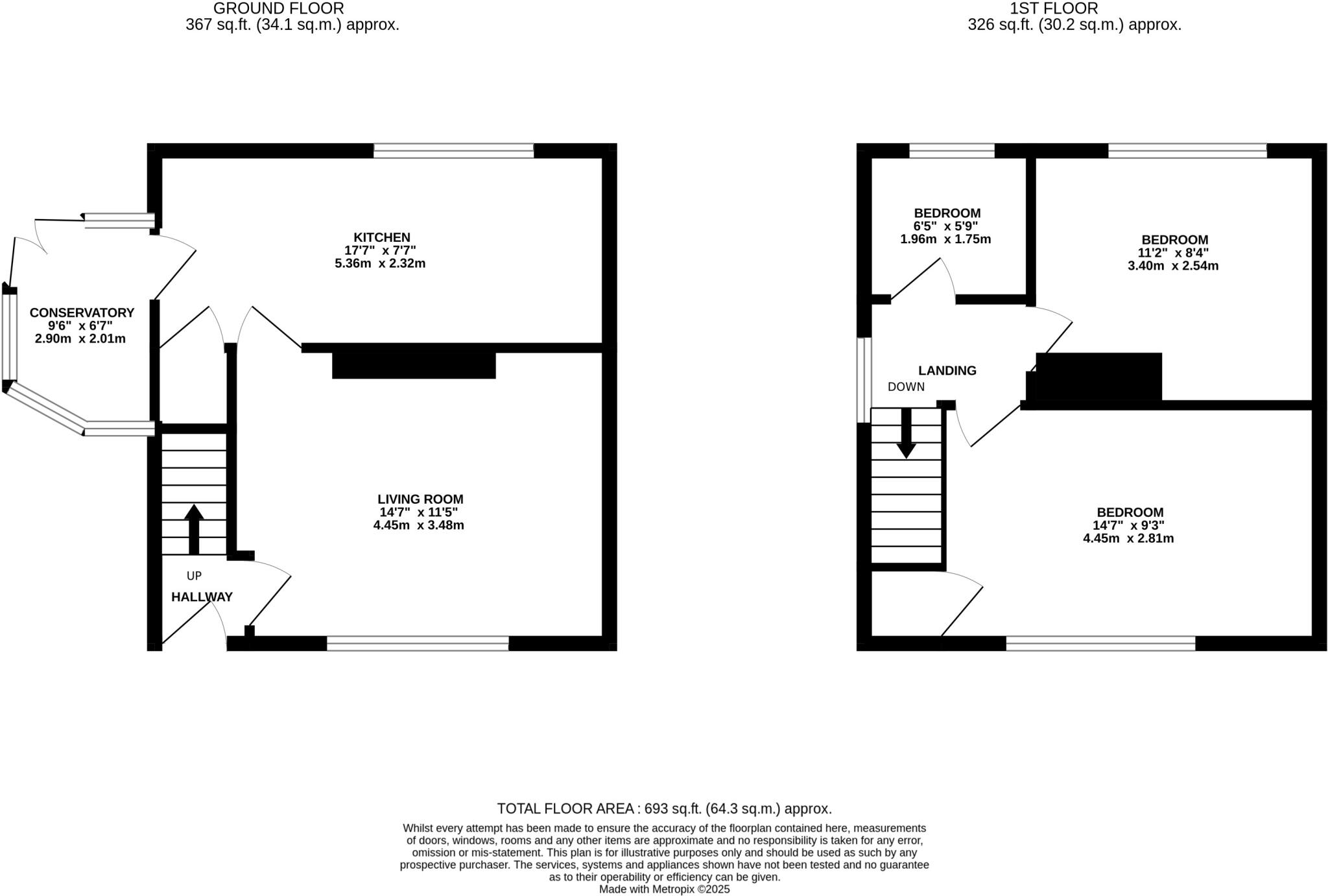
Set on a generous corner plot in Kippax, this two-bedroom semi-detached home offers substantial outdoor space and practical parking. The property is chain-free and freehold, with a detached garage, large driveway and gardens running to three sides—ideal for families or those seeking outside storage and entertaining space. Solar panels are fitted, which may reduce running costs (details available on request).
Inside, the layout is straightforward: a light living room with a front window and gas fire, a full-length kitchen with modern white cabinetry and space for appliances, and a conservatory that links to the rear garden. Upstairs are two double bedrooms and a shower room. The house is an average-sized, post-war build with standard ceiling heights and an overall practical footprint of around 693 sq ft.
This home suits buyers wanting good commuter links, local schools rated Good or Outstanding nearby, and scope to add value through cosmetic updating. Note the property is described as a fixer-upper in places and the gardens require attention. While generally well presented, buyers should allow for routine maintenance and possible improvement works to modernise finishes and landscaping.
Practical points: low local crime, fast broadband and excellent mobile signal make this attractive for working families and commuters. Council Tax band A keeps ongoing costs low. Interested buyers should request full solar panel information and factor any refurbishment into their offer.
2 bedroom semi-detached house for sale in South Ridge, Kippax, Leeds, West Yorkshire, LS25 — £170,000 • 2 bed • 1 bath • 720 ft²
2 bedroom terraced house for sale in Butt Hill, Kippax, Leeds, LS25 — £185,000 • 2 bed • 1 bath • 945 ft²
2 bedroom semi-detached house for sale in South Ridge, Kippax, Leeds, LS25 — £190,000 • 2 bed • 1 bath • 698 ft²
3 bedroom semi-detached house for sale in Oxford Drive, Kippax, Leeds, LS25 — £300,000 • 3 bed • 2 bath • 1078 ft²
4 bedroom semi-detached house for sale in Sandgate Drive, Kippax, LS25 — £345,000 • 4 bed • 3 bath • 1281 ft²
4 bedroom semi-detached house for sale in Leeds Road, Kippax, Leeds, West Yorkshire, LS25 — £240,000 • 4 bed • 1 bath • 881 ft²






























































